Chain-free single-storey home with garage, south garden and easy town access.
Chain-free detached bungalow on corner plot, freehold
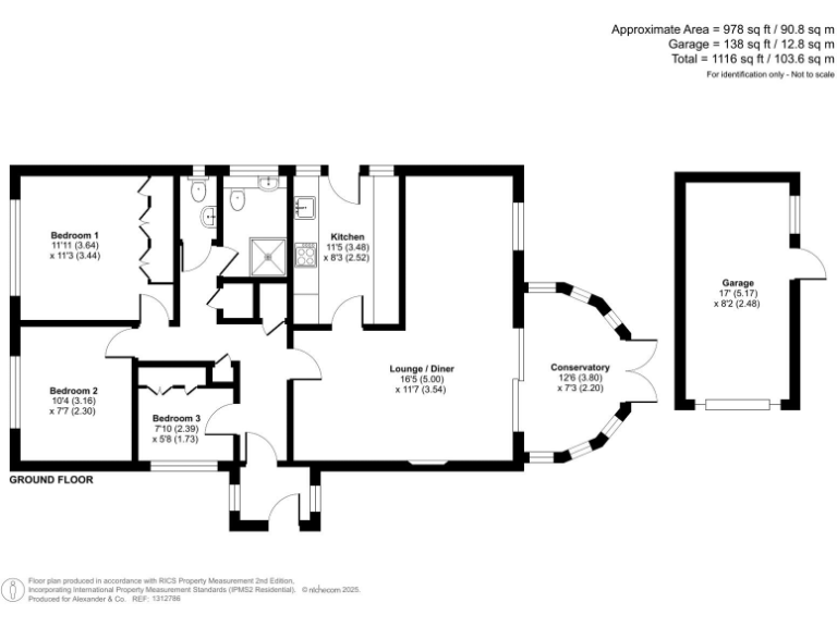
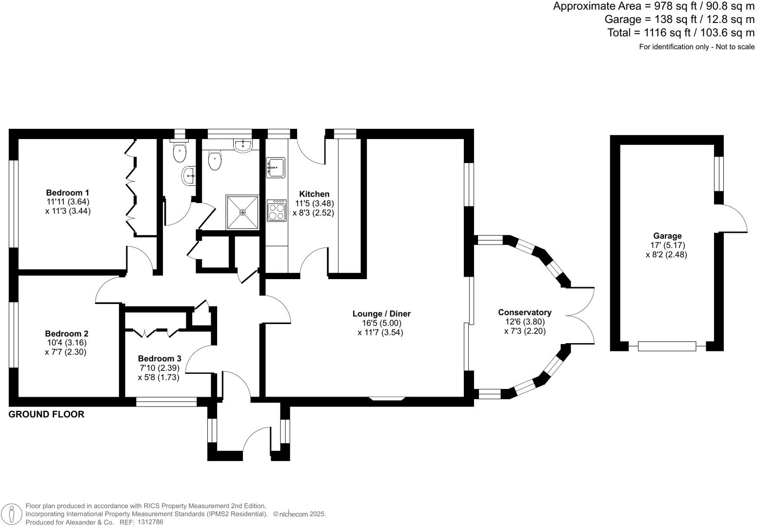
A detached, single-storey bungalow on a corner plot, offered chain-free and freehold. The property features three bedrooms, a modern fitted kitchen, and an open-plan living/dining room that flows into a bright conservatory. A refurbished bathroom and decent loft storage in the garage add practical appeal for everyday living.
The rear garden faces south and has been landscaped with lawn, patio and planting for low-maintenance outdoor use. There is a large driveway plus a garage with power and an electric door, convenient for parking and storage. Broadband speeds are fast and the area records very low crime, set in a very affluent, suburban town-fringe location.
Practical points to note: the layout is traditional and the overall size is average for a bungalow, so buyers seeking larger family accommodation should check room dimensions. The conservatory provides excellent light but can be less thermally efficient than main living areas. Local primary schooling is mixed; one nearby school is rated ‘Requires improvement’. The property is well placed for Winslow’s amenities and the forthcoming East–West rail link improvements to regional connections.
This home will suit downsizers or buyers wanting single-storey living with easy access to town facilities. It presents as a comfortable, low-maintenance base with useful storage and parking, and scope to personalise internal finishes where desired.
3 bedroom bungalow for sale in The Spinney, Winslow, Buckingham, MK18 — £450,000 • 3 bed • 1 bath • 927 ft²
3 bedroom bungalow for sale in Ovitts Close, Winslow, Buckingham, MK18 — £475,000 • 3 bed • 1 bath • 1266 ft²
3 bedroom bungalow for sale in St. Laurence Road, Winslow, Buckingham, MK18 — £465,000 • 3 bed • 1 bath • 1016 ft²
2 bedroom semi-detached bungalow for sale in Highfield Road, Winslow, Buckingham, MK18 — £315,000 • 2 bed • 1 bath • 733 ft²
3 bedroom bungalow for sale in Old Barn Close, Gawcott, Buckingham, MK18 — £475,000 • 3 bed • 1 bath • 1359 ft²
2 bedroom bungalow for sale in Manor Park, Maids Moreton, Buckingham, MK18 — £290,000 • 2 bed • 1 bath • 668 ft²


































































































