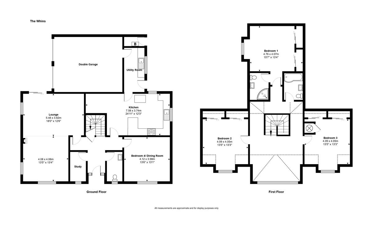
**Standout Features:**
- Spacious detached family home with flexible layout
- Large lounge with patio doors, woodburner stove, and a marble fireplace
- Light-filled kitchen with breakfast bar and integrated appliances
- Four potential bedrooms, including a well-sized main bedroom with en-suite
- Dedicated home office with built-in desk, utility room with laundry space
- Integral double garage and private gardens on an elevated plot
**Notable Concerns:**
- Slow broadband speeds
- Average mobile signal
- Located in a deprived area with expensive council tax
Discover your idyllic escape in this generous detached family home, The Whins, nestled in the serene hamlet of Ardendrain, just outside Kiltarlity. Spread across a sprawling 2,357 square feet, this property boasts a bright and expansive lounge with marble fireplace capturing the warmth of a woodburning stove, seamlessly opening to a beautifully enclosed garden—perfect for entertaining or family gatherings. The inviting kitchen comes equipped with modern appliances and a convenient breakfast bar, ideal for buzzing mornings or casual gatherings.
The home's flexible layout presents options for up to four bedrooms, providing potential for a guest room or additional living space. A dedicated home office caters to remote work needs, while a utility room enhances practicality. Upstairs, the main bedroom offers comfort and tranquility, complemented by an en-suite bathroom. 
Set on a tranquil plot surrounded by the captivating Highland landscape, this property not only promises a peaceful lifestyle but also presents considerable potential for personal touches and future renovations. With its proximity to both Beauly and Inverness, The Whins is a rare opportunity for families and investors alike, merging spacious living with the charm of rural life. Act quickly—properties like this don't remain on the market for long!
 3 bedroom cottage for sale in Ardendrain, Beauly, IV4 7HS, IV4 — £295,000 • 3 bed • 2 bath • 1033 ft²
 3 bedroom cottage for sale in Ardendrain, Beauly, IV4 7HS, IV4 — £295,000 • 3 bed • 2 bath • 1033 ft² 4 bedroom detached house for sale in FoxHole, Beauly, IV4 — £450,000 • 4 bed • 1 bath • 2612 ft²
 4 bedroom detached house for sale in FoxHole, Beauly, IV4 — £450,000 • 4 bed • 1 bath • 2612 ft² 3 bedroom detached house for sale in Glaichbea, Beauly, IV4 7HR, IV4 — £360,000 • 3 bed • 2 bath • 1528 ft²
 3 bedroom detached house for sale in Glaichbea, Beauly, IV4 7HR, IV4 — £360,000 • 3 bed • 2 bath • 1528 ft² 4 bedroom detached house for sale in Tomvoit, Gorthleck, IV2 6UJ, IV2 — £460,000 • 4 bed • 3 bath • 1970 ft²
 4 bedroom detached house for sale in Tomvoit, Gorthleck, IV2 6UJ, IV2 — £460,000 • 4 bed • 3 bath • 1970 ft² 4 bedroom detached house for sale in Ardival, Strathpeffer, IV14 9DS, IV14 — £495,000 • 4 bed • 6 bath • 2906 ft²
 4 bedroom detached house for sale in Ardival, Strathpeffer, IV14 9DS, IV14 — £495,000 • 4 bed • 6 bath • 2906 ft² 4 bedroom detached house for sale in Newton of Ferintosh, Conon Bridge, IV7 8AS, IV7 — £395,000 • 4 bed • 2 bath • 1808 ft²
 4 bedroom detached house for sale in Newton of Ferintosh, Conon Bridge, IV7 8AS, IV7 — £395,000 • 4 bed • 2 bath • 1808 ft²






































































































































































































