Spacious family residence with indoor pool and extensive grounds near top schools.
- Large detached family house circa 4,722 sq ft
- Indoor heated pool with jacuzzi and changing rooms
- Grounds extending to approximately 4 acres, incl. paddock
- Two loose boxes, tack room and storage barn on-site
- Oil-fired boiler and radiators; main fuel oil
- Cavity walls assumed uninsulated; may need insulation work
- Very slow broadband speeds; limited mobile signal
- Council Tax Band H — very expensive
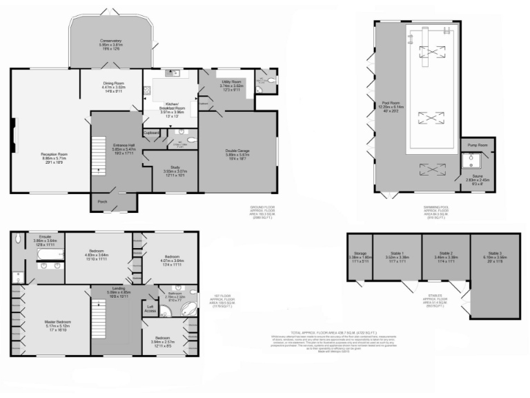
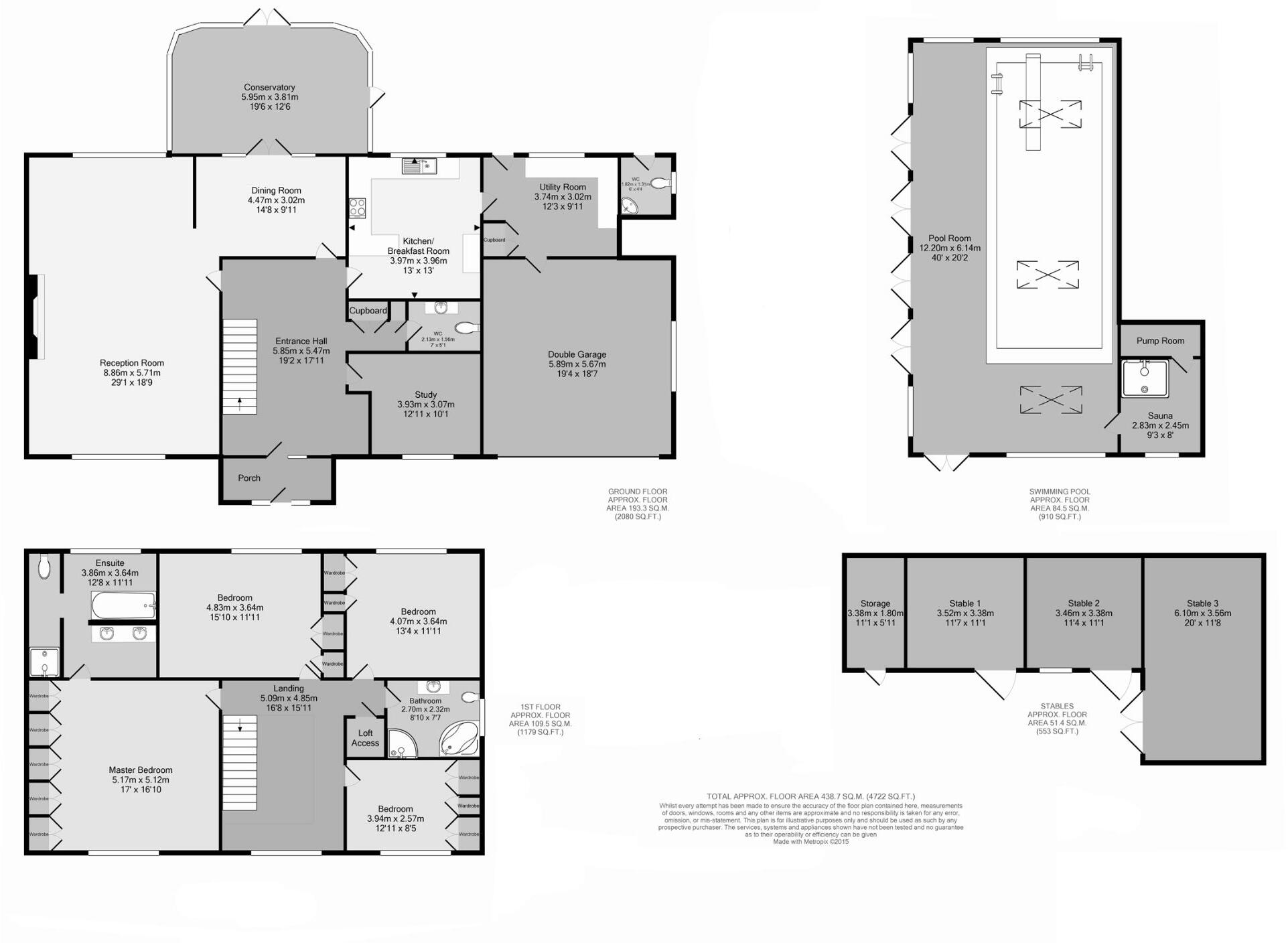
A substantial four-bedroom detached house set within roughly four acres of landscaped grounds and woodland, offering flexible family accommodation across an impressive 4,722 sq ft. Principal reception rooms include a double-aspect drawing room, dining room and conservatory overlooking the gardens, plus a kitchen/breakfast room, utility, study and cloakroom. The first-floor principal suite benefits from fitted wardrobes and an ensuite; three further bedrooms share a family bathroom.
Stand-out external features include a detached pool house with an indoor heated pool, Roman-end jacuzzi and changing rooms, plus paddock with two loose boxes, tack room, storage barn and garaging. The long, gravel driveway and rolling lawns framed by specimen trees create strong curb appeal and substantial outdoor space for children, pets and equestrian use.
Practical considerations: the house was built circa 1968 and has cavity walls assumed to lack insulation, with oil-fired boiler and radiators as the main heating source. Broadband speeds are reported as very slow, and Council Tax Band H is costly. These factors may require investment to modernise heating, insulation and communications for contemporary family living.
Overall this is a rare country property for families who value space, privacy and on-site leisure facilities. It suits buyers ready to commission targeted upgrades rather than those seeking a turnkey modern home.
5 bedroom detached house for sale in Main Road, Knockholt, Sevenoaks, TN14 — £3,250,000 • 5 bed • 3 bath • 4500 ft²
5 bedroom detached house for sale in Main Road, Westerham, TN16 — £1,895,000 • 5 bed • 4 bath • 2972 ft²
3 bedroom detached house for sale in Berrys Green Road, Westerham, TN16 — £1,500,000 • 3 bed • 2 bath • 3063 ft²
4 bedroom detached house for sale in Ricketts Hill Road, Tatsfield, Westerham, Surrey, TN16 — £1,150,000 • 4 bed • 2 bath • 2668 ft²
4 bedroom detached house for sale in Hoghole Lane, Lamberhurst, TN3 — £2,500,000 • 4 bed • 3 bath • 3107 ft²
4 bedroom detached house for sale in Maidstone Road, Horsmonden, Tonbridge, Kent, TN12 — £1,100,000 • 4 bed • 3 bath • 3282 ft²


































































