Bright, compact one‑bed close to shops, transport and the station.
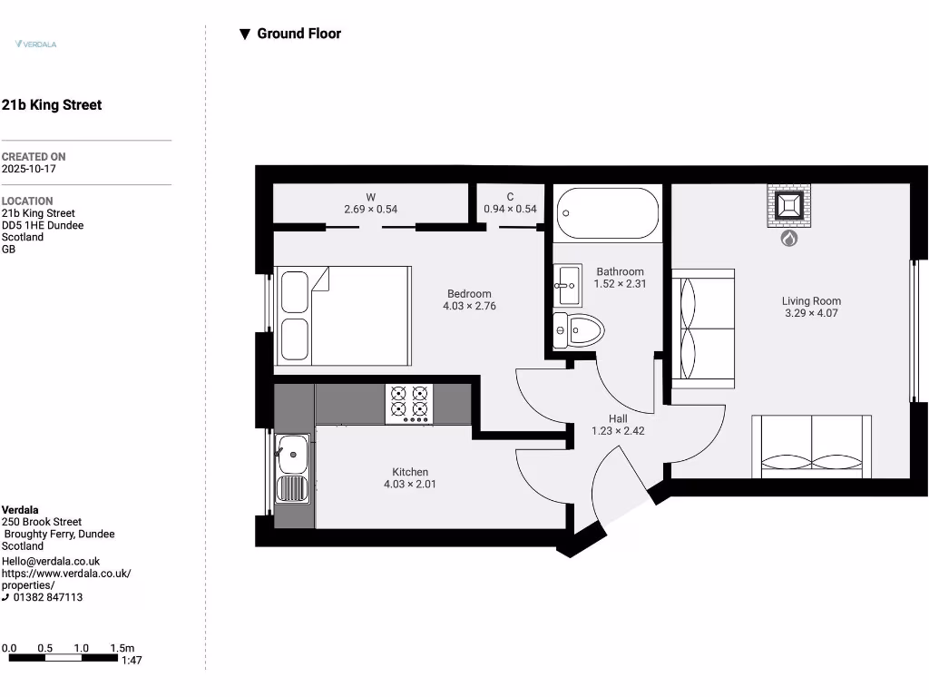
Ground-floor one-bedroom flat in central Broughty Ferry
Compact overall size — approx. 398 sq ft
Period features: high ceilings, cornicing, bay window, fireplace
Double bedroom with mirrored wardrobes and separate cupboard
Shared rear garden; private external store for bikes
Dated bathroom with original green suite (may need updating)
Freehold tenure and low council tax
Fast broadband and excellent mobile signal
Set on the ground floor in central Broughty Ferry, this one-bedroom freehold flat offers easy, low-maintenance living within a short walk of shops, cafés, transport links and the station. High ceilings, decorative cornicing and a bay window give the living room period character and plenty of natural light, while a rear kitchen overlooks the shared garden.
The double bedroom includes mirrored wardrobes and a separate storage cupboard, though overall floor area is compact at around 398 sq ft. The bathroom retains a dated green suite with a full-size bath and overhead shower, so buyers seeking a fully modern finish may wish to update this room.
Practical extras include a private external store ideal for bikes and garden access. Broadband speeds are fast and mobile signal is excellent, supporting home‑working or streaming. The property is freehold with low council tax, making it a straightforward purchase for a first-time buyer or someone downsizing.
Important considerations: the flat’s small overall size means space planning is essential, and communal garden access means outdoor space is shared. The wider area shows mixed socioeconomic indicators, so buyers should review local market context if considering as an investment.
1 bedroom flat for sale in 20e Castleroy Road, Broughty Ferry, DD5 2LQ, DD5 — £105,000 • 1 bed • 1 bath • 388 ft²
1 bedroom flat for sale in Lawrence Street, Broughty Ferry, Dundee, Angus, DD5 — £110,000 • 1 bed • 1 bath • 472 ft²
1 bedroom flat for sale in 1/2 329 Brook Street, Broughty Ferry, DD5 2DS, DD5 — £109,000 • 1 bed • 1 bath • 721 ft²
1 bedroom flat for sale in 144c Brown Street, Broughty Ferry, DD5 1EN, DD5 — £125,000 • 1 bed • 1 bath • 475 ft²
1 bedroom flat for sale in Flat 2, 30 Brown Street, Broughty Ferry, DD5 1EJ, DD5 — £149,000 • 1 bed • 1 bath • 592 ft²
1 bedroom flat for sale in 144f Brown Street, Broughty Ferry, DD5 1EN, DD5 — £125,000 • 1 bed • 1 bath


























































