Ground-floor one-bedroom with private courtyard and garage close to station.
Newly renovated throughout with modern fittings
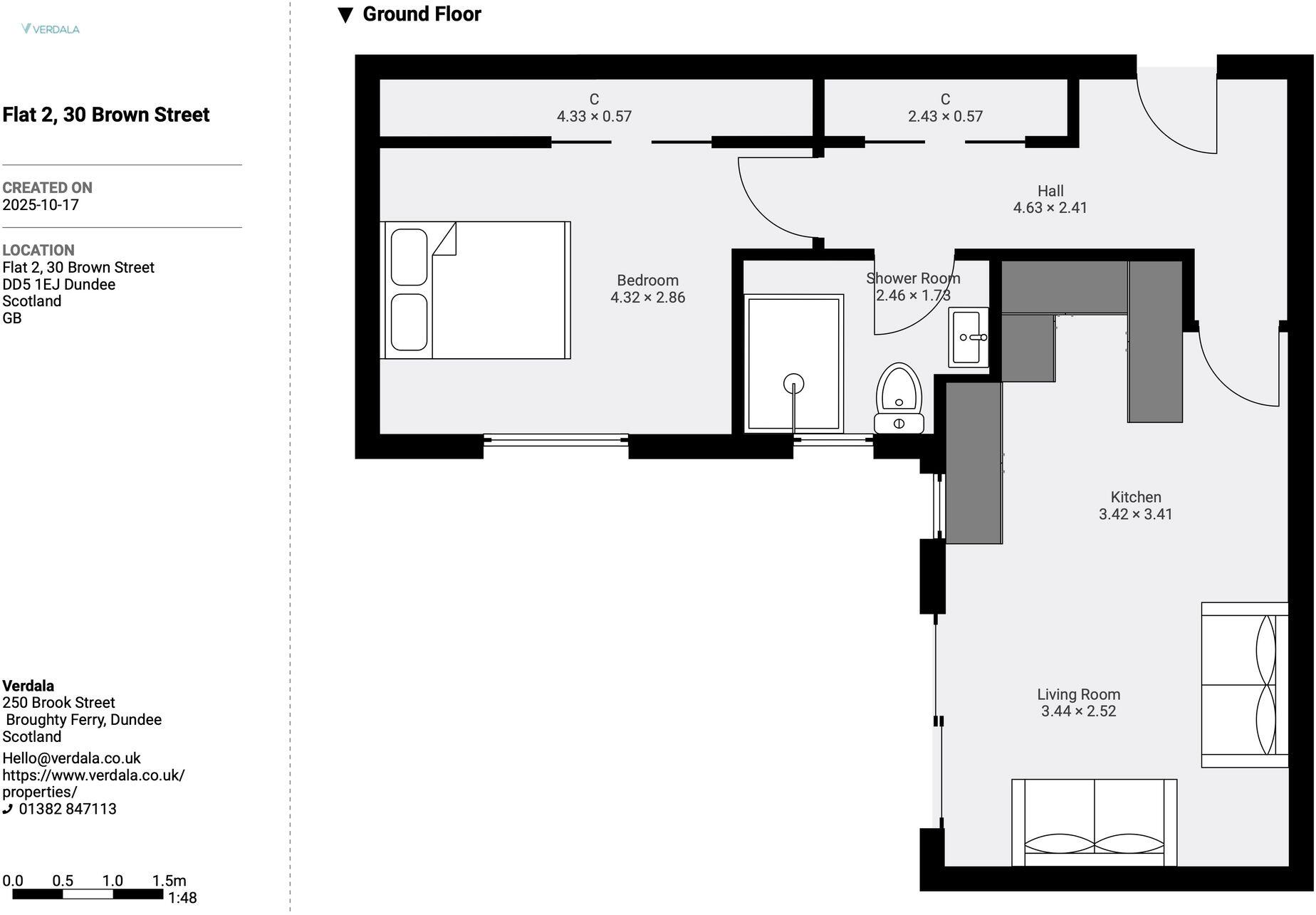
Set on the ground floor just moments from Broughty Ferry’s seafront, this newly renovated one-bedroom flat offers bright, low-maintenance living. The open-plan living, dining and kitchen area opens through large sliding doors onto a private courtyard and shared garden access, creating an easy indoor-outdoor flow ideal for relaxed mornings or entertaining.
The double bedroom includes built-in storage and the shower room is finished in modern fixtures and neutral tiling. Practical extras include a private garage with power and light, a secure entry system and fast broadband and mobile signal — useful for commuters and home workers. The flat’s 592 sq ft layout is well-proportioned for single occupancy or a couple.
Buyers should note important practical points: the property sits in a very deprived area, which can affect local services and resale values, and tenure is unspecified, which may influence mortgage options. There is no flood risk. Overall, this is a freshly updated, move-in-ready flat that combines seaside convenience with sensible amenities.
1 bedroom flat for sale in 1/2 329 Brook Street, Broughty Ferry, DD5 2DS, DD5 — £109,000 • 1 bed • 1 bath • 721 ft²
1 bedroom flat for sale in 20e Castleroy Road, Broughty Ferry, DD5 2LQ, DD5 — £105,000 • 1 bed • 1 bath • 388 ft²
2 bedroom apartment for sale in Ravenscraig Gardens, Broughty Ferry, DD5 — £285,000 • 2 bed • 1 bath • 850 ft²
1 bedroom flat for sale in 144c Brown Street, Broughty Ferry, DD5 1EN, DD5 — £125,000 • 1 bed • 1 bath • 475 ft²
2 bedroom apartment for sale in Flat 25, St.Vincent Court, Broughty Ferry, DD5 — £220,000 • 2 bed • 1 bath • 721 ft²
2 bedroom flat for sale in Flat 39 St. Vincent Court, St. Vincent Street, Broughty Ferry, DD5 2DA, DD5 — £215,000 • 2 bed • 1 bath • 732 ft²






































































