PR2 9WX - 5 bedroom detached house for sale in Regent Park, Fulwood,…

View on Property Piper

5 bedroom detached house for sale in Regent Park, Fulwood, PR2

Summary - 22 REGENT PARK FULWOOD PRESTON PR2 9WX

5 bed 2 bath Detached

**Key Features:**
- Pristine 5-bedroom detached house with rear extension and loft conversion
- Quiet cul-de-sac location in Fulwood, just minutes from schools and amenities
- Showhome condition with modern finishes, spacious open-plan layout
- Light-filled dining area featuring a roof lantern and bi-fold doors
- Tiered back garden with patio seating areas; perfect for entertaining
- Built-in garage and convenient access to main roads and transport links

This stunning 5-bedroom detached family home in Regent Park, Fulwood, combines contemporary living with a prime location, perfect for families and investors alike. Recently transformed with a rear extension and loft conversion, the property showcases an immaculate showhome condition, boasting spacious living areas that facilitate both comfort and sociability. The lounge can be easily closed off or opened up to create a seamless flow between the playroom and dining room, which is brightened by a stylish roof lantern and bi-fold doors that lead out to an enchanting tiered garden.

Ideally nestled in a quiet cul-de-sac, this home is just a short walk from "Outstanding" schools like Queen's Drive Primary, local shops, and easy access to the city center and major transport routes. The modern kitchen is well-equipped, and there's ample storage throughout, making day-to-day life easy. While the property is in excellent condition, it offers potential for personalization with further renovations if desired. With low crime rates and a family-friendly atmosphere, this is not just a home—it's a lifestyle. Don’t miss your chance to own this beautifully updated haven!

Property Details

Image Descriptions

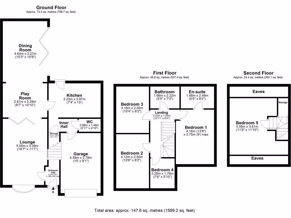
Floorplan Description

Rooms

Textual Property Features

Detected Visual Features

EPC Details

Nearby Schools

Nearest Bars And Restaurants

,,,,}

Nearest General Shops

,,}

Nearest Grocery shops

,,}

Nearest Supermarkets

,,}

Nearest Religious buildings

,,}

Nearest Medical buildings

,,,}

Nearest Leisure Facilities

,,,,}

Nearest Tourist attractions

,,}

Nearest Train stations

,,,,}

Nearest Bus stations and stops

,,,,}

Nearest Hotels

,,}

Tags

Local Market Stats

Similar Properties

Meta

High Res Images

Compatible Images

Low res Images

Thumbnails

Raw Images

High Res Floorplan Images

Compatible Floorplan Images

Low res Floorplan Images

FloorplanImages Thumbnail

Raw Floorplan Images