Large listed barn with consent for two four-bed homes — prime for a planning-led investor.
Grade II listed late 17th-century threshing barn with strong historic character
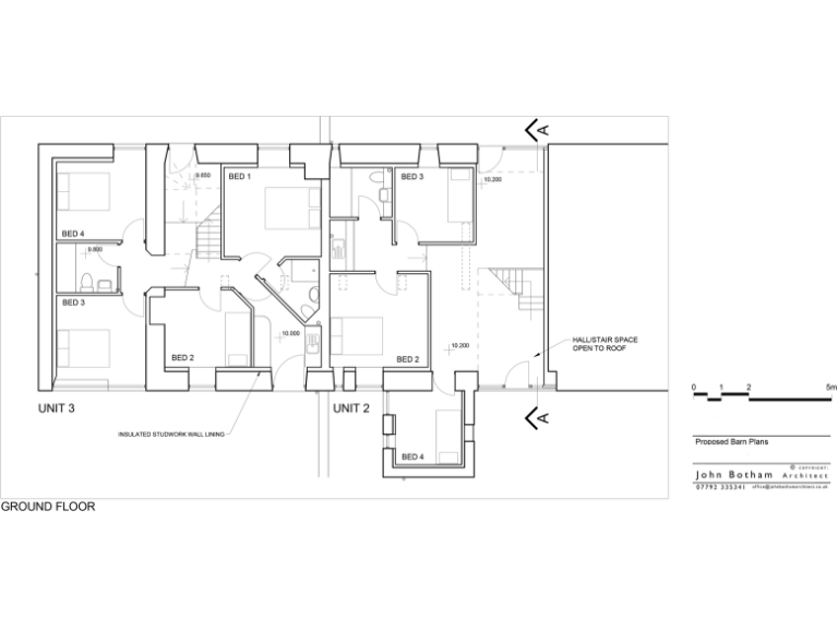
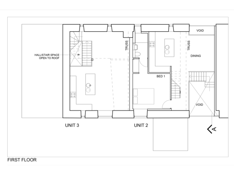
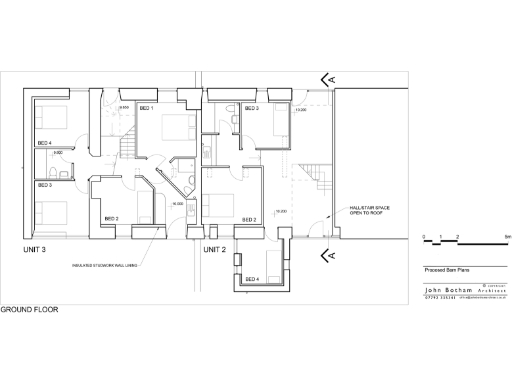
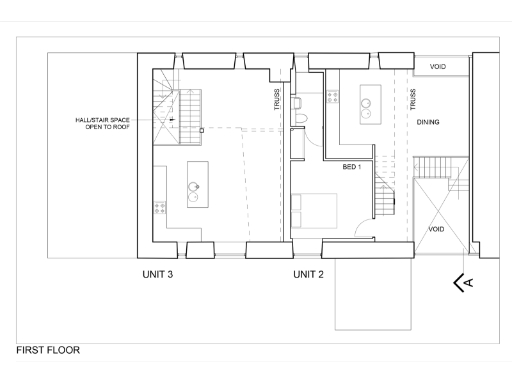
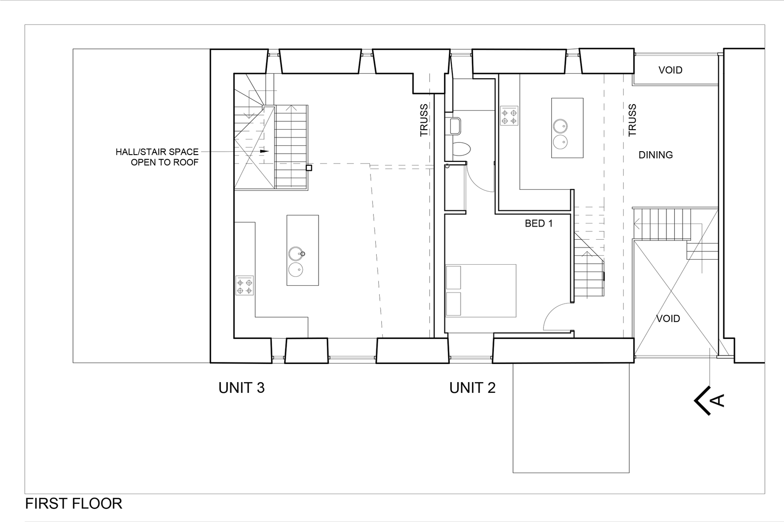
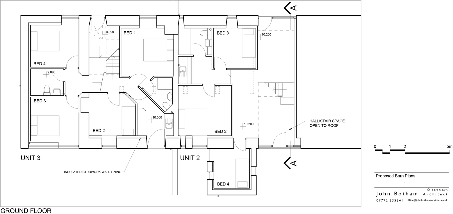
This late 17th-century Grade II listed threshing barn offers a rare conversion opportunity on a large plot in Somersall, S42. Full planning consent (CHE/22/00436/FUL) exists for two upside-down four-bedroom dwellings, creating immediate development potential for an investor or developer prepared to manage a listed conversion.
The stone shell is spacious (approx. 2,668 sq ft; circa 19 rooms) with scope to create private gardens and parking set away from the road. Mains services are to the site but have not been tested; the building’s exterior stonework and historic character give a strong base for an attractive finished scheme.
Important constraints are factual and significant: the barn is Grade II listed, which will impose conservation conditions and possible specialist costs; the structure is currently a renovation project and will require full conversion works and approvals for any change from the current consent. There is only one bathroom recorded in the existing data and the alternative single large 5-bedroom scheme would need fresh planning permission.
Priced at £200,000 freehold, this property suits a buyer experienced with listed buildings or an investor seeking a planning-led project close to Chesterfield and Matlock. The area is affluent with good local schools and excellent mobile and fast broadband potential, supporting rental or resale prospects once converted.
Plot for sale in Building Plot, Off Walton Back Lane, S42 — £185,000 • 3 bed • 1 bath • 482 ft²
Barn for sale in Bridle Road, Mastin Moor, S43 — £360,000 • 1 bed • 1 bath • 3014 ft²
2 bedroom barn conversion for sale in Searston Avenue, Holmewood, Chesterfield, S42 — £175,000 • 2 bed • 1 bath • 627 ft²
4 bedroom barn conversion for sale in Alfreton, Derbyshire, DE55 — £250,000 • 4 bed • 4 bath • 3229 ft²
4 bedroom cottage for sale in Barley Mews, Dronfield Woodhouse, S18 — £495,000 • 4 bed • 2 bath • 1551 ft²
3 bedroom detached house for sale in Maple Cottage, 2 Manor Syck Close Old Whittington Chesterfield S41 9FF, S41 — £500,000 • 3 bed • 2 bath • 1125 ft²


























































