Large private garden and convenient town and rail access for families.
Five double and single bedrooms, spacious family accommodation
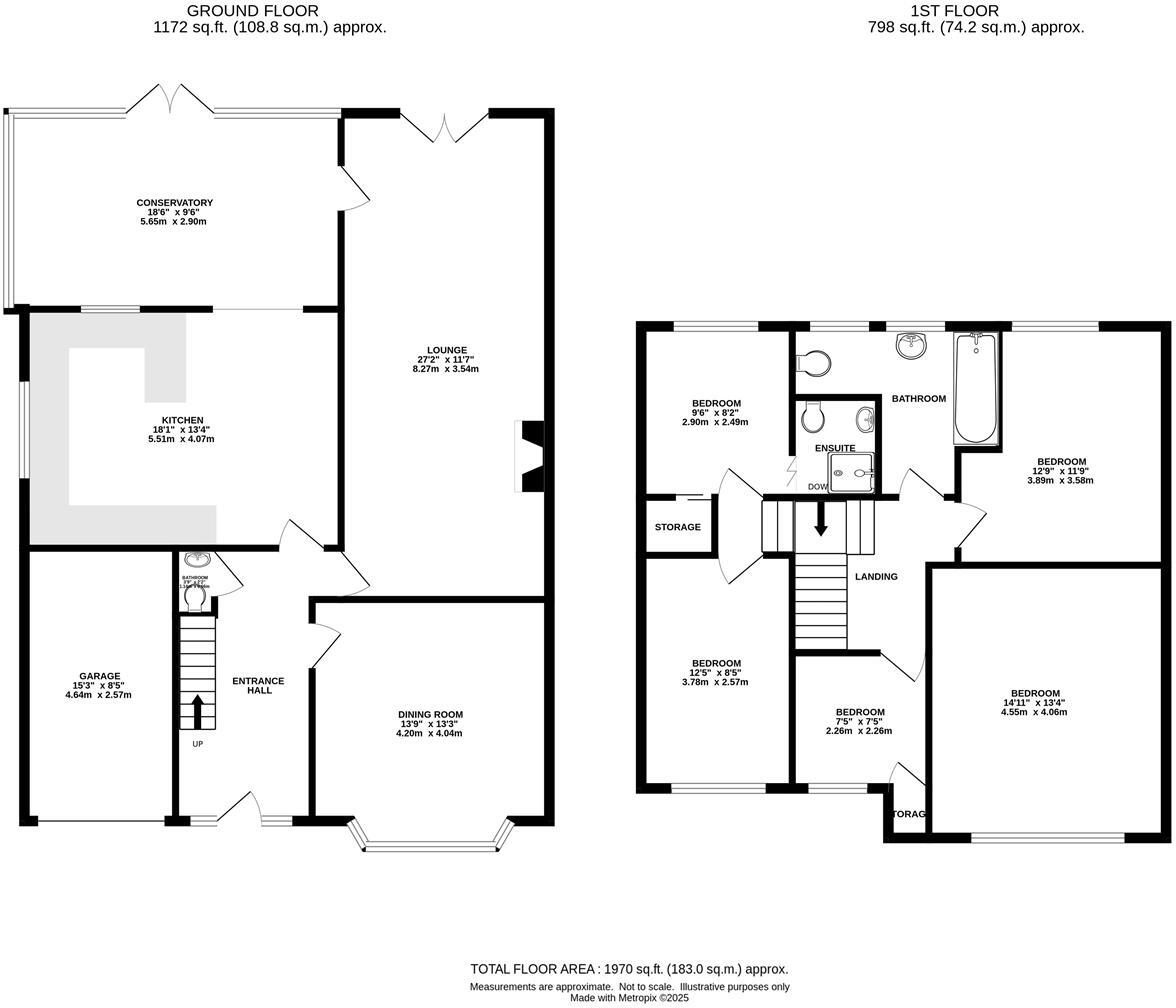
A substantial five-bedroom detached home on sought-after Ingrave Road, offering generous family living across c.1,970 sq ft. Period features such as stained-glass windows, high ceilings and an ornate fireplace give the house character, while large reception rooms and a conservatory create flexible space for everyday life and entertaining.
The plot is a major asset: a sweeping in-and-out driveway, single garage (useful or convertible STPP) and a private, mature rear garden with bespoke outhouse, fitted bar and a pergola-housed hot tub create an all-season outdoor retreat. The location is convenient for Brentwood High Street, the mainline railway station and local schools and playing fields, making it well placed for family life and commuting.
The house is Freehold and appears in good external condition, but it was built c.1900–1929 with solid brick walls (no known added insulation) and double glazing of unknown age. Internal updating and energy-efficiency improvements are likely to add value. Council tax is noted as quite expensive which should be factored into running costs.
Overall this home suits a family seeking generous, characterful accommodation on a large plot with clear potential to personalise and modernise. Essential positives (size, plot, location) are balanced by practical considerations (possible insulation and modernization work, limited bathrooms for five bedrooms).
5 bedroom detached house for sale in Ingrave Road, Brentwood, Essex, CM13 — £980,000 • 5 bed • 3 bath • 2000 ft²
4 bedroom detached house for sale in ** SIGNATURE HOMES ** Ingrave Road, Brentwood, CM13 — £1,400,000 • 4 bed • 2 bath • 1991 ft²
5 bedroom detached house for sale in Grange Close, Ingrave, Brentwood, CM13 — £1,000,000 • 5 bed • 1 bath • 1630 ft²
5 bedroom detached house for sale in Lakeside Crescent, Brentwood, CM14 — £1,625,000 • 5 bed • 5 bath • 3993 ft²
4 bedroom detached house for sale in Park Road, Brentwood, CM14 — £1,200,000 • 4 bed • 2 bath • 2266 ft²
5 bedroom detached house for sale in Shenfield Crescent, Brentwood, CM15 — £1,250,000 • 5 bed • 3 bath • 2400 ft²


































































































































































