Well-located starter home backing onto Lake View green space.
Two double bedrooms with sizeable family bathroom
Refitted kitchen leading to rear garden and gate to fields
Boarded, insulated loft for storage or future conversion
Off-street hardstanding parking to front for one vehicle
Small rear plot with decking and two storage sheds
Solid-brick walls assumed uninsulated — insulation opportunity
Modest modernisation likely to increase value
Freehold, low flood risk, fast broadband, excellent mobile signal
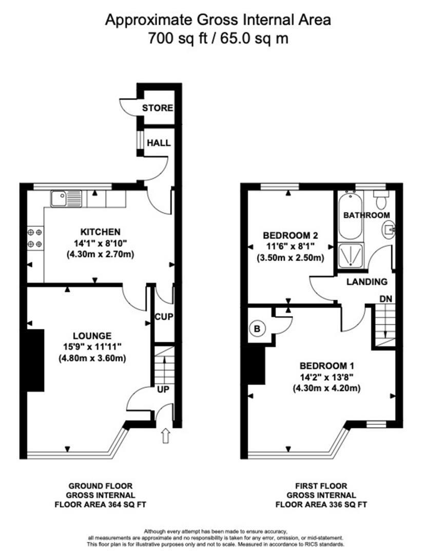
This mid-terraced two-bedroom home sits on a quiet residential street with direct access onto Lake View Fields, offering pleasant open-field outlooks to the rear. The ground floor provides a bay-fronted lounge and a refitted kitchen, while upstairs are two double bedrooms and a generously sized family bathroom. The boarded, insulated loft adds practical storage and future potential.
Practical features include off-street hardstanding parking to the front, a small rear garden with decking and two sheds, and a private rear gate onto green space — attractive for dog walkers and families. The property is freehold, around 700 sq ft, has double glazing and mains gas central heating, with low flood and crime risk and fast broadband.
The house is presented in fair, liveable condition but will reward modest updating. Solid-brick walls are assumed uninsulated (as-built), and some internal modernisation may increase value — a sensible project for first-time buyers or buy-to-let investors. Local amenities are within walking distance and Coventry city centre is approximately 2.7 miles away.
Overall, this is an affordable, well-located starter home or rental opportunity offering direct green-space access and realistic scope to add value with targeted refurbishment.
2 bedroom terraced house for sale in Bablake Close, Coundon, Coventry, CV6 — £198,000 • 2 bed • 1 bath • 820 ft²
3 bedroom terraced house for sale in Lilac Avenue, Coundon, Coventry, CV6 — £180,000 • 3 bed • 1 bath • 606 ft²
2 bedroom end of terrace house for sale in Thurlestone Road, Coundon, Coventry, CV6 — £200,000 • 2 bed • 1 bath • 811 ft²
2 bedroom terraced house for sale in Brownshill Green Road, Coundon, CV6 — £229,950 • 2 bed • 1 bath • 786 ft²
3 bedroom end of terrace house for sale in Lincroft Crescent, Coundon, Coventry, CV5 — £280,000 • 3 bed • 1 bath • 1066 ft²
3 bedroom terraced house for sale in Sherbourne Crescent, Coundon, Coventry, CV5 — £250,000 • 3 bed • 2 bath • 983 ft²














































































































