**Standout Features:**
- Spacious split-level flat with its own entrance and private patio
- Bright, airy living room with large windows and wooden flooring
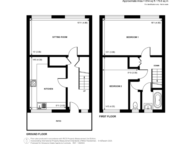
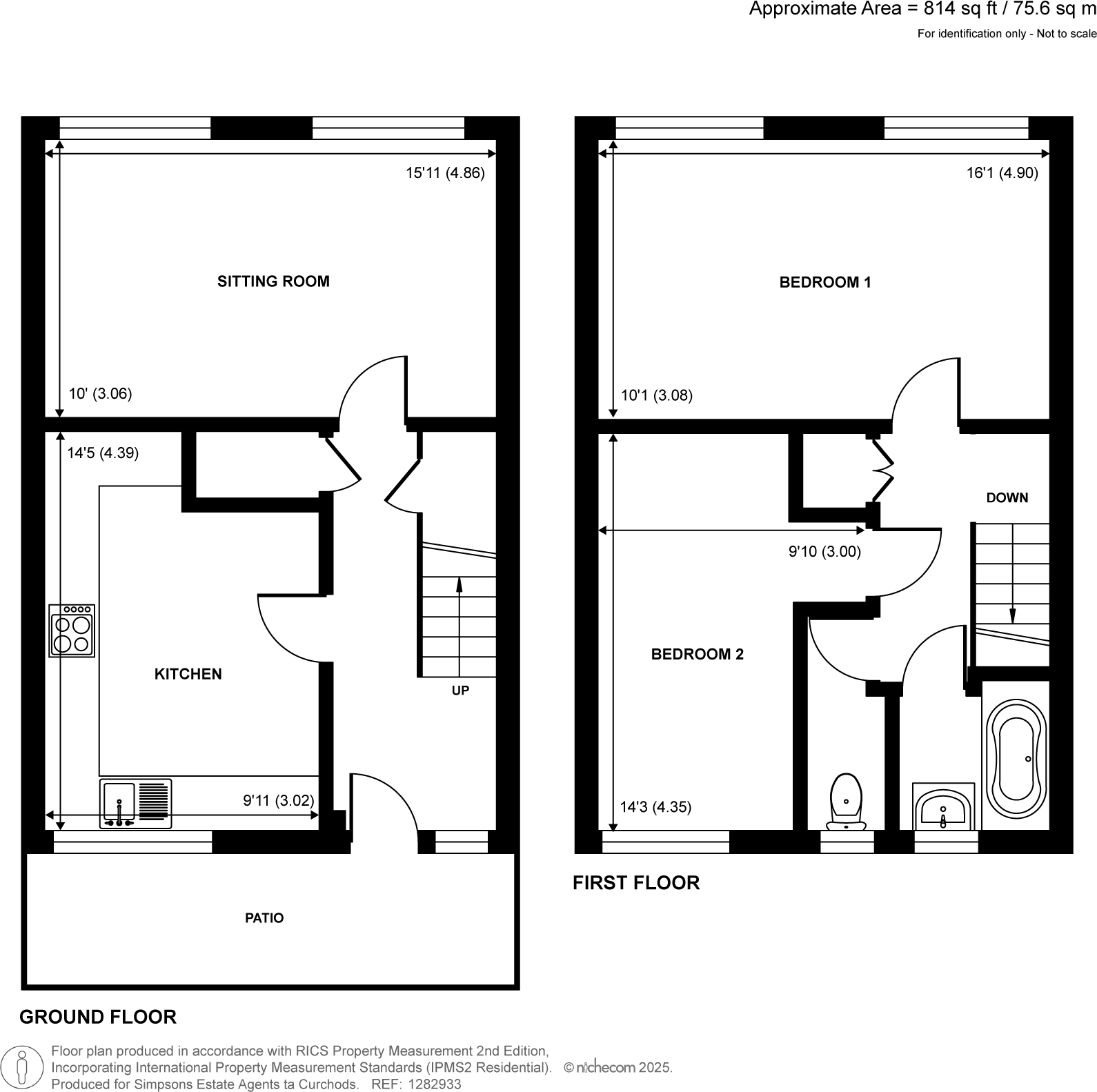
- Two generous double bedrooms
- Modern kitchen and stylish bathroom
- Bonus: Private storage and communal bike store
- Residents’ parking and well-maintained communal gardens
- Convenient location near Hampton Wick station and local shops
- Close to numerous excellent-rated schools
**Overview:**
Discover this charming split-level maisonette that combines modern living with comfort. Boasting an inviting patio area that overlooks lush communal gardens, this two-bedroom flat provides a bright and airy atmosphere throughout. The well-presented interior features a contemporary living room, a modern kitchen/breakfast room, and tasteful decor, making it a great choice for families or first-time buyers seeking a cozy yet spacious home.
With its own private entrance and desirable off-street parking, convenience is at your doorstep. Ideal for those commuting, it’s located near Hampton Wick station, while a variety of shops and renowned schools are just moments away. The property, built between 1967-1975, benefits from double glazing and efficient gas central heating, though potential buyers should be aware of a moderate service charge and the need for future renovations on insulation.
Don't miss the opportunity to make this delightful flat your new home—properties like this in such a welcoming community are in high demand!
2 bedroom flat for sale in Woffington Close, Hampton Wick, KT1 — £435,000 • 2 bed • 1 bath • 800 ft²
2 bedroom maisonette for sale in Woffington Close, Hampton Wick, KT1 — £350,000 • 2 bed • 1 bath • 788 ft²
2 bedroom flat for sale in Crieff Court, Teddington, TW11 — £395,000 • 2 bed • 1 bath • 718 ft²
2 bedroom flat for sale in Vicarage Road, Hampton Wick, KT1 — £435,000 • 2 bed • 1 bath • 706 ft²
2 bedroom maisonette for sale in Vicarage Road, Kingston Upon Thames, KT1 — £650,000 • 2 bed • 1 bath • 1142 ft²
2 bedroom flat for sale in Bucklands Road, Teddington, TW11 — £395,000 • 2 bed • 1 bath • 826 ft²


































































