**Standout Features:**
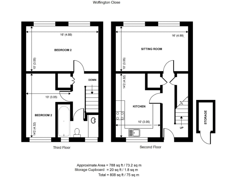
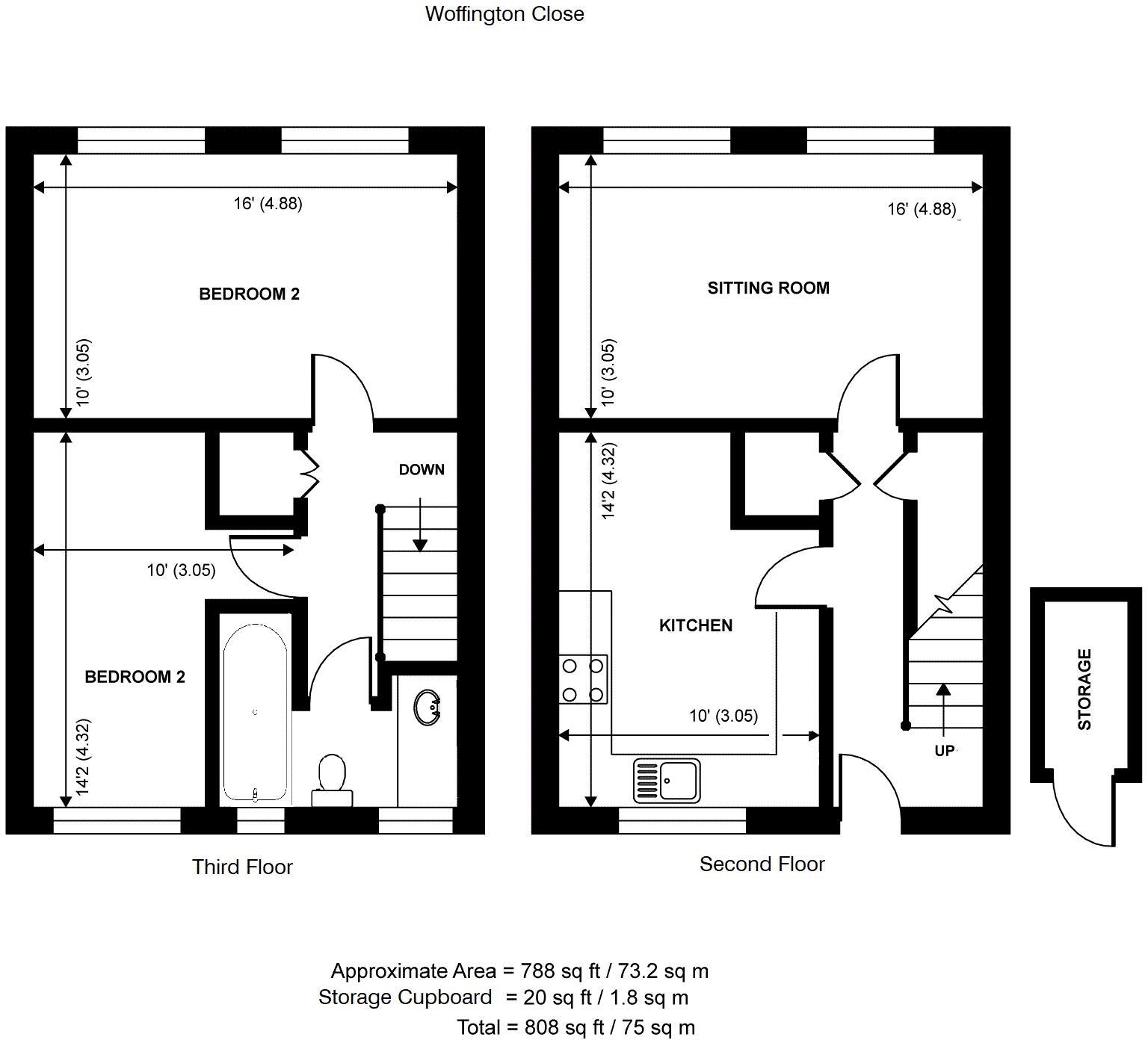
- 2 double bedrooms in a newly renovated maisonette
- Spacious living room and separate kitchen/breakfast room
- No onward chain, 172 years remaining on the lease
- Residents' parking and private storage cupboard on the ground floor
- 0.2 miles from Hampton Wick station and close to local schools
- Abundant communal gardens for outdoor enjoyment
- EPC Rating D
**Summary:**
Discover this charming second and third floor maisonette, offering a blend of comfort and modern convenience in a sought-after location. Spanning 788 sq ft, this generously sized home features a bright living room, a well-appointed separate kitchen/breakfast room, and two good-sized double bedrooms, complemented by a stylish family bathroom. Newly decorated throughout, it boasts quality fixtures, large double-glazed windows that flood the space with natural light, and an inviting ambiance perfect for young families, first-time buyers, or investors seeking rental potential.
Enjoy the landscaped communal gardens and the peace of mind that comes with residents' parking. Ideal for commuters, this property is just 0.2 miles from Hampton Wick station and within close proximity to reputable schools, including the 'Outstanding' rated Hampton Wick Infant School. Embrace outdoor adventures with Bushy Park just 0.4 miles away and Kingston town center nearby for leisurely activities. With no onward chain, don't miss the chance to make this delightful maisonette your new home—properties like this are in high demand and won’t last long!
 2 bedroom flat for sale in Woffington Close, Hampton Wick, KT1 — £425,000 • 2 bed • 1 bath • 814 ft²
 2 bedroom flat for sale in Woffington Close, Hampton Wick, KT1 — £425,000 • 2 bed • 1 bath • 814 ft² 2 bedroom maisonette for sale in Crieff Court, Teddington, TW11 — £375,000 • 2 bed • 1 bath • 734 ft²
 2 bedroom maisonette for sale in Crieff Court, Teddington, TW11 — £375,000 • 2 bed • 1 bath • 734 ft² 2 bedroom maisonette for sale in Vicarage Road, Kingston Upon Thames, KT1 — £650,000 • 2 bed • 1 bath • 1142 ft²
 2 bedroom maisonette for sale in Vicarage Road, Kingston Upon Thames, KT1 — £650,000 • 2 bed • 1 bath • 1142 ft² 2 bedroom flat for sale in Woffington Close, Hampton Wick, KT1 — £435,000 • 2 bed • 1 bath • 800 ft²
 2 bedroom flat for sale in Woffington Close, Hampton Wick, KT1 — £435,000 • 2 bed • 1 bath • 800 ft² 2 bedroom flat for sale in Crieff Court, Teddington, TW11 — £395,000 • 2 bed • 1 bath • 718 ft²
 2 bedroom flat for sale in Crieff Court, Teddington, TW11 — £395,000 • 2 bed • 1 bath • 718 ft² 2 bedroom apartment for sale in High Street, Hampton Wick, Kingston Upon Thames, KT1 — £450,000 • 2 bed • 1 bath • 725 ft²
 2 bedroom apartment for sale in High Street, Hampton Wick, Kingston Upon Thames, KT1 — £450,000 • 2 bed • 1 bath • 725 ft²






















































