DN35 0QP - 3 bed spacious cul de sac home in Cleethorpes, DN35 0QP

View on Property Piper

3 bedroom detached house for sale in Chelsea Walk, Cleethorpes, DN35

Summary - 2 Chelsea Walk,CLEETHORPES,DN35 0QP DN35 0QP

3 bed 2 bath Detached

Large flexible family house near country park with parking and garden.
Large detached family home with flexible 3–4 bedroom layout
Sun room off lounge with French doors overlooking private garden
Breakfast kitchen with breakfast bar; separate downstairs cloakroom/ensuite
Integral garage plus rear garage and driveway for two cars
Garden decking, summer house (with electricity) and hot-tub area
Hot tub available by separate negotiation (not included)
Freehold, gas central heating, uPVC double glazing, low local crime
Located at cul-de-sac entrance with pedestrian access to Country Park
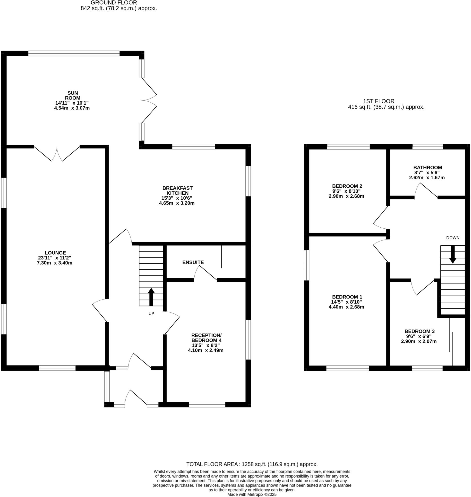
Set at the head of a quiet cul-de-sac with pedestrian access to Cleethorpes Country Park, this substantial detached house offers flexible family accommodation and easy outdoor living. The ground floor features a large lounge with French doors into a tiled sun room, a breakfast kitchen with bar, a second reception room that can serve as a fourth bedroom with ensuite, and a downstairs cloakroom — ideal for growing families.

Upstairs are three well-proportioned bedrooms and a large family bathroom. The property benefits from gas central heating, uPVC double glazing, an integral garage plus additional rear garage, and a driveway providing two off-street parking spaces. Broadband and mobile signals are reported as good, and the home sits in an affluent, low-crime area with affordable council tax (Band C).

Outside, the rear garden includes a lawn, timber decking, summer house with electricity, a gazebo and a hot-tub area; note the hot tub is available only by separate negotiation. The house is presented in modern suburban condition throughout, with laminate and carpeted floors and neutral décor ready for straightforward move-in or minor personal updating.

Potential buyers should be aware of the local area classification (detached retirement living/ageing suburbanites), which reflects a quieter, more mature neighbourhood demographic — a plus for those seeking peace, less suitable for buyers wanting a lively, younger community. Tenure is freehold, and mains services are connected.

Property Details

Brochure Descriptions

Image Descriptions

Floorplan Description

Rooms

Textual Property Features

Target Audience

AI Tags

Detected Visual Features

Nearby Schools

Nearest Bars And Restaurants

,,,,}

Nearest General Shops

,,}

Nearest Grocery shops

,,}

Nearest Supermarkets

,,}

Nearest Religious buildings

,,}

Nearest Medical buildings

,,,}

Nearest Leisure Facilities

,,,,}

Nearest Tourist attractions

,,}

Nearest Train stations

,,,,}

Nearest Bus stations and stops

,,,,}

Nearest Hotels

,,}

Tags

Local Market Stats

AirBnB Data

Similar Properties

Meta

High Res Images

Compatible Images

Low res Images

Thumbnails

Raw Images

High Res Floorplan Images

Compatible Floorplan Images

Low res Floorplan Images

FloorplanImages Thumbnail

Raw Floorplan Images