Short walk to the seafront, excellent schools and an included garden hot tub.
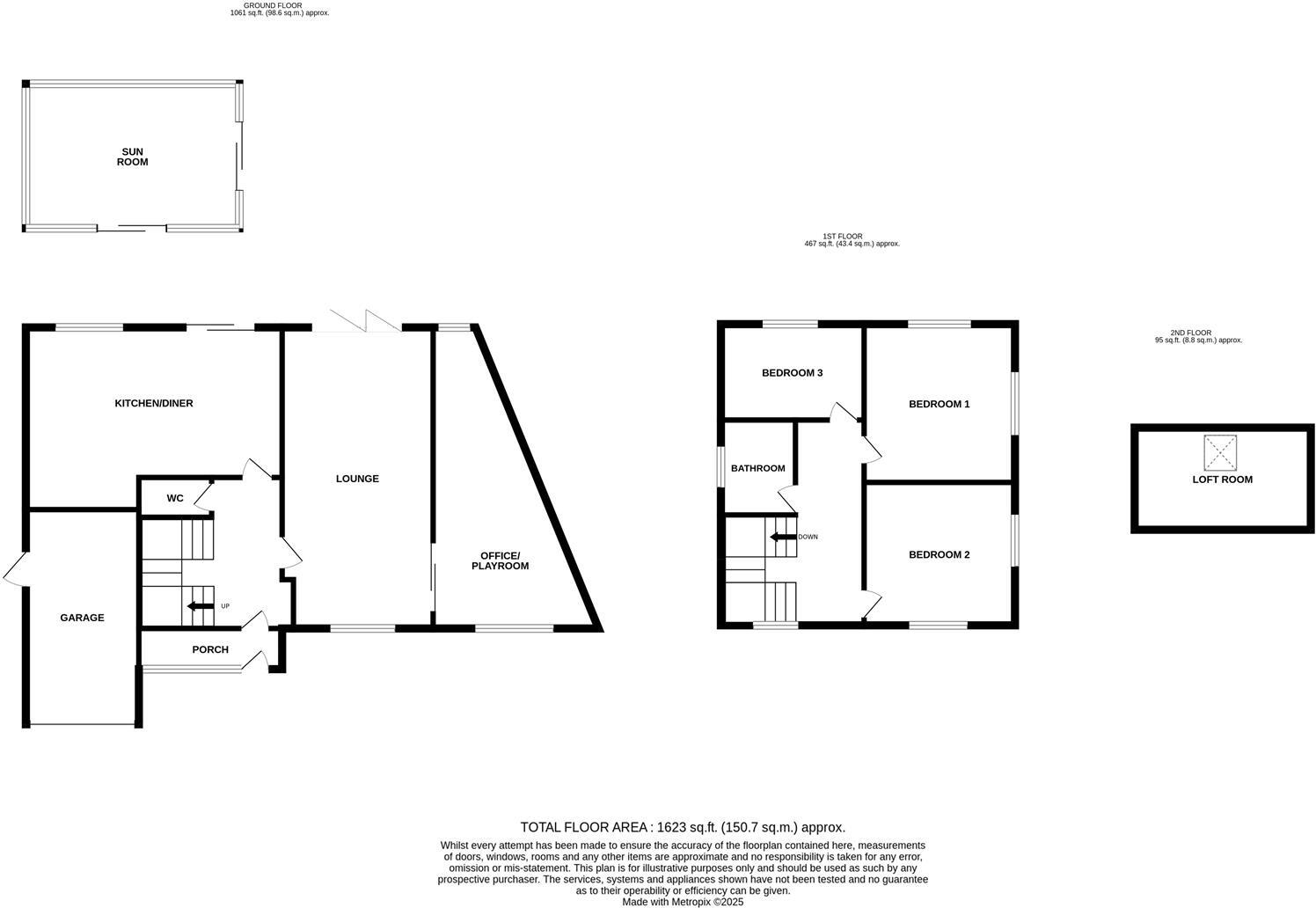
- Modern open-plan kitchen/diner with integrated appliances
- Dual-aspect lounge with bi-fold doors to garden
- Garden room with hot tub included in sale
- Integral garage plus large in-and-out driveway parking
- Three bedrooms; loft room accessed by drop-down ladder
- Single family bathroom (plus downstairs cloakroom)
- Low-maintenance resin-bound rear garden
- Built c.1950s–66; some older fabric may need attention
Set on a popular Cleethorpes road and just a short walk from the seafront, this extended detached house offers flexible family living across two main floors plus a loft room. The ground floor has a modern open-plan kitchen/dining area and a dual-aspect lounge with bi-fold doors that flow to a low-maintenance, landscaped garden and separate garden room complete with a hot tub (included).
Accommodation includes three first-floor bedrooms, a family bathroom and a loft room accessed via a drop-down ladder – useful as occasional space but with limited permanent headroom. A versatile study/playroom on the ground floor could serve as a fourth bedroom or a home office. Practical highlights include an integral garage, a wide in-and-out block-paved driveway for multiple vehicles, gas central heating and double glazing installed after 2002.
This home suits growing families who prioritise school catchment and seaside access; Signhills and nearby secondary schools are highly rated. The property is freehold, in good modern condition, and benefits from an affluent, low-flood-risk area. Buyers should note there is a single family bathroom and the loft room is reached by a ladder, which may limit its use as a primary bedroom without alteration.
3 bedroom detached house for sale in Chichester Road, Cleethorpes, DN35 — £298,500 • 3 bed • 1 bath • 1126 ft²
3 bedroom detached house for sale in Chelsea Walk, Cleethorpes, DN35 — £295,000 • 3 bed • 2 bath • 1258 ft²
4 bedroom detached house for sale in Cottesmore Road, Cleethorpes, DN35 — £339,950 • 4 bed • 2 bath • 1094 ft²
3 bedroom semi-detached house for sale in Braemar Road, Cleethorpes, DN35 — £200,000 • 3 bed • 1 bath • 983 ft²
4 bedroom detached house for sale in Grainsby Avenue, Cleethorpes, DN35 — £315,000 • 4 bed • 2 bath • 1497 ft²
3 bedroom semi-detached house for sale in Strubby Close, Cleethorpes , DN35 — £240,000 • 3 bed • 1 bath • 1094 ft²










































































































