Renovated four-bedroom bungalow with garage, garden and home office for family living.
4 double bedrooms including attic conversion with skyline views
Open-plan kitchen/living with four skylights and garden access
Three contemporary bathrooms finished to high specification
South-facing garden; modest size suitable for family use
Private garage plus long driveway parking
Detached outdoor office ideal for home working or studio use
Newly renovated throughout; check external age-related maintenance
Located in an area classified as deprived — consider local dynamics
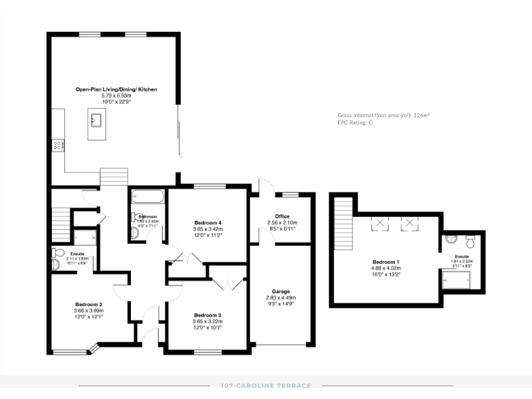
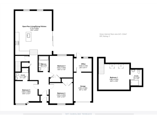
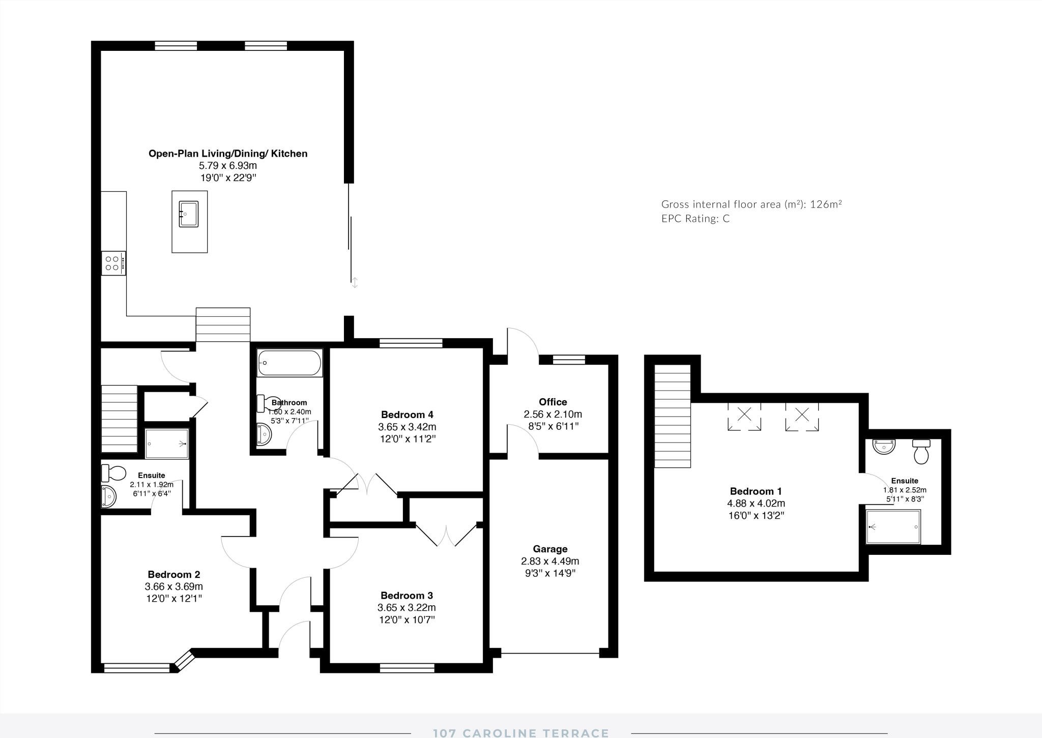
This recently renovated four-bedroom semi-detached home on Caroline Terrace offers a bright, contemporary layout tailored for family life. The large open-plan living, dining and kitchen is enhanced by four skylights and a seamless flow to a south-facing garden, creating a light-filled hub for daily living and entertaining. Renovations are high-spec throughout, with three modern bathrooms and an attic conversion delivering a flexible fourth bedroom with skyline views.
Practical features include a private garage, long driveway parking and a detached purpose-built outdoor office — useful for remote work or as a studio. The property is freehold, has excellent mobile signal and fast broadband, and sits in a comfortable suburban area convenient for local amenities.
Buyers should note the wider area is described as deprived, which may affect long-term local dynamics. The bungalow is mid-20th-century brick construction; although newly renovated internally, buyers should check for any age-related maintenance on external elements and confirm services and warranties for the recent works. Overall this is a move-in ready family home with strong flexible living spaces and useful outbuildings.
4 bedroom detached bungalow for sale in 23 Durham Drive, Duddingston, Edinburgh, EH15 1PH, EH15 — £580,000 • 4 bed • 2 bath • 1317 ft²
3 bedroom semi-detached house for sale in 12 Bullfinch Row, Gilmerton, Edinburgh, EH17 8XE, EH17 — £299,950 • 3 bed • 2 bath • 741 ft²
4 bedroom semi-detached house for sale in 20 Baberton Mains Loan, Edinburgh, EH14 3EP, EH14 — £425,000 • 4 bed • 2 bath • 1561 ft²
3 bedroom semi-detached bungalow for sale in Dechmont Road, Corstorphine, Edinburgh, EH12 — £495,000 • 3 bed • 1 bath • 990 ft²
4 bedroom detached house for sale in 16 Kedslie Place, Liberton, Edinburgh, EH16 6NU, EH16 — £600,000 • 4 bed • 3 bath • 2034 ft²
4 bedroom detached house for sale in 2 Niven Way, West Craigs, Edinburgh, EH12 8FP, EH12 — £600,000 • 4 bed • 3 bath • 1636 ft²


































































































































