Ready-to-live modern home with private garden and garage for growing families.
Chain free — immediate sale possible
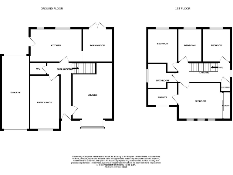
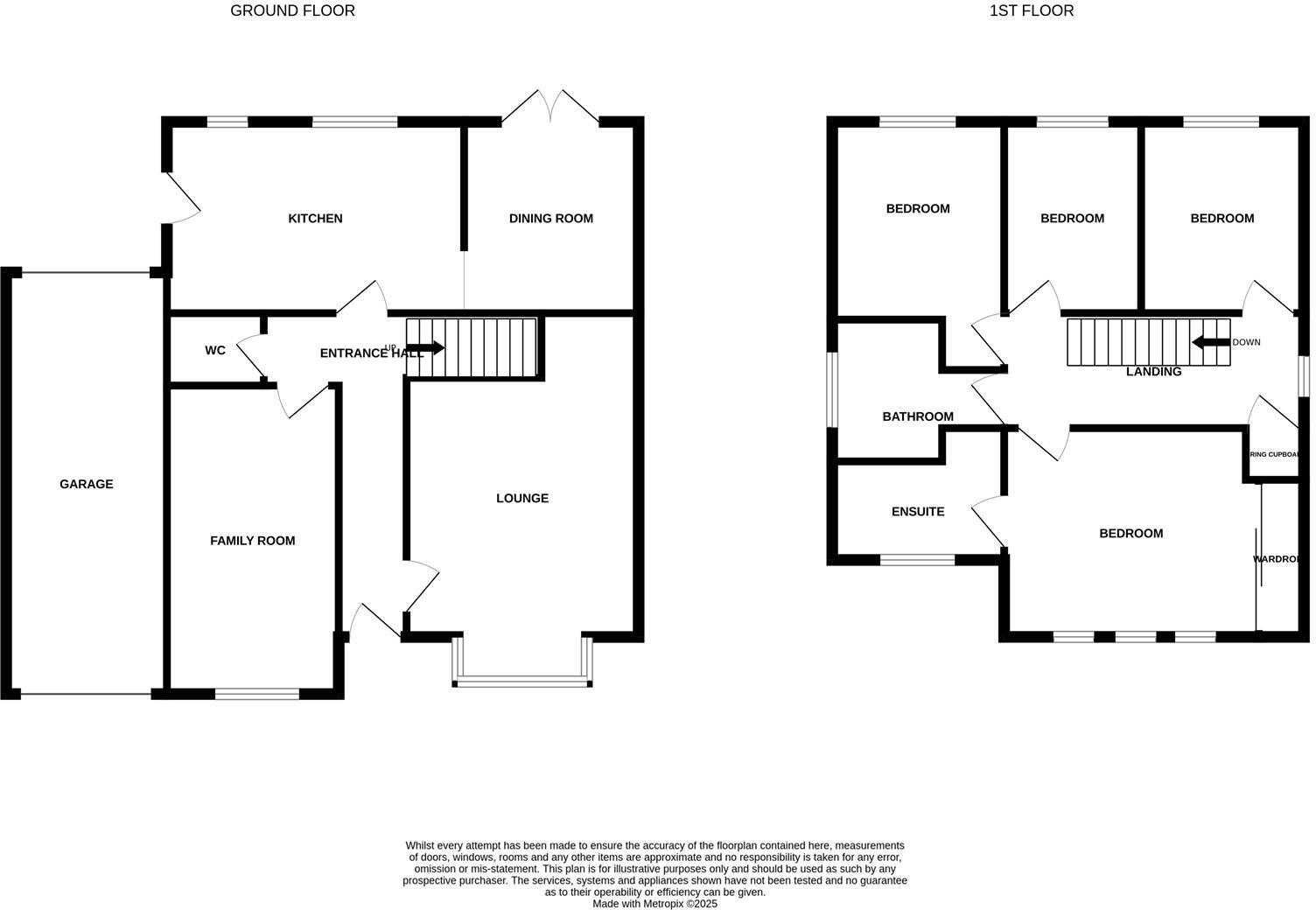
A chain-free, modern detached home on Dussindale offering flexible family living across two floors. The ground floor features a welcoming entrance hall, bright lounge, well-equipped kitchen, separate dining area and a versatile family room that can serve as a downstairs bedroom or playroom. Large driveway and integral garage provide secure off-road parking and storage.
Upstairs are four good bedrooms, including a principal bedroom with an en-suite, and a contemporary family bathroom. The private rear garden is neatly maintained with lawn, decking and mature planting — ideal for children and outdoor entertaining. Built in the early 1990s with later double glazing and gas central heating, the house is presented in good order and ready to occupy.
Practical benefits include freehold tenure, fast full-fibre broadband, low local crime and easy access to nearby shops, schools and transport links. The property’s size is modest for a five-bedroom description (approximately 1,264 sq ft), so buyers seeking very large rooms or extensive living space should note the compact footprint. Council Tax sits at a moderate Band D.
4 bedroom detached house for sale in Newbury Way, Dussindale, NR7 — £365,000 • 4 bed • 3 bath • 1038 ft²
4 bedroom detached house for sale in Naseby Way, Norwich, NR7 — £340,000 • 4 bed • 2 bath • 1066 ft²
3 bedroom detached house for sale in Montrose Court, Dussindale, NR7 — £310,000 • 3 bed • 2 bath • 698 ft²
4 bedroom detached house for sale in Culverin Close, Norwich, Norfolk, NR7 — £500,000 • 4 bed • 3 bath • 2045 ft²
5 bedroom detached house for sale in Desborough Way, Norwich, NR7 — £420,000 • 5 bed • 2 bath • 1183 ft²
4 bedroom detached house for sale in Vane Close, Dussindale, NR7 — £375,000 • 4 bed • 2 bath • 1055 ft²










































































































































































































