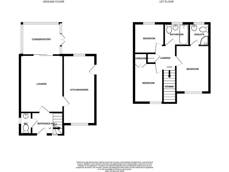
Chain-free three-bed home overlooking the green, driveway and garage, ideal for small families..
Chain free detached house overlooking communal green
Driveway plus single integral garage for parking and storage
Three bedrooms; principal bedroom has en-suite shower
Conservatory opens to small, mature rear garden and patio
Compact internal area — approximately 698 sq ft (small overall size)
Plot is modest; limited scope for extension without planning
Gas central heating, double glazing, full-fibre broadband available
Council Tax Band D; moderate running costs
Set on a quiet cul-de-sac overlooking communal green space, this modern three-bedroom detached home offers straightforward family living on the sought-after Dussindale estate. The property is offered chain free, with driveway parking and an integral single garage — useful for a family car and extra storage. Light-filled living areas include a lounge, kitchen/diner and a conservatory opening onto a private rear garden.
Upstairs provides three bedrooms, including a principal with en-suite, plus a family bathroom. Room sizes are typical for this style; the overall internal area is compact at around 698 sq ft, so the house will suit buyers looking for a practical, low-maintenance family home rather than expansive accommodation. Gas central heating, double glazing and full-fibre broadband are in place.
Externally the plot is modest but well-kept: a small front garden, driveway to the garage and a rear lawn with patio, mature planting and timber shed. The setting benefits from low local crime, fast broadband and excellent mobile signal, with nearby schools, shops and transport links to Norwich city centre.
A sensible purchase for first-time families or downsizers wanting a modern, low-upkeep home in a comfortable suburb. Be aware the property’s overall square footage and small plot limit extension potential without planning, and the single garage may not suit households needing substantial storage or parking for multiple vehicles.
 3 bedroom detached house for sale in Association Way, Dussindale, NR7 — £280,000 • 3 bed • 2 bath • 1066 ft²
 3 bedroom detached house for sale in Association Way, Dussindale, NR7 — £280,000 • 3 bed • 2 bath • 1066 ft² 4 bedroom detached house for sale in Bunyan Close, Dussindale, NR7 — £350,000 • 4 bed • 3 bath • 1045 ft²
 4 bedroom detached house for sale in Bunyan Close, Dussindale, NR7 — £350,000 • 4 bed • 3 bath • 1045 ft² 4 bedroom detached house for sale in Newbury Way, Dussindale, NR7 — £365,000 • 4 bed • 3 bath • 1038 ft²
 4 bedroom detached house for sale in Newbury Way, Dussindale, NR7 — £365,000 • 4 bed • 3 bath • 1038 ft² 4 bedroom detached house for sale in Rainsborough Rise, Dussindale, NR7 — £650,000 • 4 bed • 2 bath • 1730 ft²
 4 bedroom detached house for sale in Rainsborough Rise, Dussindale, NR7 — £650,000 • 4 bed • 2 bath • 1730 ft² 3 bedroom semi-detached house for sale in Naseby Way, Dussindale, NR7 — £270,000 • 3 bed • 1 bath • 854 ft²
 3 bedroom semi-detached house for sale in Naseby Way, Dussindale, NR7 — £270,000 • 3 bed • 1 bath • 854 ft² 3 bedroom semi-detached house for sale in Mary Chapman Close, Dussindale, NR7 — £270,000 • 3 bed • 2 bath • 754 ft²
 3 bedroom semi-detached house for sale in Mary Chapman Close, Dussindale, NR7 — £270,000 • 3 bed • 2 bath • 754 ft²














































































