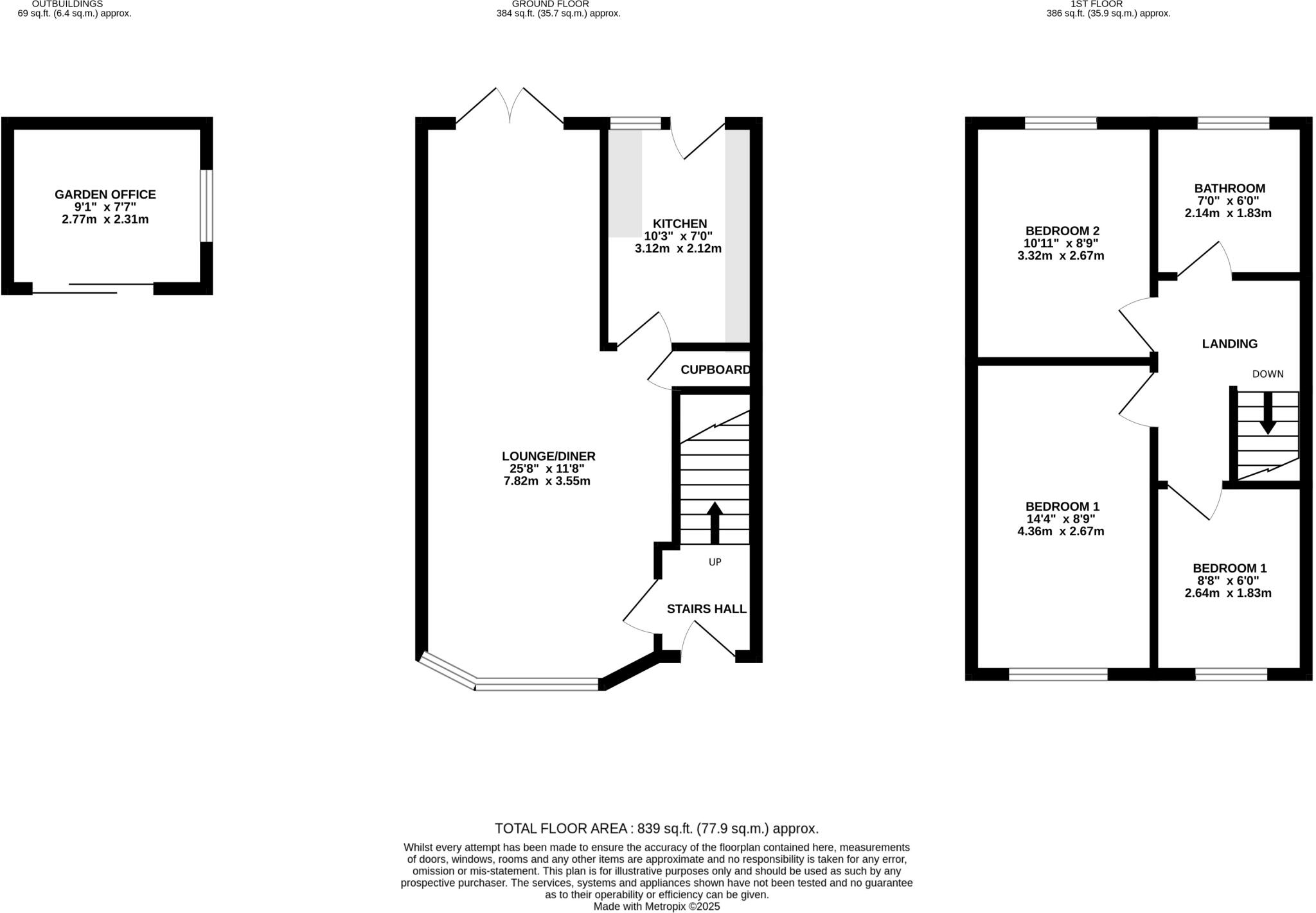
Well-presented 3-bed end townhouse with garden room and great commuter links.
- 25' through lounge/diner with bay window and French doors
- Recently landscaped rear garden with Indian stone terrace
- Garden room/home office with electric heating and sliding doors
- Modern cream Shaker kitchen with integrated appliances
- Two double bedrooms plus single/study; principal front aspect
- Single three-piece bathroom recently re-tiled in white ceramics
- En bloc garage; on-street parking only at property
- Double glazing installed before 2002; built 1983–1990
A well-presented 3-bedroom end-of-terrace townhouse in a quiet Horsforth cul-de-sac, offered freehold and arranged over two floors. Light fills the 25' through lounge/diner with a front bay window and French doors opening to a recently landscaped rear garden. The private garden includes an Indian stone terrace, raised lawns and a versatile garden room/home office with electric heating and sliding doors.
The ground floor also features a modern cream Shaker kitchen with integrated appliances and space for utility plumbing. Upstairs there are two double bedrooms, a single/study and a recently re-tiled three-piece family bathroom. Practical details include double glazing (installed before 2002), cavity-filled walls and gas central heating via boiler and radiators.
Outside, the property benefits from pleasant front and rear gardens, gated rear access and an en bloc garage; on-street parking serves the house itself. The location is a strong selling point — highly regarded schools, local amenities, canal and park walks, and excellent road, rail and airport links make this appealing for families and commuters.
Buyers should note the home has a single family bathroom and a relatively small plot. The garden room is powered by electric heating (separate from the main gas system). Overall condition is described as nicely presented, but purchasers wanting larger off-street parking or additional bathrooms would need to consider modifications.
3 bedroom end of terrace house for sale in King George Road, Horsforth, Leeds, West Yorkshire, UK, LS18 — £280,000 • 3 bed • 1 bath • 767 ft²
3 bedroom end of terrace house for sale in Broadgate Rise, Horsforth, Leeds, West Yorkshire, LS18 — £270,000 • 3 bed • 1 bath • 784 ft²
3 bedroom terraced house for sale in Rose Terrace, Horsforth, Leeds, West Yorkshire, LS18 — £325,000 • 3 bed • 1 bath • 767 ft²
3 bedroom terraced house for sale in Broadway, Horsforth, Leeds, LS18 — £240,000 • 3 bed • 1 bath • 563 ft²
3 bedroom end of terrace house for sale in Craggwood Road, Horsforth, Leeds, West Yorkshire, LS18 — £495,000 • 3 bed • 2 bath • 2014 ft²
4 bedroom end of terrace house for sale in Springfield Close, Horsforth, Leeds, West Yorkshire, LS18 — £310,000 • 4 bed • 1 bath • 926 ft²


































































