Large family home near parks and top-rated schools, ready for improvement.
Five large bedrooms with high ceilings and good natural light
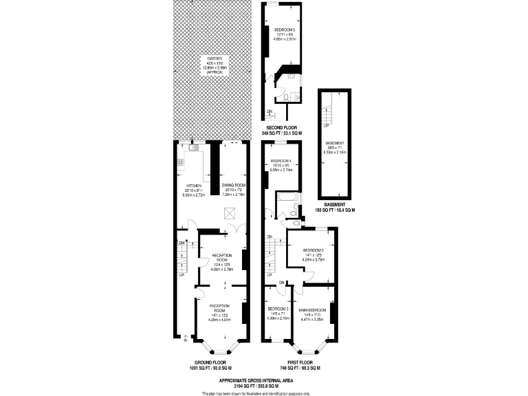
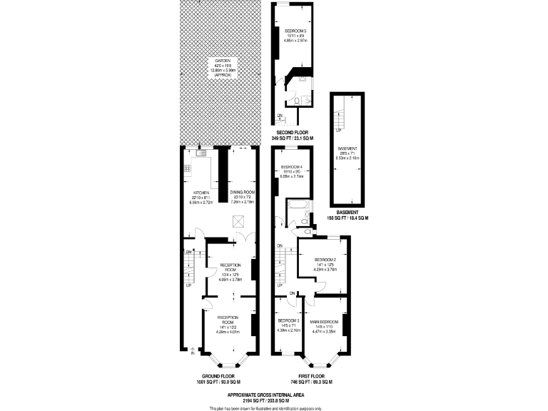
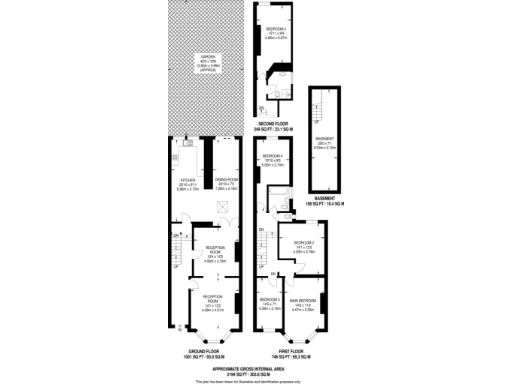
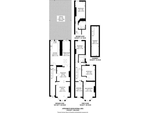
A roomy five-bedroom mid-terrace on Farleigh Road that suits established families seeking near-central Stoke Newington living. High ceilings and large bedrooms create a bright, airy feel across generous reception and living spaces, while a separate dining room opens directly to a private rear garden. The house is freehold and offers a substantial 2,194 sq ft layout across multiple storeys.
Practical strengths include a large kitchen, two bathrooms, double glazing (install date unknown), mains gas boiler and fast broadband/mobile coverage. Excellent primary and secondary schools are within easy reach, and green space at Hackney Downs sits close by — useful daily conveniences for families.
Buyers should note some material points: the solid-brick walls appear to have no cavity insulation (assumed), the rear garden and plot are small relative to property size, and there are only two bathrooms for five bedrooms. The area shows higher deprivation indices, though local amenities and schools are strong. These factors suggest useful improvement potential — thermal upgrades, bathroom reconfiguration, and cosmetic modernisation could add value.
Overall this house offers immediate family accommodation with scope for targeted renovation to improve energy performance and contemporary living standards. It will appeal to buyers prioritising space, schools and location who are prepared to carry out selective upgrades.
6 bedroom terraced house for sale in Amhurst Road, Stoke Newington, London, N16 — £2,500,000 • 6 bed • 3 bath • 3455 ft²
4 bedroom terraced house for sale in Brodia Road, Stoke Newington, London, N16 — £1,300,000 • 4 bed • 2 bath • 1396 ft²
5 bedroom terraced house for sale in Kersley Road, London, N16 — £2,250,000 • 5 bed • 2 bath • 2538 ft²
4 bedroom terraced house for sale in Howard Road, Stoke Newington, London, N16 — £850,000 • 4 bed • 2 bath • 1124 ft²
5 bedroom terraced house for sale in Rectory Road, London, N16 — £1,400,000 • 5 bed • 4 bath • 2250 ft²
5 bedroom terraced house for sale in Grayling Road, London, N16 — £2,500,000 • 5 bed • 4 bath • 2458 ft²






























































































































































































