Two dwellings consented within 6 acres of Suffolk countryside; listed barns with development potential..
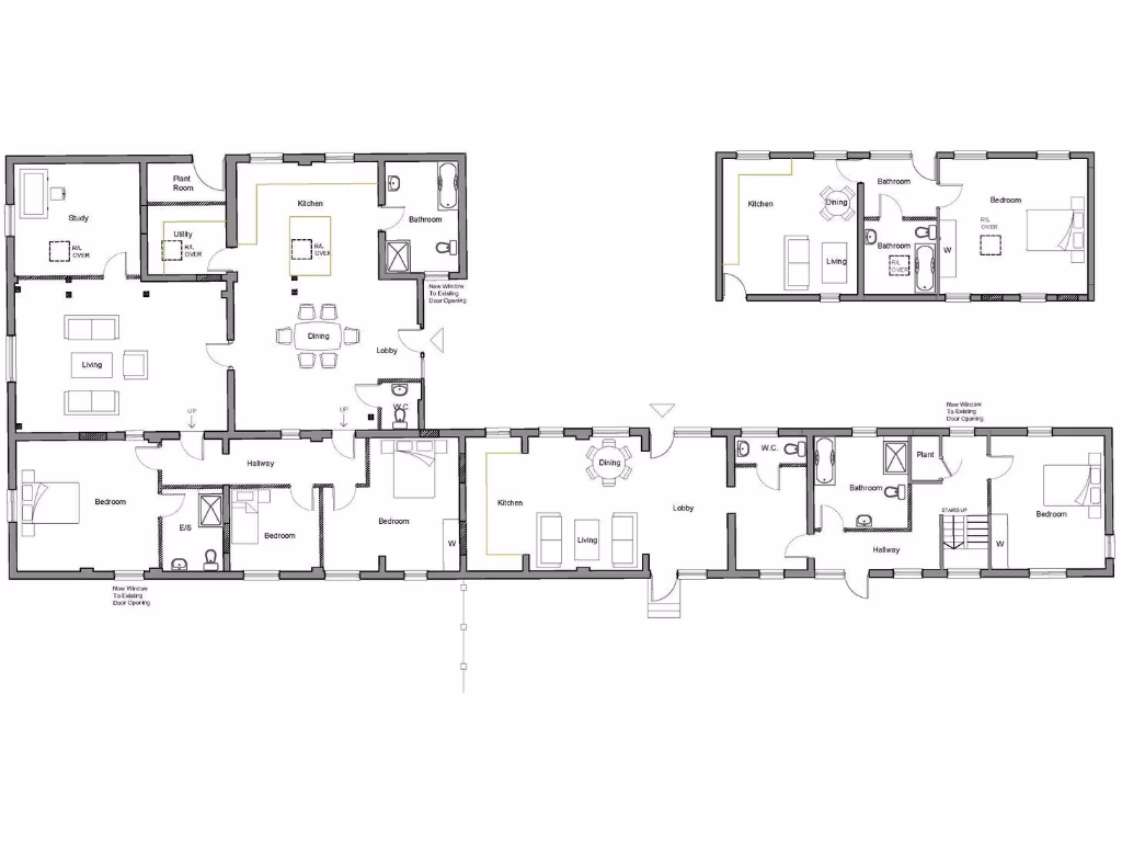
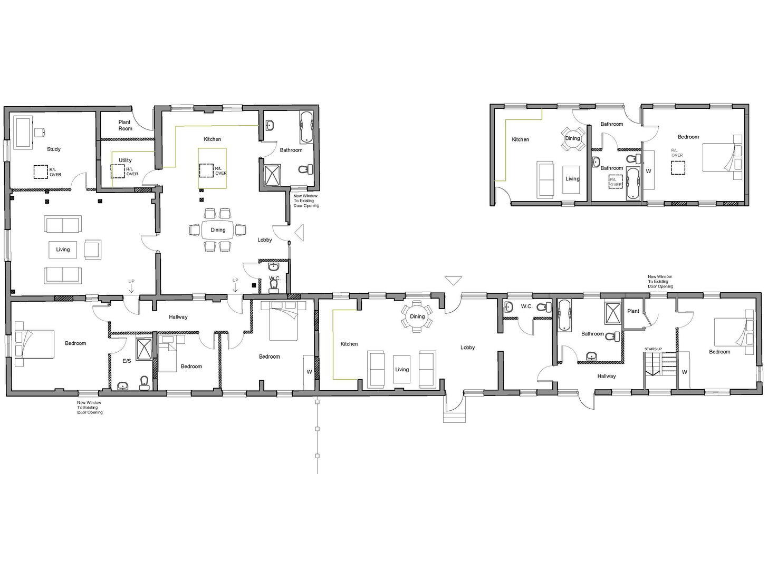
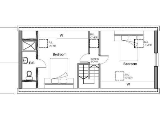
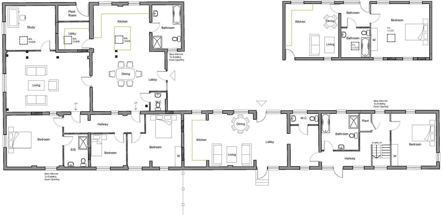
Planning permission and Listed Building Consent granted for two dwellings (one with annexe)
Approximately 6 acres of gardens, meadow, stables and outbuildings
Pole barn with potential Class Q conversion (not investigated)
Buyer to install new water supply; electricity needs severing/reconnection
On-site sewage treatment present but condition unknown — investigate
CIL liability approx. £41,753.75 (buyer responsible)
Barns are curtilage-listed — will restrict works and add cost/time
Remote hamlet: slow broadband, average mobile signal, low local crime
An attractive range of brick and timber barns standing in about 6 acres of gardens and meadow, offered with planning permission and Listed Building Consent to form two dwellings, one with an annexe. The consented proposals give clear room layouts for each plot, creating substantial, characterful homes while retaining traditional materials such as brick and timber and existing outbuildings including stables and a pole barn.
This is a rural, low-crime location in St Margaret South Elmham, close to Bungay, Harleston and Halesworth for everyday shops and rail links. The site already has electricity; however buyers must sever and re-establish supplies, install a new water connection and verify the on-site sewage treatment plant. Broadband speeds are slow and mobile signal is average—typical of a remote hamlet setting.
Important practical matters: the barns are curtilage-listed and the listing will impose restrictions and likely increase costs and lead times for works. East Suffolk Council has issued a CIL Liability Notice currently indexed at £41,753.75 payable by the buyer. A pole barn within the grounds has Class Q permitted development potential but this has not been investigated by the sellers.
Suitable for a buyer who wants a bespoke countryside project—either to complete the permitted two homes, to adapt plans further (subject to consent), or to explore additional conversions on site. Professional surveys and pre-application advice are recommended before purchase to confirm services, costs and buildability.
2 bedroom barn conversion for sale in St Margarets South Elmham, Near Harleston, Suffolk, IP20 — £350,000 • 2 bed • 1 bath • 320 ft²
Barn conversion for sale in Stonham Aspal, Nr Debenham, Suffolk, IP14 — £250,000 • 1 bed • 1 bath • 4500 ft²
3 bedroom barn conversion for sale in Shipmeadow, Beccles, NR34 — £500,000 • 3 bed • 2 bath • 1629 ft²
3 bedroom barn conversion for sale in Marsh Lane, Earsham, Bungay, NR35 — £475,000 • 3 bed • 2 bath • 342 ft²
5 bedroom barn conversion for sale in Ilketshall St. Andrew, Beccles, NR34 — £575,000 • 5 bed • 3 bath • 4028 ft²
6 bedroom barn conversion for sale in Mettingham, Bungay, NR35 — £1,600,000 • 6 bed • 4 bath • 7836 ft²






































































