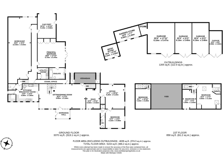
**Standout Features:**
- Unique four/five bedroom barn conversion with ample living space (4,028 sq. ft.)
- Master suite with en-suite bathroom and garden access
- Expansive open-plan living room with stunning vaulted ceiling
- Mature, well-stocked garden with a covered veranda
- Large 40ft workshop with potential for further development (subject to planning)
- Additional garaging currently generating rental income
- Environmentally friendly solar panels for economical living
- Extensive off-road parking and car port
- Lovely rural location adjacent to protected common land
This stunning barn conversion presents an exceptional opportunity for families or investors seeking a versatile property in a tranquil rural setting. With four to five spacious bedrooms, including a master suite that opens directly to the garden, the home combines comfort and functionality. The large open-plan living area features a breathtaking vaulted ceiling, creating an inviting space for family gatherings. Enjoy the beautiful, mature garden from the covered veranda, ensuring peaceful outdoor living.
Beyond just a family home, this property boasts additional income potential with a large workshop and separate garage currently rented out. The property also benefits from economical solar panels and extensive off-road parking. With extensive grounds and breathtaking views of unspoiled countryside, this barn is tailored for those who appreciate privacy, comfort, and versatility.
While the property offers superb living conditions, potential buyers should note that some elements may require future maintenance or enhancement. Don't miss your chance to own this charming piece of countryside paradise—opportunities like this don’t last long!



























































































































