**Standout Features:**
- 4 spacious bedrooms with character features
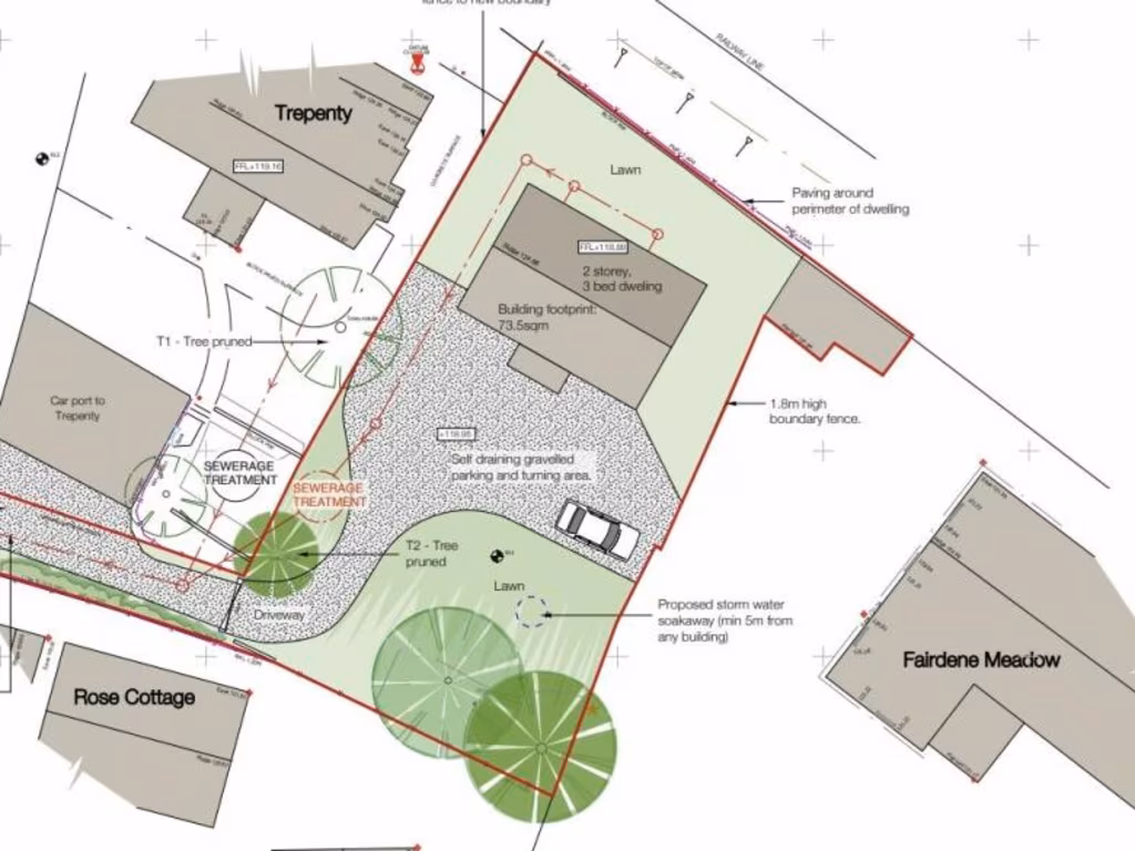
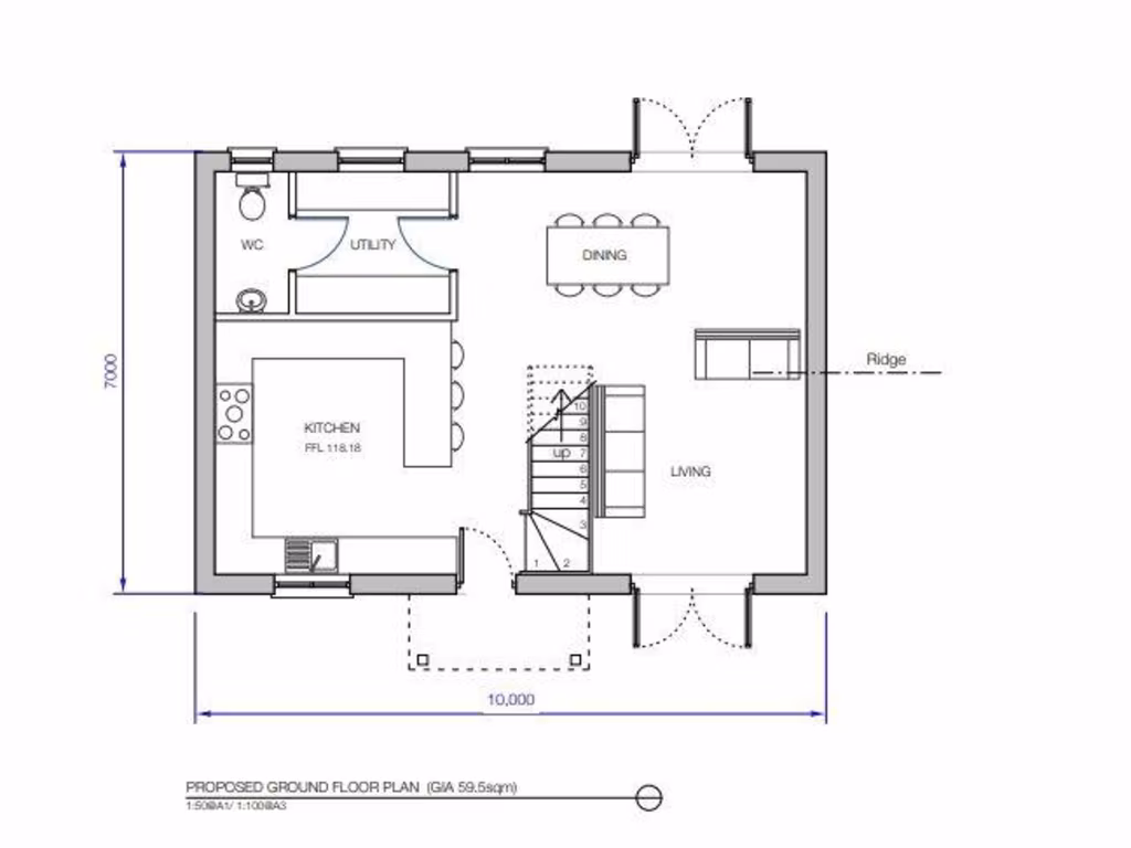
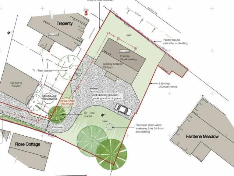
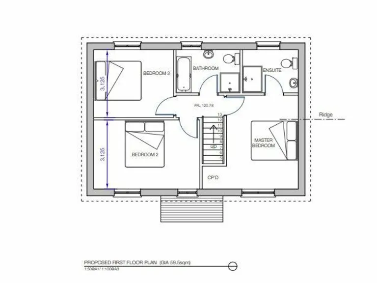
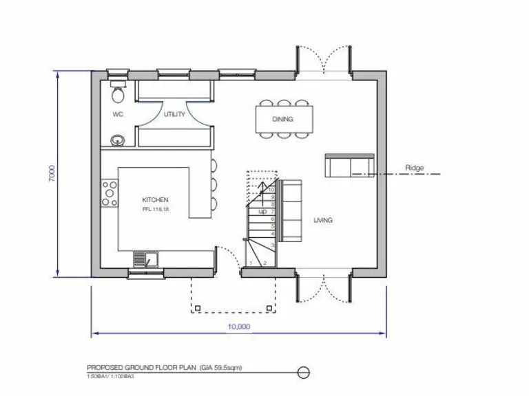
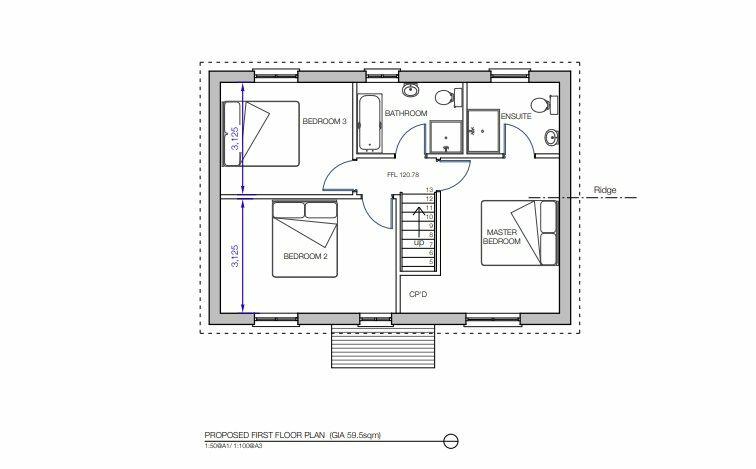
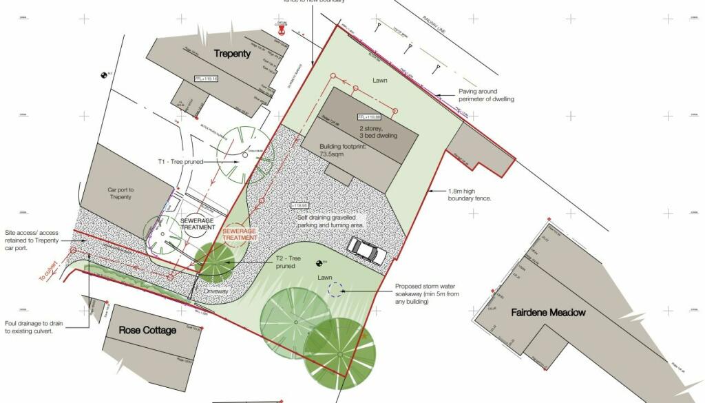
- Additional building plot with planning permission for a detached house (PA20/03858)
- Generous gardens, landscaped with mature trees and paved areas
- Large carport accommodating three vehicles and a detached garage
- High-quality restoration with modern conveniences and rural charm
**Overview:**
Discover this delightful detached family home nestled in the picturesque village of Lanjeth, Cornwall. Offering approximately 1,847 sq ft of elegantly updated living space, this property strikes a perfect balance between character and contemporary comfort. The home boasts four well-proportioned bedrooms and inviting living areas, including an open-concept living room with a striking granite fireplace and an expansive kitchen fitted with an AGA.
Set on a sizable plot with exquisite gardens, this property is an excellent choice for families and investors alike, particularly with the potential to build a second detached house on the adjoining plot—ideal for extra income or as a family retreat. While the location offers the tranquility of rural living just a mile from local amenities, it presents a unique opportunity for future flexibility in renovations or expansions.
Local schools are highly regarded, making this an attractive location for families, while the nearby sandy beaches and outdoor trails are perfect for those who enjoy an active lifestyle. Low crime rates and good council tax affordability further enhance the appeal. Don't miss your chance to own this unique property; viewing is highly recommended to truly appreciate its charm, potential, and surrounding beauty.
4 bedroom detached house for sale in High Street, nr St. Austell, Cornwall, PL26 7TD, PL26 — £580,000 • 4 bed • 3 bath • 2231 ft²
4 bedroom detached house for sale in Lanivet, Nr. Bodmin, Cornwall, PL30 — £795,000 • 4 bed • 2 bath • 2250 ft²
4 bedroom detached house for sale in Pelynt, Looe, PL13 — £750,000 • 4 bed • 3 bath • 2457 ft²
4 bedroom detached house for sale in Kerrow Lane, nr Stenalees, Cornwall, PL26 — £475,000 • 4 bed • 2 bath • 1521 ft²
4 bedroom cottage for sale in The Cottage Bridgemead, Tregorrick, St. Austell, Cornwall, PL26 — £465,000 • 4 bed • 1 bath • 956 ft²
7 bedroom detached house for sale in Lanivet | Cornwall, PL30 — £1,765,000 • 7 bed • 7 bath • 6370 ft²






























































































































































