Large garden, double garage and modernised interiors ideal for families.
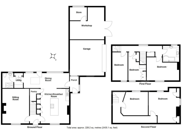
Five bedrooms across three storeys, generous living and dining spaces
A spacious five-bedroom detached cottage in Alphington, recently renovated to combine period character with contemporary living. The property sits on a large plot with a good-size enclosed garden, paved patio, raised deck and summer house — excellent for family life and outdoor entertaining. Internally, generous reception rooms and a large kitchen/diner give flexible living space across three storeys, plus useful utility, workshop/store and a double garage.
Practical strengths include mains gas central heating with a modern boiler, off-street parking for several cars, and mostly double glazing. The kitchen and bathrooms are newly fitted and the house has been refreshed throughout, so it is largely move-in ready for a buyer wanting space close to the city with village character.
Notable matters to consider: the property’s stone walls were constructed before 1900 and are assumed to have no cavity insulation, and the double glazing was installed before 2002 — both can affect running costs. The EPC is D and the house falls in Council Tax Band F, so ongoing energy and tax costs are higher than average. There is a planning application submitted to develop the adjoining field to the rear; this could alter outlook, privacy and future surroundings.
This house will suit a growing family seeking large, flexible accommodation with character and modernised interiors, or someone wanting a substantial home with scope to personalise further. The location benefits from good local schools, fast broadband and excellent mobile signal, while offering convenient access to Exeter amenities.
4 bedroom detached house for sale in Bate Close, Alphington, EX2 — £500,000 • 4 bed • 2 bath • 1281 ft²
4 bedroom detached house for sale in Bate Close, Alphington, EX2 — £535,000 • 4 bed • 2 bath • 1740 ft²
4 bedroom detached house for sale in Shillingford Road, Alphington, EX2 — £1,100,000 • 4 bed • 4 bath • 3217 ft²
4 bedroom detached house for sale in Two Acre Court, Exeter EX2 8YE, EX2 — £500,000 • 4 bed • 2 bath • 1184 ft²
3 bedroom end of terrace house for sale in Midway Terrace, Alphington, EX2 — £300,000 • 3 bed • 1 bath • 528 ft²
2 bedroom cottage for sale in Chapel Road, Alphington, Exeter, EX2 — £339,950 • 2 bed • 1 bath • 1184 ft²


















































































































































