Character home with garden and garage close to schools and transport links.
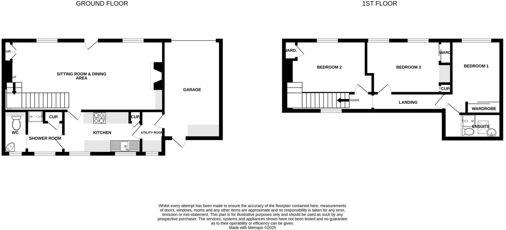
Three bedrooms with en-suite to main bedroom
A charming three-bedroom end-of-terrace cottage in Alphington, offering period character and a generous lounge/diner ideal for family living. The property includes an enclosed, well-stocked garden with seating areas and a versatile summer house currently used as a workshop/office. A private garage with power and garden access is a useful practical bonus.
The house sits in a conservation area and dates from before 1900, with cob walls and double glazing of unknown age. Heating is by mains gas with room heaters; a wall-mounted boiler is located in the inner vestibule. The layout is practical for day-to-day life: a long lounge/diner, compact kitchen, ground-floor shower room and three first-floor bedrooms, one with an en-suite.
Buyers should note the property’s small overall size (approx. 528 sq ft) and some visible external wear — guttering and dated exterior finishes will need attention. The EPC is band D and council tax is band D. For families seeking a character cottage near good schools, shops and commuter links, this home provides immediate use with scope to update and personalise while benefitting from a private garden and garage.
3 bedroom end of terrace house for sale in Church Road, Alphington, EX2 — £350,000 • 3 bed • 1 bath • 918 ft²
3 bedroom semi-detached house for sale in Mandrake Road, Alphington, EX2 — £300,000 • 3 bed • 1 bath • 883 ft²
5 bedroom detached house for sale in Chudleigh Road, Alphington, EX2 — £599,950 • 5 bed • 2 bath • 2435 ft²
2 bedroom terraced house for sale in Church Road, Alphington, EX2 — £300,000 • 2 bed • 1 bath • 677 ft²
3 bedroom semi-detached house for sale in Fairfield Road, Alphington, EX2 — £300,000 • 3 bed • 1 bath • 636 ft²
3 bedroom detached house for sale in Creely Close, Exeter, EX2 — £325,000 • 3 bed • 1 bath • 791 ft²


















































































