Approved plans for a 6‑bed family home in St Stephen’s with off-street parking..
- Planning approval for a double-fronted four-storey home (Planning ref: 250457FUL)
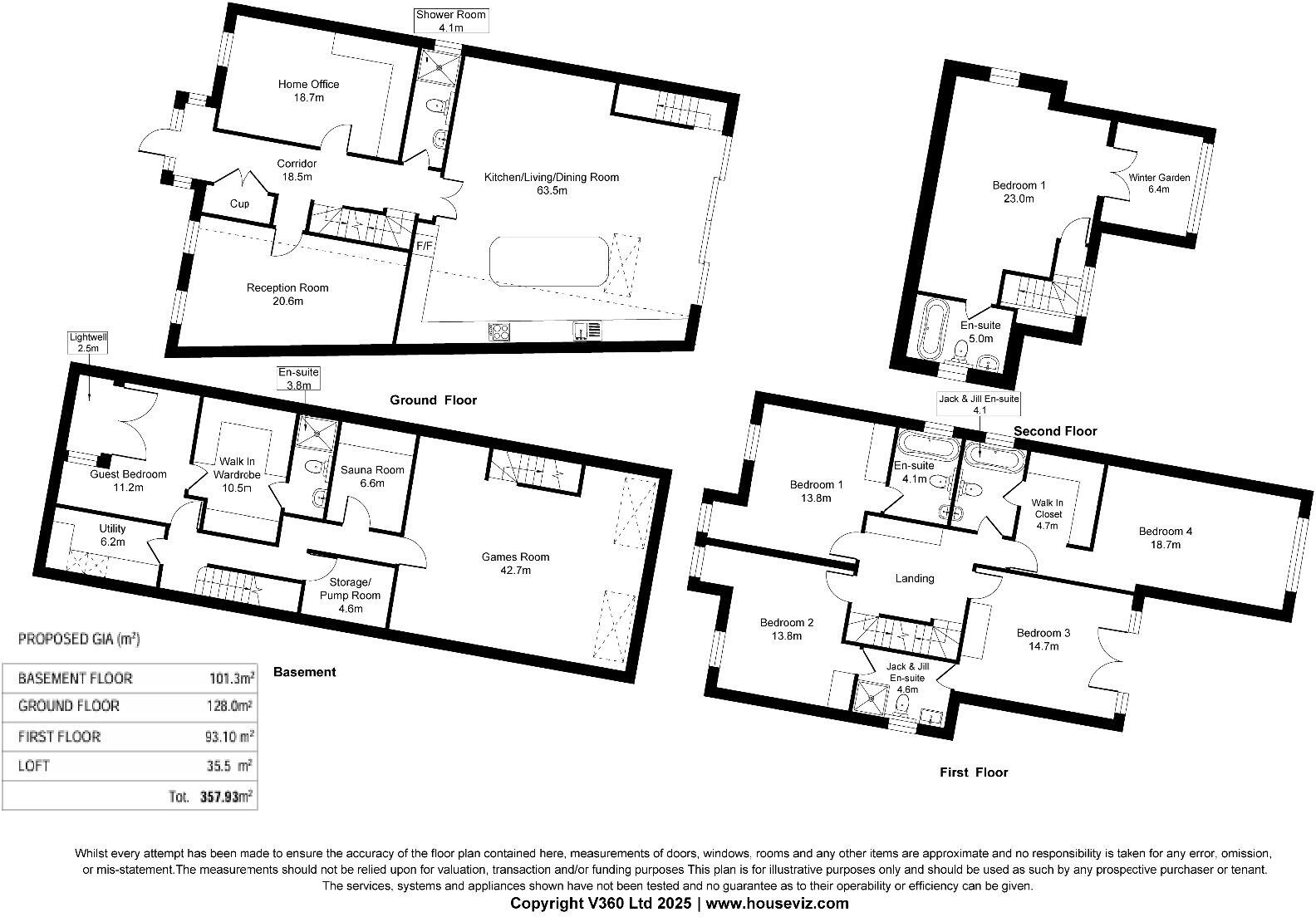
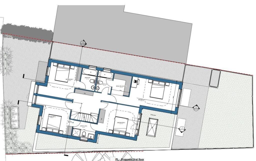
- Consented dwelling approx. 3,842 sq ft with six bedrooms, four en‑suites
- Rear garden and off-street parking included in the scheme
- Excellent transport links: West Ealing (Elizabeth line) ~15 min walk
- CIL liability of £18,625; construction costs and permissions still required
- Chain-free sale — plot purchase only; no completed property on site
- Tenure currently unknown; buyer to verify before exchange
- Small plot footprint relative to dwelling scale; check external space expectations
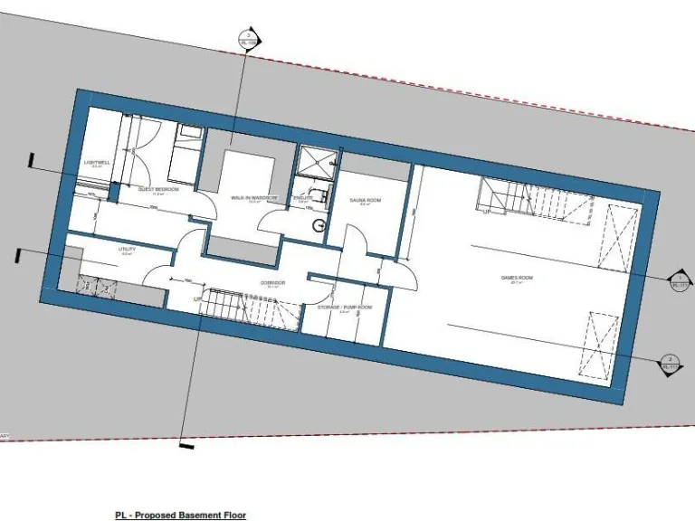
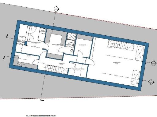
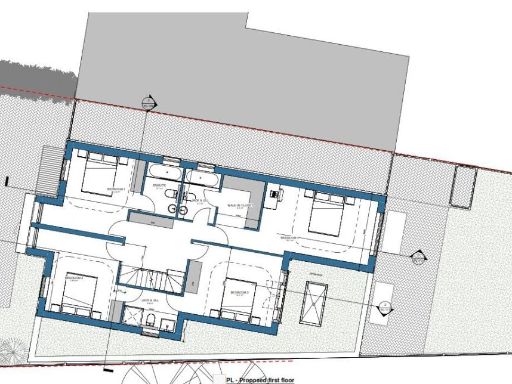
This is a rare plot with planning approval for a double-fronted, four-storey family home of approx. 3,842 sq ft, designed to provide six bedrooms (four en-suites), generous living space and off-street parking. The consented layout includes an open-plan kitchen/dining area, separate reception, basement games room and sauna, plus a top-floor winter garden — appealing for large families seeking flexible living space close to good schools and green parks.
The site sits in the sought-after St Stephen’s area of Ealing with excellent links: West Ealing (Elizabeth line) is about a 15-minute walk, and Ealing Broadway’s shops and amenities are nearby. The neighbourhood is affluent with low crime, fast broadband and strong local schooling options, making the plot well-placed for family life and long-term value.
Buyers should note this is a plot sale with planning approval, not a completed house. Construction and design implementation remain necessary — build costs, contractor selection and statutory charges will apply. There is a Community Infrastructure Levy (CIL) liability of £18,625 and the property is being sold chain-free. Tenure is currently unknown and will require confirmation before exchange.
Overall, the site is best suited to a family wanting a custom new home or a developer/reseller able to manage the build. It offers clear upside via the approved large family layout in a popular west-London location, but requires budget and project management for delivery.
Land for sale in Church Hill Road, Walthamstow, London, E17 — £750,000 • 1 bed • 1 bath
Plot for sale in Bay Court & Spruce Court Airspace, Popes Lane, London, Greater London, W5 — £1,000,000 • 1 bed • 1 bath • 3080 ft²
Land for sale in Castlebar Road, London, W5 — £4,450,000 • 14 bed • 7 bath • 2214 ft²
Land for sale in Church Hill Road, Walthamstow, London, E17 — £750,000 • 4 bed • 1 bath
Plot for sale in Peacock Avenue, Bedfont, TW14 — £175,000 • 1 bed • 1 bath
5 bedroom semi-detached house for sale in Gunnersbury Avenue, London, W5 — £2,450,000 • 5 bed • 1 bath • 2297 ft²






























