**Standout Features:**
- Block of 2-bedroom apartments with planning permission for 2 additional units
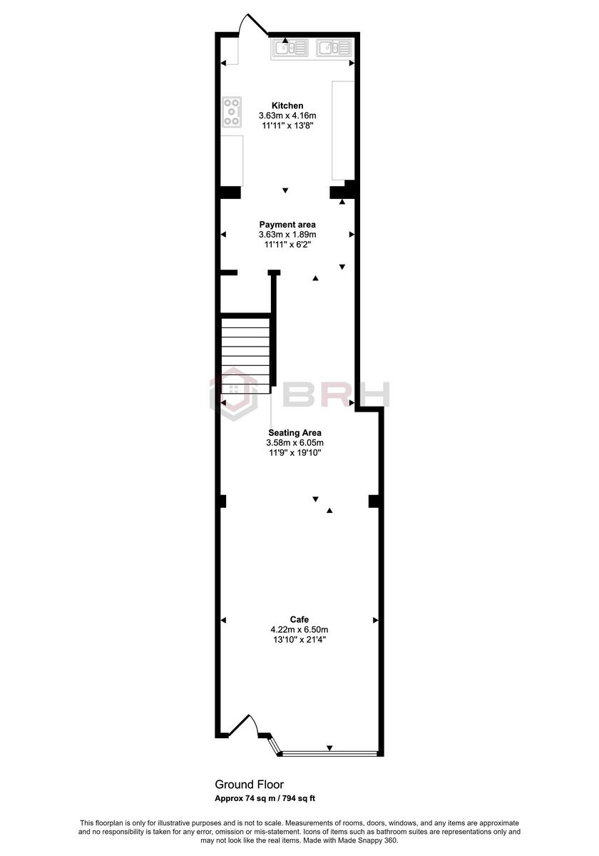
- 3 ground floor commercial units
- Current rental income of £1,440 per month, with potential for increase
- Freehold property with a large rear car park
- Prime location in the heart of Thorne, near major road networks (M18)
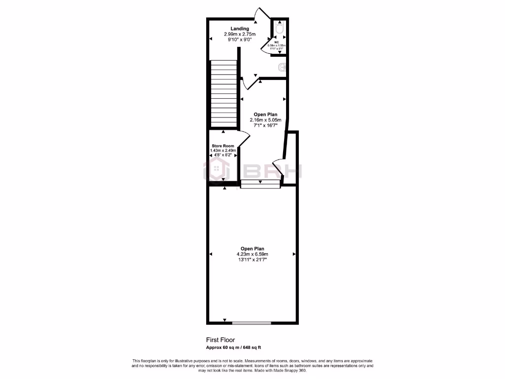
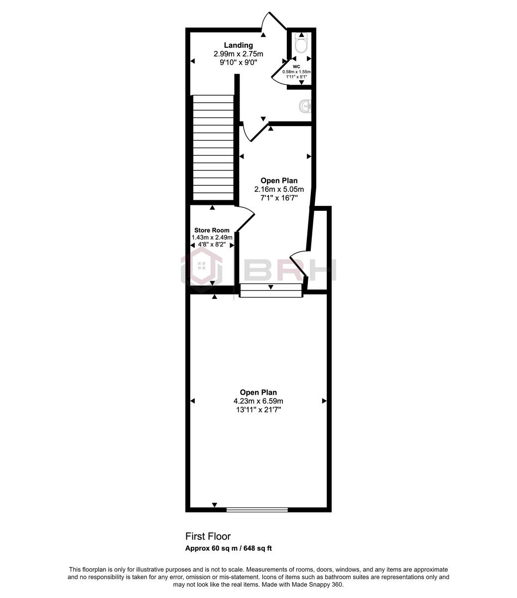
- Total area of approximately 320 square meters (3,434 sq ft)
- Close proximity to Doncaster, Rotherham, and Sheffield
**Potential Concerns:**
- High crime rate in the local area
- Maintenance required for the exterior and roof of the building
- A degree of deprivation in the surrounding community
This expansive mixed-use property on King Street, Thorne, is a fantastic investment opportunity that presents both commercial and residential potential. Currently consisting of three commercial units and with granted planning permission for two additional apartments, this property can generate significant rental income. The strategic location offers excellent access to major transport routes, making it appealing for businesses and future tenants.
With a total area exceeding 3,400 square feet, investors will find ample room for development and value-added improvements. A large car park at the rear enhances the appeal and usability of the site. The area boasts numerous walkable amenities, ensuring convenience for both future residential occupants and local businesses.
However, potential buyers should be aware of the high crime rate and the need for exterior maintenance. Presented at an attractive price of £239,995, this opportunity not only allows for quick profitability but also enables buyers to capitalize on a growing community. Don’t let this unique property slip away—seize the chance for expansion and investment in a promising area of Thorne.
High street retail property for sale in King Street, Doncaster, DN8 — £239,995 • 1 bed • 1 bath • 3434 ft²
Mixed use property for sale in King Street , Thorne, Doncaster, DN8 — £120,000 • 1 bed • 1 bath • 560 ft²
High street retail property for sale in King Street, Thorne, Doncaster, DN8 — £150,000 • 1 bed • 1 bath • 3305 ft²
1 bedroom apartment for sale in South Parade, Thorne, Doncaster, DN8 — £140,000 • 1 bed • 1 bath • 810 ft²
14 bedroom block of apartments for sale in Cleveland Street, Doncaster, DN1 — £1,599,995 • 14 bed • 11 bath • 2314 ft²
Land for sale in Thorne Road, Doncaster, DN2 — £350,000 • 1 bed • 1 bath • 1431 ft²






















































































