**Standout Features:**
- Three ground floor commercial units with ongoing rental income of £1,440 per month
- Full planning permission for two 1-bedroom apartments above the retail spaces
- Prime location in Thorne with easy access to M18 and proximity to Doncaster, Rotherham, and Sheffield
- Includes a large car park at the rear, enhancing property value
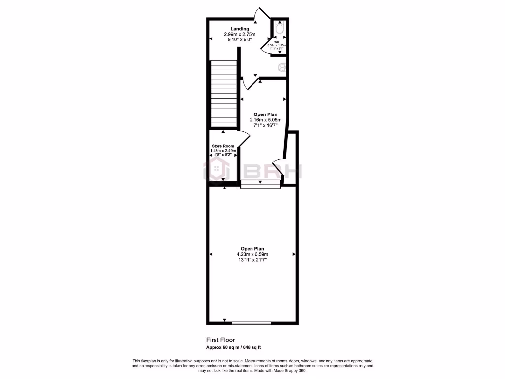
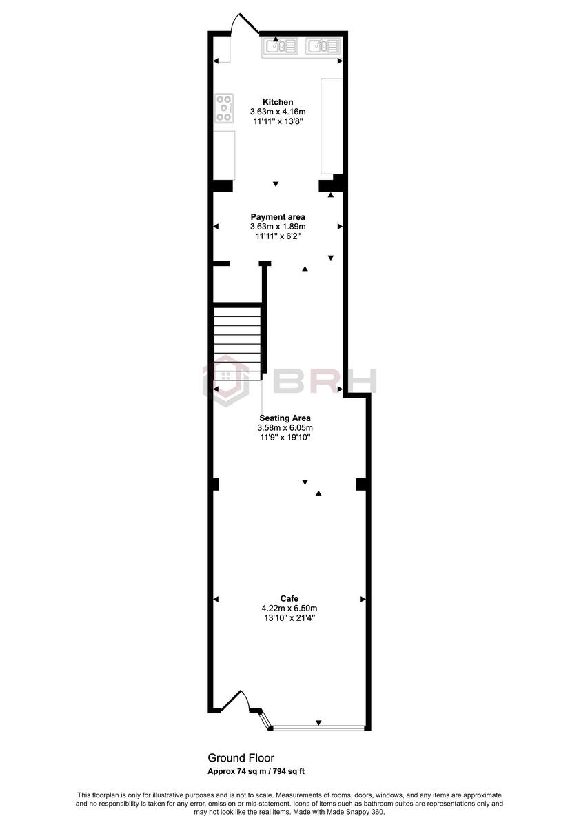
- Total area of approximately 320 square meters offers substantial development potential
- Freehold tenure
This expansive commercial property on King Street presents a remarkable investment opportunity in the thriving heart of Thorne, Doncaster. With three ground floor units currently generating rental income and full planning permission to develop two additional residential apartments, this offering is perfect for investors looking to maximize returns. The premises benefit from a prime location with excellent transport links and close proximity to bustling cities, providing ample foot traffic and business potential.
The total area of around 320 square meters allows for versatile development options, whether it’s enhancing the existing units or expanding into the residential market. While the area is designated as having high crime rates and some socio-economic challenges, the overall potential for uplift through strategic renovations offers a unique chance for savvy investors. Don't miss this exclusive opportunity to secure a property with significant upside potential and current cash flow. Act quickly, as opportunities in this growing area may not last long!
2 bedroom block of apartments for sale in King Street, Thorne, DN8 — £239,995 • 2 bed • 4 bath • 3434 ft²
High street retail property for sale in King Street, Thorne, Doncaster, DN8 — £150,000 • 1 bed • 1 bath • 3305 ft²
Mixed use property for sale in King Street , Thorne, Doncaster, DN8 — £120,000 • 1 bed • 1 bath • 560 ft²
Commercial property for sale in Hall Gate, Doncaster, DN1 — £380,000 • 1 bed • 1 bath • 1668 ft²
Land for sale in Thorne Road, Doncaster, DN2 — £350,000 • 1 bed • 1 bath • 1431 ft²
High street retail property for sale in 24/24b High Street, Doncaster, South Yorkshire, DN1 — £295,000 • 1 bed • 1 bath • 5082 ft²






























































































