Low-maintenance living with garage, driveway and enclosed rear garden.
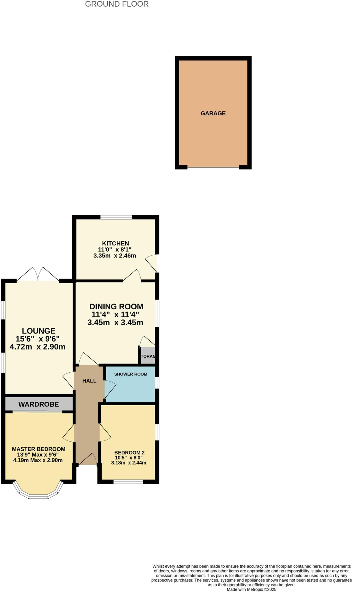
Detached single-storey bungalow with two double bedrooms
This detached, single-storey home on Cleethorpes Road offers convenient, low-maintenance living in Sholing. Two double bedrooms, a separate dining room and a bright lounge with French doors make the most of 578 sq ft of accommodation. The plot includes a block-paved driveway, detached garage and an enclosed rear garden split between patio and lawn — practical outdoor space for gardening or relaxing.
Finished to a good standard with double glazing, fitted kitchen appliances and modern shower room, the bungalow suits downsizers or anyone wanting ground-floor living near local shops and transport links. Fibre broadband is available and mains gas central heating provides reliable warmth. The property is offered Freehold with Council Tax Band C and no flooding risk.
Considerations: the home is compact (circa 578 sq ft) and has one shower room only, which may limit family use. The EPC rating is D, so future buyers should budget for energy improvements. Some nearby schools have mixed Ofsted results, and the house dates from the 1930–49 era, so buyers should expect elements typical of an older property and check for any maintenance or updating needs.
Guide price £350,000–£375,000. Overall this bungalow presents straightforward, single-storey living with garden, parking and garage — a practical move for those wanting a low-maintenance home in an established Southampton suburb.
2 bedroom bungalow for sale in Emerald Close, Southampton, Hampshire, SO19 — £325,000 • 2 bed • 1 bath • 700 ft²
2 bedroom bungalow for sale in Alfriston Gardens, Southampton, SO19 — £290,000 • 2 bed • 1 bath • 592 ft²
2 bedroom bungalow for sale in Alfriston Gardens, Southampton, Hampshire, SO19 — £280,000 • 2 bed • 1 bath • 750 ft²
3 bedroom detached bungalow for sale in Upper Deacon Road, Bitterne, SO19 — £400,000 • 3 bed • 2 bath • 713 ft²
2 bedroom bungalow for sale in Bath Road, Southampton, Hampshire, SO19 — £350,000 • 2 bed • 1 bath • 763 ft²
2 bedroom detached bungalow for sale in Sholing! Popular Location! Beautifully Maintained Throughout!, SO19 — £290,000 • 2 bed • 1 bath • 593 ft²










































































