**Standout Features:**
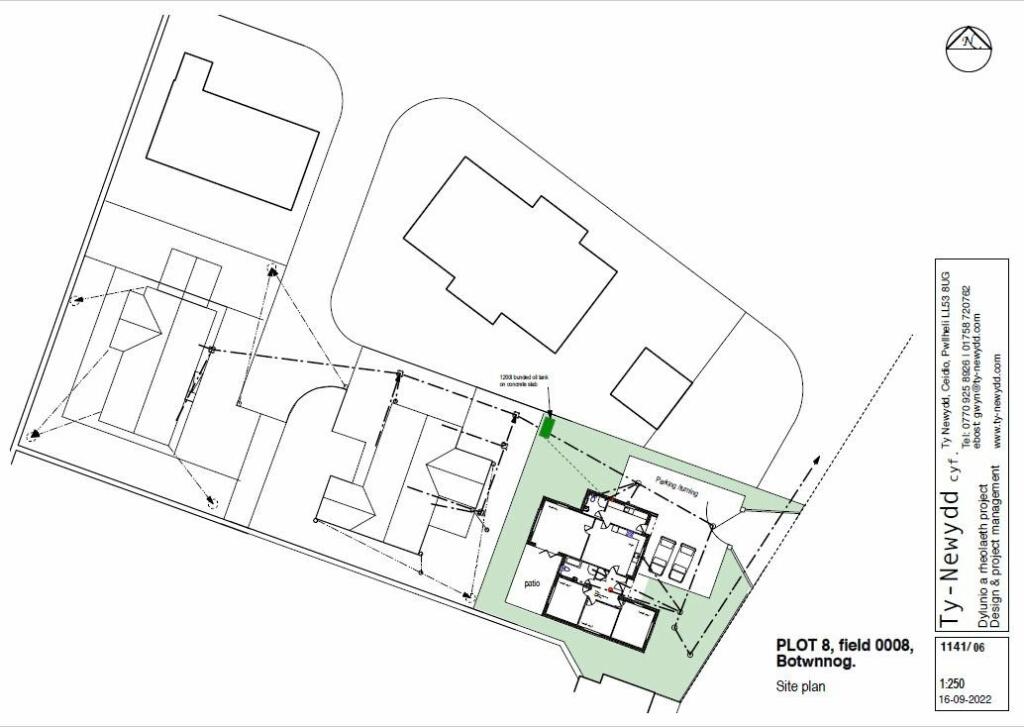
- Building plot with planning permission for a 3-bedroom bungalow (C22/0635/32/AC)
- Large size (1,275 sq ft) with off-street parking
- Modern bungalow design potential in a peaceful village setting
- Excellent mobile signal and average broadband speeds
- Low crime rate, offering a secure environment
- Close proximity to schools, amenities, and coastline
**Potential Downsides:**
- Located in a more remote area with lower access to urban facilities
- The local area is classified as Very Deprived
**Summary:**
Discover the ideal canvas for your dream home with this spacious building plot in the serene village of Botwnnog, Pwllheli. Boasting approved planning permission for a stylish 3-bedroom bungalow, this attractive freehold parcel promises a modern living experience set against a backdrop of stunning rural life. With off-street parking and a secure neighborhood, you'll find this spot perfect for families or those seeking a tranquil retreat.
Enjoy the convenience of local amenities, including schools, a health center, and recreational spaces, all within a short distance. The renowned beaches of Abersoch and the vibrant town of Pwllheli are just a short drive away, offering leisure and entertainment opportunities.
Seize this unique opportunity to build a contemporary home tailored to your preferences in a charming Welsh village. With its potential for value appreciation in this desirable location, don’t miss out—this plot is a fantastic investment for anyone looking to embrace the Welsh lifestyle.
Plot for sale in Plot @ Penlleniau, Pwllheli LL53 — £65,000 • 3 bed • 1 bath • 835 ft²
Commercial property for sale in Plot @ Penlleniau, Pwllheli LL53 — £65,000 • 3 bed • 1 bath
Land for sale in Llanbedrog, Gwynedd, LL53 — £90,000 • 1 bed • 1 bath • 3531 ft²
4 bedroom detached house for sale in Bwlchtocyn, Abersoch, Gwynedd, LL53 — £625,000 • 4 bed • 2 bath • 2269 ft²
2 bedroom bungalow for sale in Queensway, Manor Avenue, Pwllheli, LL53 — £185,000 • 2 bed • 2 bath • 797 ft²
3 bedroom detached bungalow for sale in Cysgod Y Bryn, Llanbedrog, Pwllheli, LL53 — £360,000 • 3 bed • 1 bath • 1248 ft²










