Move-in ready one-bedroom home close to trams, shops and Queen's Gardens.
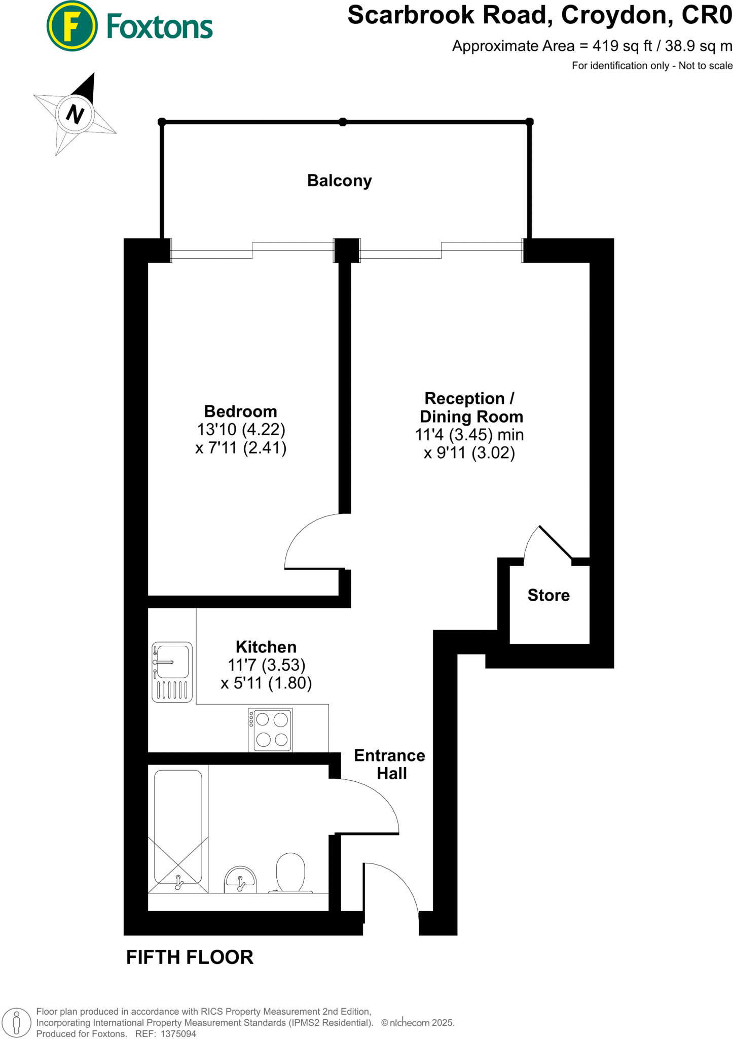
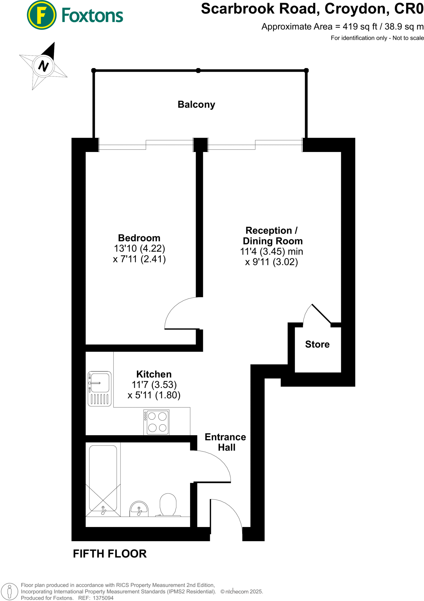
- Newly refurbished one-bedroom fifth-floor apartment with private balcony
- Spacious reception room with dining area and semi open-plan kitchen
- Secure fob-entry building; good broadband and excellent mobile signal
- Leasehold with very long lease (approx. 988 years)
- Small overall size (approx. 419 sq ft) — compact living footprint
- Electric room heaters only; no gas central heating present
- Will be sold at auction (prior purchase available)
- Above-average service charge (£4,100) and ground rent (£300)
A bright, newly refurbished one-bedroom apartment on the fifth floor, ideal for a first-time buyer seeking a compact urban home or a buy-to-let purchase. The flat benefits from a private balcony with pleasant views, an integrated semi open-plan kitchen and a generous reception room with dining space. Communal security is provided via a fob-entry system and the building sits moments from Queen's Gardens and nearby tram stops, with excellent mobile signal and fast broadband.
Practical details are straightforward: the property is leasehold (approx. 988 years remaining) and will be sold at auction (prior purchase available). The overall footprint is small (approx. 419 sq ft), heated by electric room heaters — important if you prefer gas central heating. Service charges and ground rent are notable: an above-average service charge of £4,100 and ground rent of £300 per year will affect running costs.
The surrounding area is an inner-city, cosmopolitan part of Croydon with wide local amenities, strong transport links, and several well-regarded schools nearby. Buyers should be aware the neighbourhood records higher crime levels and is classified as deprived in some measures. The apartment’s recent renovation and long lease make it move-in ready, but the electric heating and higher service charge are material factors for budgeting.
1 bedroom flat for sale in Canius House, Scarbrook Road, Croydon, CR0 — £180,000 • 1 bed • 1 bath • 419 ft²
1 bedroom flat for sale in Green Dragon House, High Street, Croydon, CR0 — £135,000 • 1 bed • 1 bath • 328 ft²
1 bedroom flat for sale in High Street, Croydon, CR0 — £135,000 • 1 bed • 1 bath • 328 ft²
2 bedroom flat for sale in Fairfield Road, Croydon, CR0 — £200,000 • 2 bed • 2 bath • 800 ft²
2 bedroom flat for sale in South End, Croydon, CR0 — £220,000 • 2 bed • 1 bath • 511 ft²
1 bedroom flat for sale in Waterworks Yard, Croydon, CR0 — £190,000 • 1 bed • 1 bath • 511 ft²










































































































































