CH61 8TA - 4 bedroom semidetached house for sale in Kenilworth Drive,…

View on Property Piper

4 bedroom semi-detached house for sale in Kenilworth Drive, Pensby, Wirral, CH61

Summary - 34 KENILWORTH DRIVE WIRRAL CH61 8TA

4 bed 1 bath Semi-Detached

**Standout Features:**
- Extended semi-detached house with four bedrooms
- Modern open-plan kitchen diner, perfect for family gatherings
- Spacious rear garden with open views
- Driveway and garage for off-street parking
- Recently renovated and in immaculate condition
- Chain-free and freehold property
- Located in a family-friendly area with excellent schools

**Summary:**
Nestled in the desirable Pensby area, this immaculately renovated semi-detached home offers an ideal environment for families and young professionals. With four generous bedrooms—including three double rooms—this property features a striking open-plan kitchen, dining, and sitting area that invites warmth and connection. French doors lead to a well-kept rear garden that boasts open views, perfect for outdoor entertaining or leisurely afternoons.

Families will appreciate the proximity to top-rated local schools, such as Thurstaston Dawpool CofE Primary and Upton Hall School, along with low crime rates, ensuring a safe community feel. The extended layout provides ample off-road parking and valuable garage space, catering to those needing storage or a workshop.

Don't miss this rare opportunity to own a turnkey family home in a prime location on the Wirral—experience modern living in a peaceful, accessible suburb! This property won’t last long; schedule your viewing today!

Property Details

Brochure Descriptions

Image Descriptions

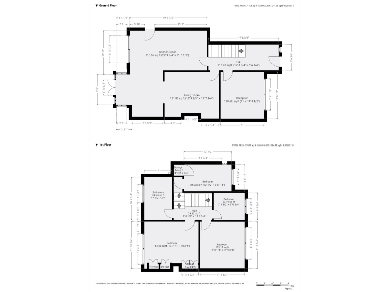
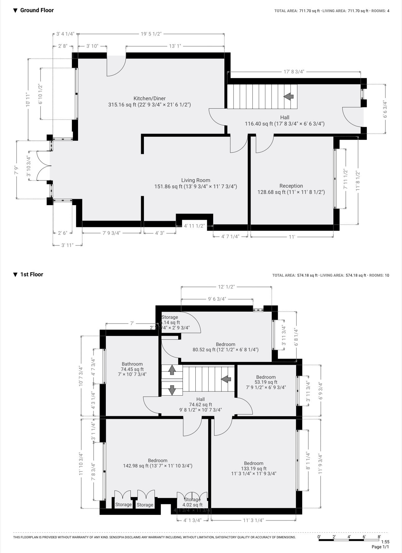
Floorplan Description

Rooms

Textual Property Features

Detected Visual Features

EPC Details

Nearby Schools

Nearest Bars And Restaurants

,,,,}

Nearest General Shops

,,}

Nearest Grocery shops

,,}

Nearest Supermarkets

,,}

Nearest Religious buildings

,,}

Nearest Medical buildings

,,,}

Nearest Airports

}

Nearest Leisure Facilities

,,,,}

Nearest Tourist attractions

,,}

Nearest Train stations

,,,,}

Nearest Bus stations and stops

,,,,}

Nearest Hotels

,,}

Tags

Local Market Stats

Similar Properties

Meta

High Res Images

Compatible Images

Low res Images

Thumbnails

Raw Images

High Res Floorplan Images

Compatible Floorplan Images

Low res Floorplan Images

FloorplanImages Thumbnail

Raw Floorplan Images