Chain free opportunity to modernise a well-located family home with garage and garden.
Three bedrooms with family bathroom
Sold with no ongoing chain
Driveway plus single garage and store
Private rear garden with patio and lawn
Needs renovation and modernisation throughout
Potential to extend subject to planning
Freehold; Council Tax Band C
Built c.1967–75; double glazing unknown install date
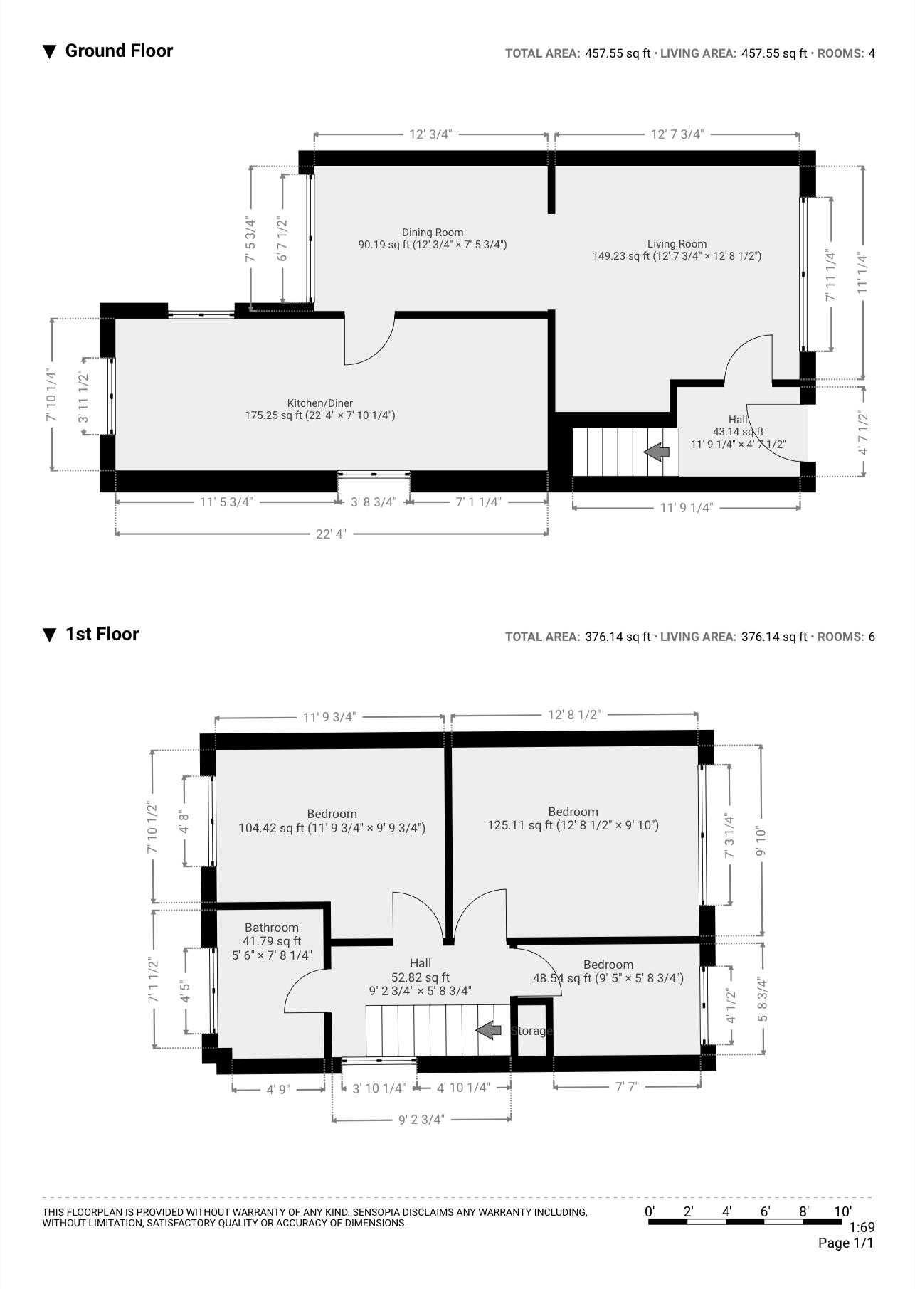
Set on a decent plot in a quiet Pensby cul-de-sac, this three-bedroom semi-detached home is sold with no ongoing chain. The house offers a traditional layout with lounge, separate dining area and a kitchen, plus two double bedrooms, a single bedroom and a family bathroom — practical for growing families or first-time buyers.
The property includes useful off-street parking with a driveway and single garage (with separate store room), and a private rear garden with patio and lawn. Built in the late 1960s/early 1970s, the house already benefits from double glazing and mains gas central heating, and fast broadband is available locally.
Although generally sound, the house needs renovation and modernisation to bring rooms and finishes up to contemporary standards. The glazing install date is unknown and the property has a single bathroom, so buyers should factor refurbishment costs and potential to extend when budgeting.
Located close to Pensby shops, bus links and a selection of good and outstanding schools, this freehold property in an affluent area represents a straightforward project for a family or investor seeking value and scope to add modern living space.
3 bedroom semi-detached house for sale in Exmoor Close, Pensby, Wirral, CH61 — £250,000 • 3 bed • 1 bath • 915 ft²
3 bedroom semi-detached house for sale in Ridgemere Road, Pensby, Wirral, CH61 — £230,000 • 3 bed • 1 bath • 867 ft²
3 bedroom semi-detached house for sale in Devonshire Road, Pensby, Wirral, CH61 — £190,000 • 3 bed • 1 bath • 891 ft²
3 bedroom semi-detached house for sale in Pensby Road, Pensby, Wirral, CH61 — £295,000 • 3 bed • 1 bath • 882 ft²
2 bedroom semi-detached house for sale in Somerset Road, Pensby, Wirral, CH61 — £200,000 • 2 bed • 1 bath • 891 ft²
3 bedroom semi-detached house for sale in Sandridge Road, Pensby, Wirral, CH61 — £315,000 • 3 bed • 1 bath • 1131 ft²










































































































