Compact, renovated two-bed close to shops and station for easy town living.
Recently renovated two-bedroom mid-terrace, approx. 722 sq ft
Chain-free freehold, ideal for first-time buyers or investors
Less than five minutes' walk to town centre and railway station
Modern fitted kitchen with integrated appliances included
Double glazing and mains gas central heating installed
No private garden; parking on-street (permit required)
Higher local crime levels noted — take local advice
Original sandstone walls likely have no cavity insulation
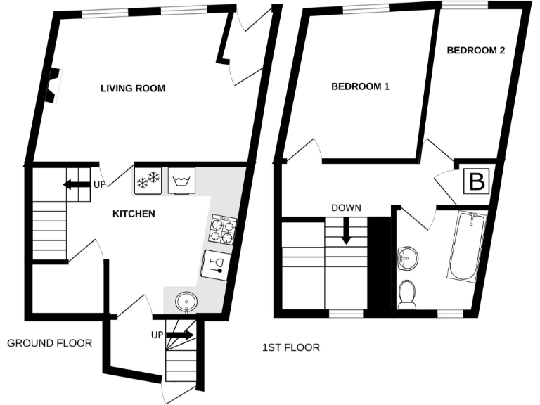
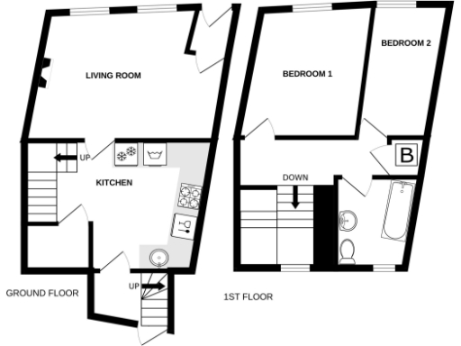
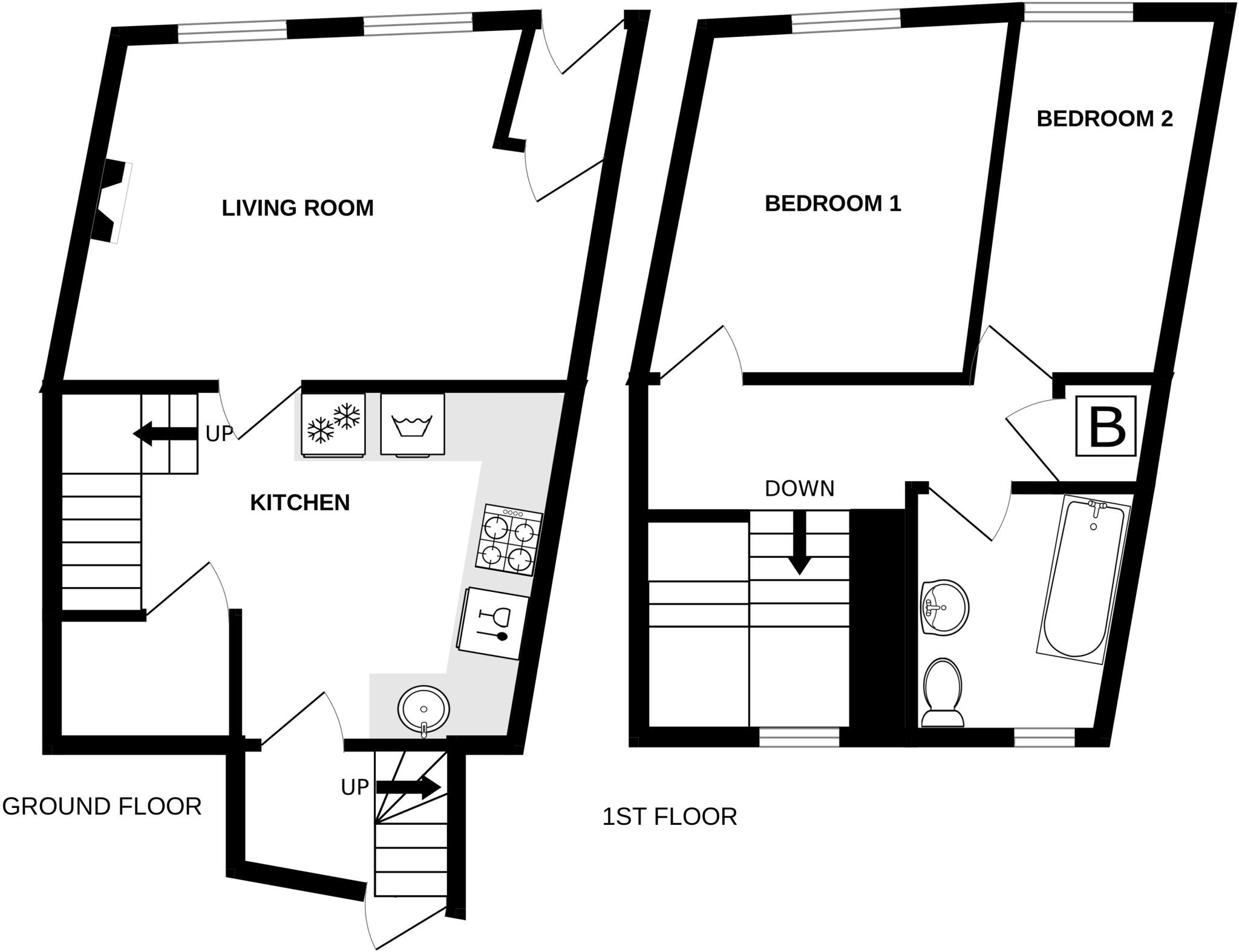
A recently renovated mid-terrace Georgian home on Castlegate, offered chain-free and ready to move into. The property provides flexible, well-proportioned accommodation across two floors with two bedrooms and a first-floor bathroom — ideal for a first-time buyer or buy-to-let investor seeking low-maintenance central living.
The ground floor includes a vestibule, living room with fireplace and a modern fitted kitchen with integrated appliances. Stairs lead from a rear hallway with plumbing for a washing machine to two bedrooms and a bathroom on the first floor. At about 722 sq ft, the layout is compact but practical for everyday use and city-edge living.
Practical positives include freehold tenure, mains gas central heating with a boiler and radiators, double glazing fitted after 2002, excellent mobile signal and fast broadband. Equally important, there is no ongoing chain and the property sits within easy walking distance of town centre shops and the railway station.
Notable drawbacks are that vehicle parking is on-street (permit required) and there is no private garden. The area records higher crime levels than average and the external walls are original sandstone/limestone with assumed no insulation, which may mean future energy-performance or upgrade work. Services and appliances are connected but have not been independently tested.
3 bedroom end of terrace house for sale in Warwick Place, Penrith, CA11 — £199,950 • 3 bed • 1 bath • 841 ft²
2 bedroom terraced house for sale in 28 Castle Terrace, Penrith, Cumbria, CA11 7DY, CA11 — £150,000 • 2 bed • 1 bath • 562 ft²
2 bedroom mews property for sale in Castlegate Mews, Castlegate, Penrith CA11 7JA, CA11 — £140,000 • 2 bed • 1 bath • 414 ft²
2 bedroom terraced house for sale in Newlands Terrace, Penrith, CA11 — £150,000 • 2 bed • 1 bath • 797 ft²
2 bedroom terraced house for sale in Watson Terrace, Penrith, CA11 — £120,000 • 2 bed • 1 bath • 560 ft²
3 bedroom terraced house for sale in 2 Mill Street, Penrith, Cumbria, CA11 — £175,000 • 3 bed • 1 bath • 1271 ft²


























































