Compact three-bedroom family home near Stockton Heath village with scope to add value.
Chain free with long lease (906 years)
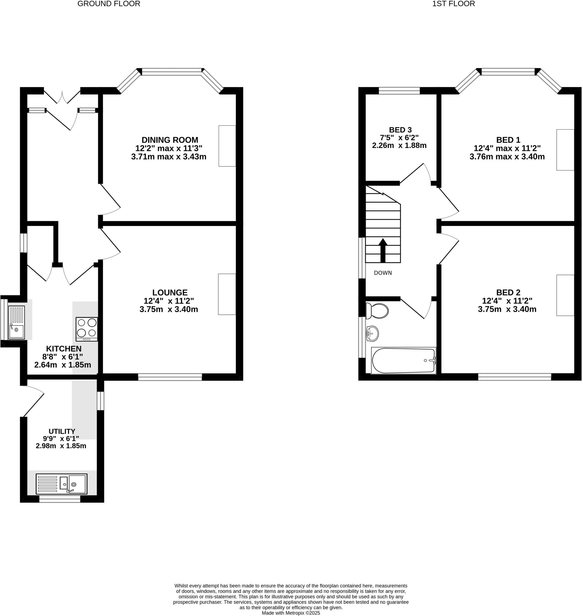
This bay-fronted, three-bedroom semi-detached house on Osborne Road offers a compact, characterful family home in a well-established Walton location. Nestled a short walk from Stockton Heath village, the property combines original period details — leaded windows, panelled doors, stripped floorboards and a front bay — with practical modern upgrades including a fitted kitchen, bathroom and gas central heating.
Set on a slightly elevated plot, the house benefits from a private, west-facing rear garden and neat front greenery. The accommodation is sensibly arranged over two storeys: porch and entrance hall, lounge with bay window, separate dining room, kitchen and utility room, with three bedrooms and a single bathroom on the first floor. Stockton Heath Primary and several highly rated local schools are nearby, and the area is convenient for commuters and local amenities.
There is clear scope to add value: some windows are already double glazed but other improvements — cosmetic updating, insulation and energy-efficiency works — would enhance comfort and running costs. The home is offered chain-free and has a long lease (906 years), which eases buying logistics and tenure security.
Notable limitations include the property’s relatively small overall footprint (approximately 706 sq ft) and a single bathroom, which may suit young families or downsizers but could feel tight for larger households. The walls are cavity built with assumed lack of insulation, so buyers should budget for potential thermal upgrades. No flooding risk is recorded.
4 bedroom semi-detached house for sale in Wardley Road, Walton, WA4 — £600,000 • 4 bed • 2 bath • 1570 ft²
3 bedroom semi-detached house for sale in Brook Avenue, Stockton Heath, Warrington, WA4 — £385,000 • 3 bed • 1 bath • 1064 ft²
3 bedroom semi-detached house for sale in Worsley Road, Higher Walton, WA4 — £425,000 • 3 bed • 1 bath
3 bedroom terraced house for sale in Ellesmere Road, Walton, Warrington, WA4 — £395,000 • 3 bed • 2 bath • 1065 ft²
3 bedroom semi-detached house for sale in Chester Road, Walton, WA4 — £340,000 • 3 bed • 2 bath • 1694 ft²
3 bedroom semi-detached house for sale in Mill House Avenue, Stockton Heath, WA4 — £450,000 • 3 bed • 1 bath • 1082 ft²


















































