TW13 6PD - 4 bedroom end of terrace house for sale in Hampton Lane, Fe…

View on Property Piper

4 bedroom end of terrace house for sale in Hampton Lane, Feltham, TW13

Summary - 2a Hampton Lane TW13 6PD

4 bed 1 bath End of Terrace

Large-plot four-bed end-terrace with garage and scope to extend (STPP)..
End-terrace with four double bedrooms and two reception rooms
Large plot with rear garden and side space—extension potential (STPP)
Driveway plus double garage provides ample off-street parking
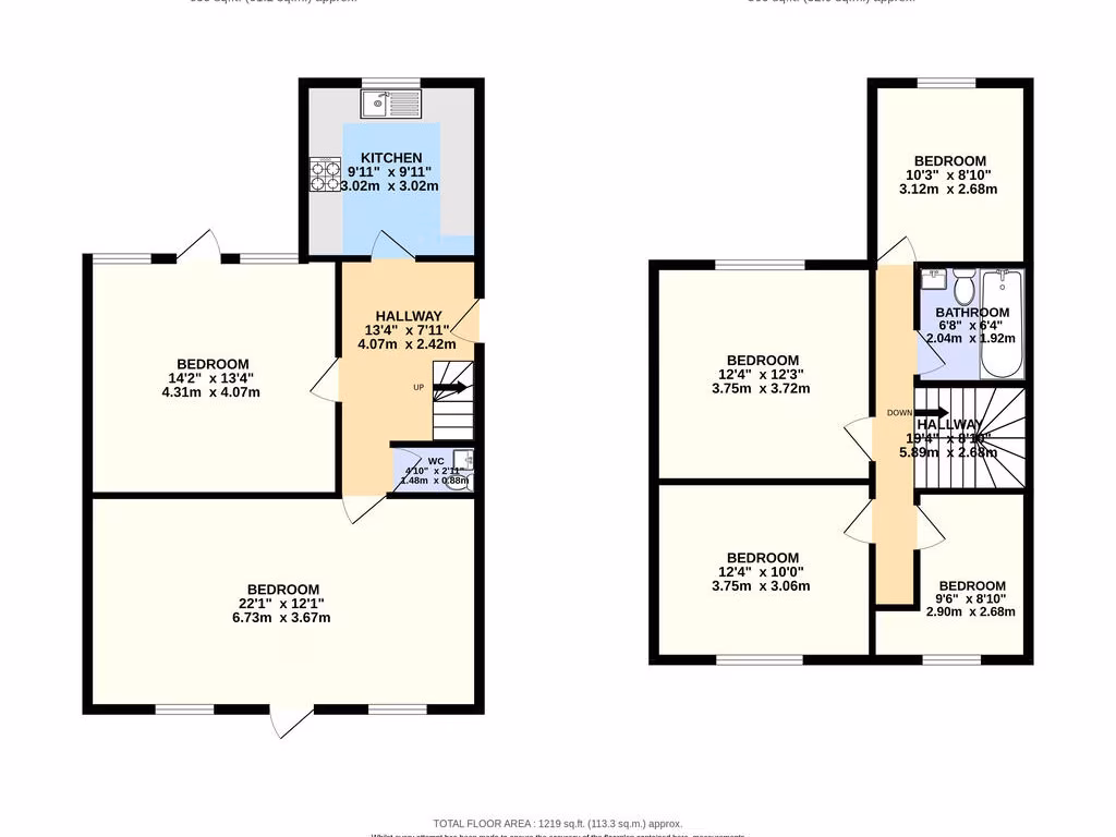
Modest internal size: ~1,108 sq ft for four bedrooms
Single family bathroom for four bedrooms—may need reconfiguration
Rear garden and outbuildings unkempt; renovation required
Freehold tenure; no local flooding risk
Good transport links and nearby well-rated schools
This four-bedroom end-terrace on Hampton Lane offers practical family living with clear scope to add value. Two reception rooms, a fitted kitchen and a downstairs WC give flexible ground-floor space, while four double bedrooms upstairs suit growing families. The property is freehold and sits on a large plot, with a private rear garden and side space that could be extended (subject to planning).

Parking is a strong asset: a front driveway plus a double garage at the rear provide rare off-street parking in this area. Transport links are good for commuters, with easy access toward Heathrow, the M3 and M25 and fast broadband and excellent mobile signal for home working. A selection of well-rated primary and secondary schools are close by.

The house shows signs of wear and the rear garden and outbuildings need attention — this is a renovation opportunity rather than a turn-key home. The single family bathroom serves four bedrooms, and internal living space totals about 1,108 sq ft, which is modest for a four-bedroom house. Buyers should allow budget for updating and to confirm planning for any extension (STPP).

Overall, the property will suit families seeking space to grow, buyers looking to add value through extension or refurbishment, or investors after a mid-market, commuter-friendly asset in TW13.

Property Details

Image Descriptions

Floorplan Description

Rooms

Textual Property Features

Target Audience

AI Tags

Detected Visual Features

EPC Details

Nearby Schools

Nearest Bars And Restaurants

,,,,}

Nearest General Shops

,,}

Nearest Grocery shops

,,}

Nearest Supermarkets

,,}

Nearest Religious buildings

,,}

Nearest Medical buildings

,,,}

Nearest Airports

,}

Nearest Leisure Facilities

,,,,}

Nearest Tourist attractions

,,}

Nearest Train stations

,,,,}

Nearest Bus stations and stops

,,,,}

Nearest Hotels

,,}

Tags

Local Market Stats

AirBnB Data

Similar Properties

Meta

High Res Images

Compatible Images

Low res Images

Thumbnails

Raw Images

High Res Floorplan Images

Compatible Floorplan Images

Low res Floorplan Images

FloorplanImages Thumbnail

Raw Floorplan Images