Chain-free two-bed terrace with gardens and strong uplift potential.
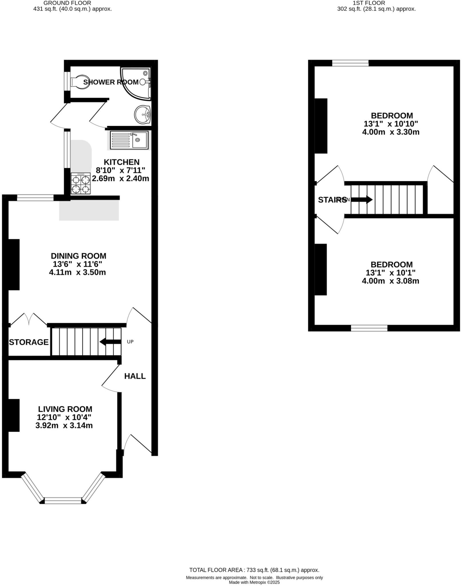
Two double bedrooms and separate lounge and dining room
Chain-free, freehold — straightforward purchase
Requires full modernisation and updating throughout
Solid brick walls; likely no insulation, improve energy efficiency
Double glazing present; install date unknown, may need replacement
Small front and rear gardens; external steps to front door
EPC C; mains gas boiler and radiators in place
Area shows higher deprivation; budget for neighbourhood considerations
This Victorian mid-terrace offers two double bedrooms and flexible downstairs living across an average-sized 733 sq ft footprint. Chain-free and freehold, it’s a straightforward purchase for a buyer willing to modernise. The house includes a separate lounge with a bay window, dining room, kitchen, and a downstairs shower room, plus small front and rear gardens.
The property is sold as a modernisation project: rooms are liveable but updating is required to bring the house up to contemporary standards. The building has solid brick walls likely without cavity insulation and the install date of the double glazing is unknown, so buyers should budget for insulation and energy-efficiency improvements. The EPC is listed as C but further works could improve comfort and running costs.
Location is practical for commuting and daily life. Plumstead Common and local shops are nearby, public transport links are within reach, and several well-rated primary schools are close. Practical positives include mains gas central heating (boiler and radiators), fast broadband, excellent mobile signal, no flooding risk and an affordable council tax banding.
This home suits a first-time buyer or investor comfortable with refurbishment, or someone looking to add value through straightforward upgrading. Important downsides are the likely need for insulation, general modernisation, and the area’s higher deprivation index — factor these into budgets and timelines.
3 bedroom terraced house for sale in Barth Road, Plumstead, SE18 — £400,000 • 3 bed • 1 bath • 804 ft²
2 bedroom terraced house for sale in Hartville Road, Plumstead, SE18 — £350,000 • 2 bed • 1 bath • 603 ft²
3 bedroom terraced house for sale in Tuam Road, London, SE18 — £475,000 • 3 bed • 1 bath • 1220 ft²
3 bedroom terraced house for sale in Wickham Lane, London, SE2 — £480,000 • 3 bed • 1 bath • 1142 ft²
3 bedroom terraced house for sale in Vernham Road, Plumstead, London, SE18 3HB, SE18 — £625,000 • 3 bed • 1 bath • 1261 ft²
2 bedroom terraced house for sale in Kings Highway, Plumstead Common, SE18 — £375,000 • 2 bed • 1 bath • 829 ft²










































