Affordable, chain-free Victorian terrace near shops, station and schools.
Chain-free freehold terrace with two double bedrooms
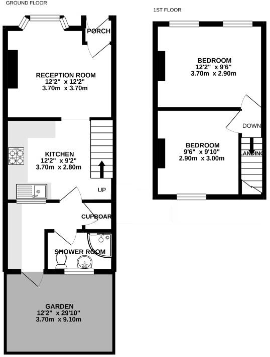
12ft reception room with double-glazed bay window
Fitted kitchen, utility area and ground-floor three-piece shower room
Mature rear garden with patio, small forecourt to front
Compact internal footprint — overall property size small-to-medium
Solid brick walls assumed with no cavity insulation (energy efficiency limited)
Area classed as deprived; local crime rate above average
Energy Performance Rating D; consider updating and insulation works
Step inside this compact Victorian mid-terrace and you’ll find a practical two-double-bedroom layout ideal for a first-time buyer or buy-to-let investor. The ground floor offers a 12ft reception room with a bay window, fitted kitchen, small utility area and a three-piece shower room. Upstairs are two double bedrooms; the overall footprint is modest but sensible for modern living.
The house is chain-free and has double glazing plus mains gas central heating, so it’s ready for immediate occupation. The mature rear garden provides private outdoor space with a paved patio and lawn — a useful extension to the small internal footprint. Local amenities, bus routes and Plumstead station are nearby, and several well-rated primary schools are within easy reach.
Be clear about the limitations: internal space is small and the property is a solid-brick terrace with no assumed cavity insulation, which contributes to an Energy Rating of D. The surrounding area scores as deprived with above-average crime, so buyers should factor local conditions into their decision. There are no obvious structural issues noted, but cosmetic updating and efficiency improvements would increase comfort and value.
Overall this is a straightforward, affordable freehold home suited to someone seeking a manageable starter property or rental asset. Its chain-free status and transport links are strong positives; consider minor modernisation and insulation upgrades to improve long-term running costs and resale potential.
2 bedroom terraced house for sale in Congo Road, London, SE18 — £415,000 • 2 bed • 1 bath • 652 ft²
2 bedroom terraced house for sale in Timbercroft Lane, Plumstead, SE18 — £425,000 • 2 bed • 1 bath • 782 ft²
2 bedroom terraced house for sale in Orissa Road, London, SE18 — £435,000 • 2 bed • 1 bath • 709 ft²
2 bedroom terraced house for sale in Kentmere Road, Plumstead, SE18 , SE18 — £350,000 • 2 bed • 1 bath • 632 ft²
2 bedroom terraced house for sale in Myrtledene Road, London, SE2 — £425,000 • 2 bed • 1 bath • 713 ft²
2 bedroom end of terrace house for sale in Tynemouth Road, Plumstead, SE18 — £375,000 • 2 bed • 1 bath • 586 ft²






















































































