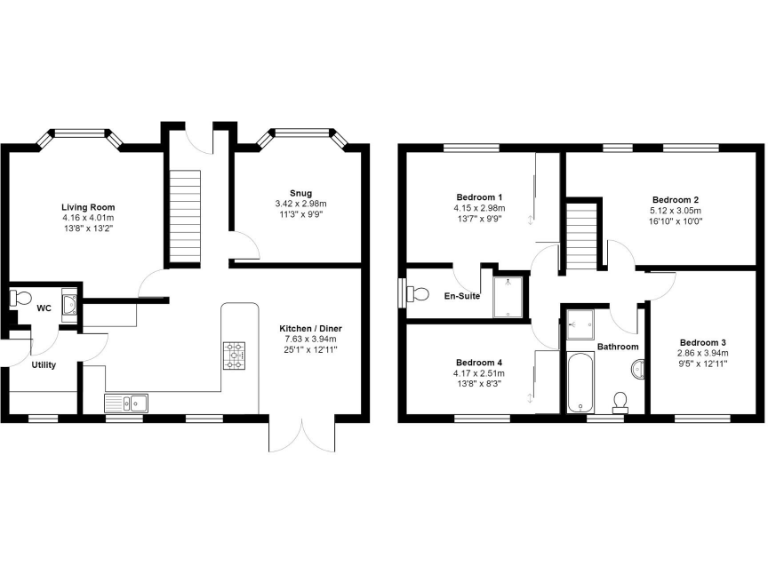
**Standout Features:**
- Spacious detached family home with four double bedrooms
- Open-plan kitchen/diner (over 25 feet) with modern appliances and French doors to the garden
- Principal bedroom with en-suite; three additional well-proportioned bedrooms
- Generous living room and cozy snug with front aspect bay windows
- Off-road parking for multiple vehicles with large gravel driveway
- Enclosed rear garden with two patios, lawn, and side access
- Located in a desirable, low-crime area of Wembdon village
This modern detached four-bedroom family home is a rare find in the charming Wembdon village, offering a delightful blend of comfort and style. The heart of the home is an expansive open-plan kitchen/diner, perfect for entertaining, featuring contemporary finishes and direct access to the rear garden through elegant French doors. Cozy family moments are easily enjoyed in the spacious living room or snug, while the well-sized principal bedroom benefits from its en-suite for added privacy. Outside, the property boasts a generous enclosed garden with multiple patios, perfect for outdoor gatherings.
Strategically positioned in a peaceful area with low crime rates, this home is ideal for families seeking a secure environment with excellent local amenities, including good-rated schools and community facilities. With room for potential renovations or extensions, this property provides a canvas for personalization, making it a versatile choice for growing families. Don’t miss your chance to secure this spacious home in a sought-after location—opportunities like this don't last long!
4 bedroom detached house for sale in Wembdon Road, Bridgwater, TA6 — £475,000 • 4 bed • 2 bath • 1107 ft²
4 bedroom detached house for sale in Wembdon Rise, Wembdon, Bridgwater, Somerset, TA6 — £650,000 • 4 bed • 3 bath • 2221 ft²
4 bedroom house for sale in Cowslip Walk - Wilstock Village, TA5 — £370,000 • 4 bed • 2 bath • 1184 ft²
4 bedroom detached house for sale in 1 Bransby Way, Wembdon, Bridgwater, TA6 — £400,000 • 4 bed • 2 bath • 1335 ft²
4 bedroom detached house for sale in Ryland Walk, Bridgwater, Somerset, TA6 — £345,000 • 4 bed • 2 bath • 964 ft²
4 bedroom detached house for sale in Regal Walk, Kings Down, Bridgwater, TA6 — £335,000 • 4 bed • 2 bath • 1206 ft²


























































































































































































