TA6 7BH - 4 bedroom detached house for sale in 1 Bransby Way, Wembdon…

View on Property Piper

4 bedroom detached house for sale in 1 Bransby Way, Wembdon, Bridgwater, TA6

Summary - 1 Bransby Way,Wembdon,BRIDGWATER,TA6 7BH TA6 7BH

4 bed 2 bath Detached

**Standout Features:**
- Recently renovated, in fantastic condition throughout
- Spacious open-plan living/dining area perfect for entertaining
- Four bedrooms, including three doubles and an office/bedroom
- South-west facing garden with patio, garage, and parking for two cars
- Popular cul-de-sac location with easy access to town centre

**Summary:**
This impeccably renovated detached family home is nestled in a sought-after cul-de-sac on the desirable Wembdon side of Bridgwater. Boasting a generous 1,335 sq ft of living space, the residence features a large open-plan living and dining area, flooded with natural light, ideal for gatherings and family moments. Enjoy outdoor leisure in the sun-soaked rear garden, complete with a patio and detached garage, providing ample parking.

Upstairs, discover three well-proportioned double bedrooms alongside a versatile fourth room perfect for an office or guest space. The convenience of two bathrooms, including an en-suite, enhances the practicality for families. With excellent local transport links and a vibrant town centre just a short stroll away, this home offers the ideal blend of comfortable living and easy access to amenities.

However, potential buyers should note the average council tax and local crime statistics. Don’t miss your chance to secure this excellent investment in a flourishing community; early viewings are highly recommended!

Property Details

Image Descriptions

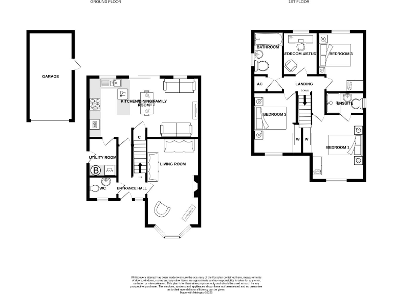
Floorplan Description

Rooms

Textual Property Features

Detected Visual Features

EPC Details

Nearby Schools

Nearest Bars And Restaurants

,,,,}

Nearest General Shops

,,}

Nearest Grocery shops

,,}

Nearest Supermarkets

,,}

Nearest Religious buildings

,,}

Nearest Medical buildings

,,,}

Nearest Leisure Facilities

,,,,}

Nearest Tourist attractions

,,}

Nearest Train stations

,,,,}

Nearest Bus stations and stops

,,,,}

Nearest Hotels

,,}

Tags

Local Market Stats

AirBnB Data

Similar Properties

Meta

High Res Images

Compatible Images

Low res Images

Thumbnails

Raw Images

High Res Floorplan Images

Compatible Floorplan Images

Low res Floorplan Images

FloorplanImages Thumbnail

Raw Floorplan Images