IP3 8EW - 3 bedroom semidetached house for sale in Bishops Hill, Ipsw…

View on Property Piper

3 bedroom semi-detached house for sale in Bishops Hill, Ipswich, IP3 8EW, IP3

Summary - Bishops Hill, Ipswich, IP3 8EW IP3 8EW

3 bed 1 bath Semi-Detached

Spacious three-bed Victorian home with garden, cellar and riverside access..
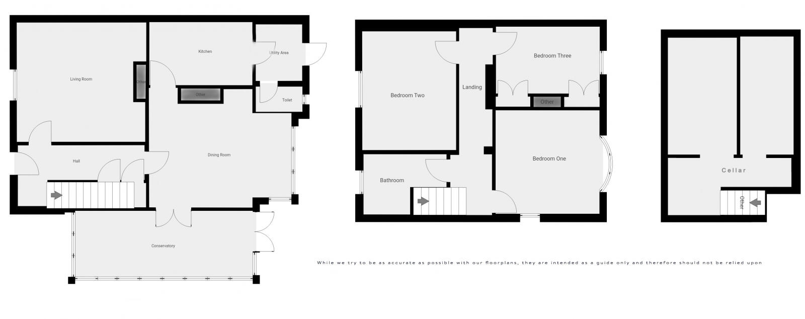
Three double bedrooms with three reception rooms and large conservatory
Large rear garden with workshop, greenhouse and vegetable beds
Substantial cellar in three sections — storage or conversion potential
Off-street parking via shared driveway; neighbour has right of way
Gas central heating and double glazing; constructed circa 1900–1929
Single family bathroom only; may be limiting for larger households
Solid brick walls with no known insulation — energy upgrade likely
Local area: above-average crime and higher deprivation metrics
This handsome Victorian semi-detached cottage offers spacious family living across multiple reception rooms and three generous bedrooms. High ceilings, original period features and a long conservatory create flexible living areas, while a large rear garden provides space for play, growing and outdoor entertaining. The property sits within easy reach of Ipswich town centre and the riverside amenities, with good schools nearby and fast broadband for home working.

Practical benefits include gas central heating, double glazing, off-street parking and a substantial cellar split into three areas — good for storage or possible conversion subject to building regulations. The kitchen and utility are well laid out with bespoke fittings and a Belfast sink, and the ground floor cloakroom is a useful convenience for family life.

Buyers should note some material considerations: there is only one family bathroom, walls are solid brick with no assumed cavity insulation, and parts of the home will suit updating rather than being fully modernised. A neighbour’s listed wall forms part of the eastern boundary and a right of way exists for the neighbour’s parking across the shared driveway, which affects access and parking arrangements.

This house will suit families seeking character and space close to town and riverside life, and buyers wanting renovation potential with scope to add value (cellar conversion, energy improvements). The local area shows above-average crime and higher deprivation indicators, which should be weighed alongside the property's many positives.

Property Details

Image Descriptions

Rooms

Textual Property Features

Target Audience

AI Tags

Detected Visual Features

EPC Details

Nearby Schools

Nearest Bars And Restaurants

,,,,}

Nearest General Shops

,,}

Nearest Grocery shops

,,}

Nearest Supermarkets

,,}

Nearest Religious buildings

,,}

Nearest Medical buildings

,,,}

Nearest Leisure Facilities

,,,,}

Nearest Tourist attractions

,,}

Nearest Train stations

,,,,}

Nearest Bus stations and stops

,,,,}

Nearest Hotels

,,}

Tags

Local Market Stats

AirBnB Data

Similar Properties

Meta

High Res Images

Compatible Images

Low res Images

Thumbnails

Raw Images

High Res Floorplan Images

Compatible Floorplan Images

Low res Floorplan Images

FloorplanImages Thumbnail

Raw Floorplan Images