### Standout Features:
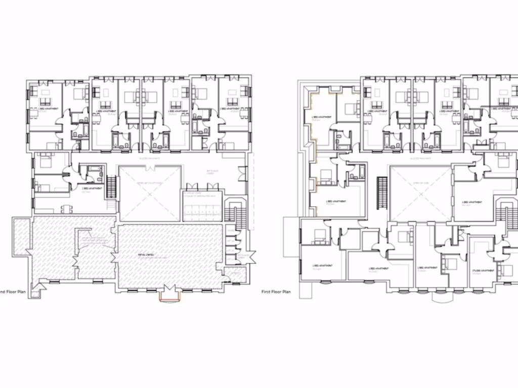
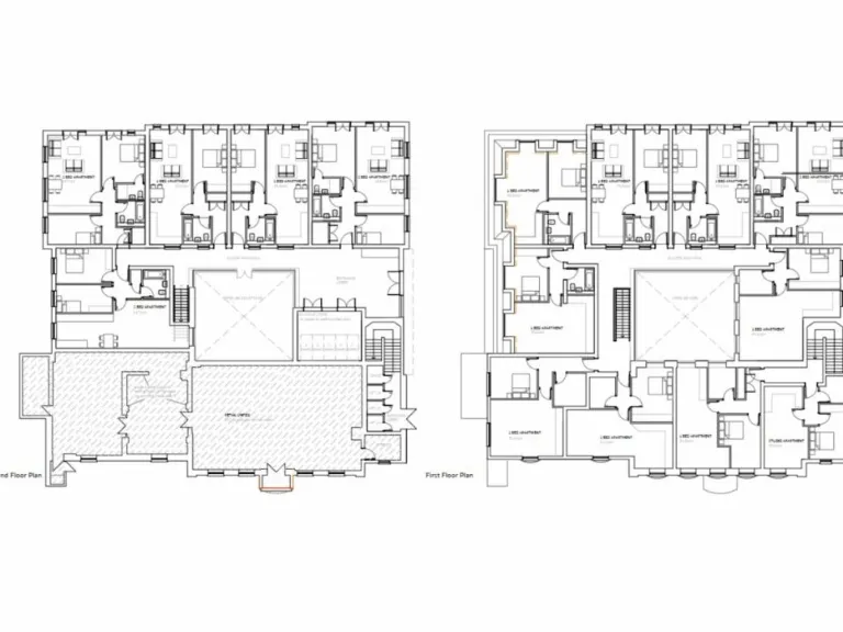
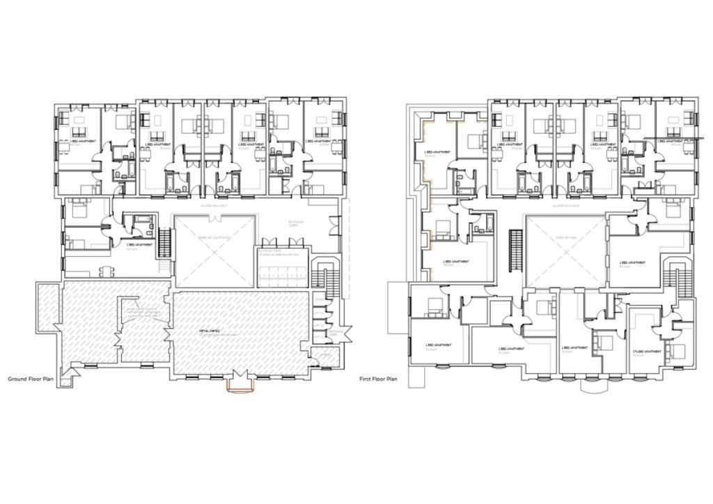
- **Prime Development Opportunity**: Planning permission for 28 residential units and flexible retail space.
- **Strong Rental Market**: Located in a popular residential area with good long-term capital appreciation potential.
- **Excellent Accessibility**: Just 2 miles from the mainline train station and close to major roads (A249, M2, M20).
- **Community Amenities**: Surrounded by essential services, including schools rated 'Good' by Ofsted and various local conveniences.
### Summary:
Discover an exceptional investment opportunity in Kemsley, Sittingbourne! This expansive plot of land, previously a public house, holds planning consent for 28 residential apartments and flexible retail space, making it ideal for developers and investors alike. The plans include a mix of 2-bedroom apartments, 1-bedroom units, and a studio, along with provisions for parking and landscaped communal areas.
Positioned in a sought-after residential neighborhood, this site enjoys low crime rates and excellent transport links, with the mainline train station just 2 miles away. Local amenities such as schools and shops are within easy reach, ensuring a family-friendly atmosphere that could appeal to prospective tenants.
While the property may require diligence regarding maintenance and development specifics, its prime location in a rising rental market promises significant future potential. Don’t miss out on this rare chance to create a substantial residential development in a thriving area—secure your bid today!
Commercial property for sale in Sittingbourne, Kent, ME10 — £900,000 • 1 bed • 1 bath • 808 ft²
Land for sale in East Street, Sittingbourne, Kent, ME10 4RT, ME10 — £400,000 • 1 bed • 1 bath • 2088 ft²
Commercial property for sale in Sittingbourne, ME10 — £400,000 • 1 bed • 1 bath
Land for sale in Land Lying to the North West of Princes Avenue, Chatham, Kent, ME5 7RG, ME5 — £1,000 • 1 bed • 1 bath
Land for sale in Site At The Junction Of Ashford Road And Square Hill, Maidstone, Kent, ME14 5BH, ME14 — £600,000 • 1 bed • 1 bath • 5227 ft²
Land for sale in High Street, Newington, Sittingbourne, Kent, ME9 7JJ, ME9 — £950,000 • 1 bed • 1 bath • 1000 ft²










































