Characterful two-bedroom home with covered parking near shops and schools.
Stone-built Victorian mid-terrace with original features
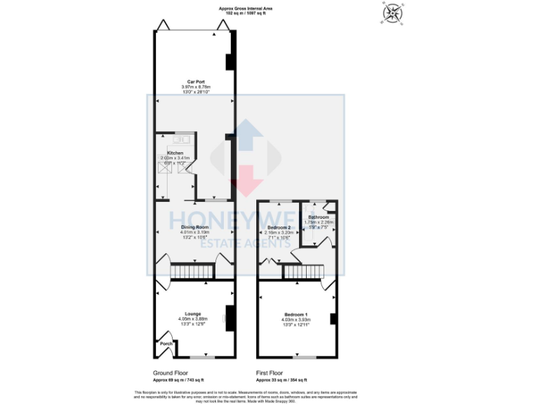
A traditional stone-built mid-terrace in central Clitheroe, this two-bedroom home offers practical living close to shops, schools and transport. The layout includes two reception rooms, a fitted kitchen and a 3-piece bathroom; roomy first-floor bedrooms provide comfortable space for a couple or small family. A large covered car port at the rear is a useful off-street parking and storage asset in a town-centre location.
The property has gas central heating and UPVC double glazing fitted after 2002, helping with comfort and running costs. Original Victorian features remain, including a fireplace and sash windows, which add character and scope for sympathetic updating. Council tax is very low, which supports affordable ongoing ownership costs.
Important considerations: the house is leasehold and constructed before 1900 with traditional stone walls likely without modern cavity insulation, so buyers should factor potential insulation and maintenance works into budgets. The area records above-average crime, which some purchasers may want to investigate further. The property is mid-terrace with no rear garden, so outdoor space is limited to the car port area.
Overall this home will suit a first-time buyer or investor seeking a central Clitheroe address with character, sensible running costs and the convenience of off-street parking. It offers straightforward renovation potential rather than a turnkey modern finish.
2 bedroom terraced house for sale in Grafton Street, Clitheroe, BB7 1NQ, BB7 — £144,950 • 2 bed • 1 bath • 814 ft²
2 bedroom terraced house for sale in Peel Street, Clitheroe, BB7 — £165,000 • 2 bed • 1 bath • 725 ft²
2 bedroom terraced house for sale in St Marys Street, Clitheroe, BB7 2HH, BB7 — £169,950 • 2 bed • 1 bath • 938 ft²
2 bedroom terraced house for sale in Brook Street, Clitheroe, BB7 — £110,000 • 2 bed • 1 bath • 915 ft²
2 bedroom terraced house for sale in West View, Clitheroe, BB7 — £185,000 • 2 bed • 3 bath • 850 ft²
2 bedroom terraced house for sale in Chatburn Road, Clitheroe, BB7 — £195,000 • 2 bed • 1 bath • 1264 ft²


























































