Single-floor living with scope to personalise in peaceful Southmoor.
Detached single-storey bungalow on corner plot with driveway parking
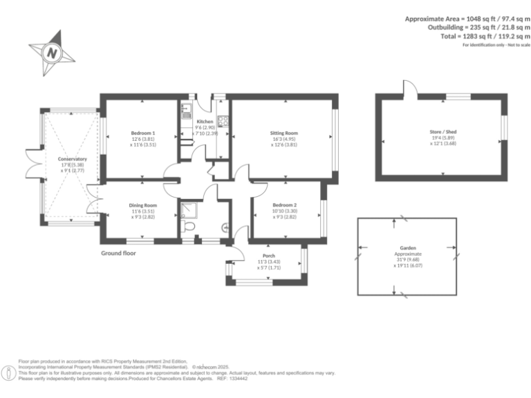
Set on a corner plot in Southmoor, this detached three-bedroom bungalow offers single-storey living with flexible accommodation and immediate availability (no onward chain). The bright lounge and sizeable conservatory bring in generous natural light; the conservatory opens onto a low-maintenance rear garden with gated side access, ideal for easy outdoor upkeep.
Internally there are two/three double bedrooms (one currently used as a dining room), a fitted shower room and a kitchen. A converted garage currently used as a utility room provides practical storage and scope to be returned to a garage or remodelled to suit changing needs. The property totals about 1,283 sq ft and sits on a decent plot with driveway parking for convenience.
Practical considerations: the home dates from the late 1960s–1970s, has warm-air gas heating, and double glazing installed prior to 2002 — buyers may want to budget for modernisation or updating of services. The layout and plot offer good potential for small improvements or adaptations to personalise the space.
Southmoor’s prosperous, low-crime setting, fast broadband and excellent mobile signal suit downsizers seeking village-edge living with local schools, bus links and nearby woodland. The bungalow’s freehold tenure and moderate council tax reduce ongoing complexity for a straightforward move.
3 bedroom bungalow for sale in Faringdon Road, Southmoor, Abingdon, OX13 — £530,000 • 3 bed • 1 bath • 1152 ft²
2 bedroom detached bungalow for sale in Sandy Lane, Southmoor, OX13 — £280,000 • 2 bed • 1 bath • 574 ft²
3 bedroom detached bungalow for sale in Oxford Road, Abingdon, OX14 — £735,000 • 3 bed • 2 bath • 1249 ft²
3 bedroom link detached house for sale in Draycott Road, Southmoor, OX13 — £425,000 • 3 bed • 1 bath • 1227 ft²
4 bedroom detached house for sale in Cherry Tree Close, Southmoor, Abingdon, OX13 — £450,000 • 4 bed • 2 bath • 1174 ft²
4 bedroom detached house for sale in Bellamy Close, Southmoor, Abingdon, Oxfordshire, OX13 — £595,000 • 4 bed • 2 bath • 2156 ft²


















































































