PE25 1GU - 2 bed modern two bedroom home in Belton Park Road, PE25 1GU

View on Property Piper

2 bedroom terraced house for sale in Lumley Fields, Skegness, PE25

Summary - 8, THE CIRCUS, BELTON PARK ROAD PE25 1GU

2 bed 2 bath Terraced

Move‑in ready, low‑maintenance living opposite a peaceful public green.
Two double bedrooms, master with Juliet balcony
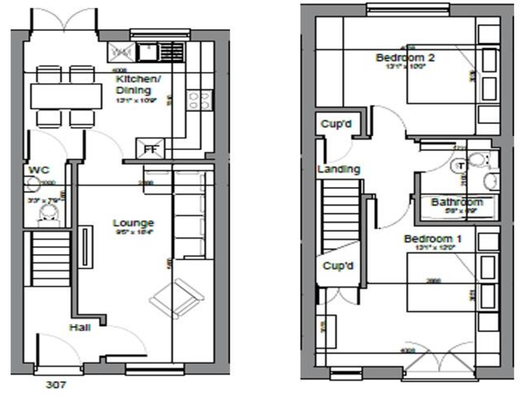
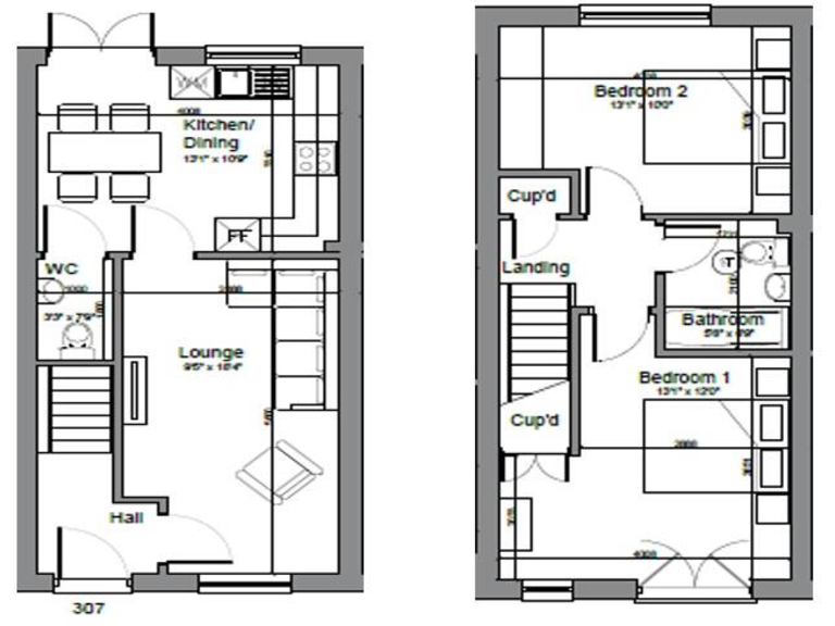
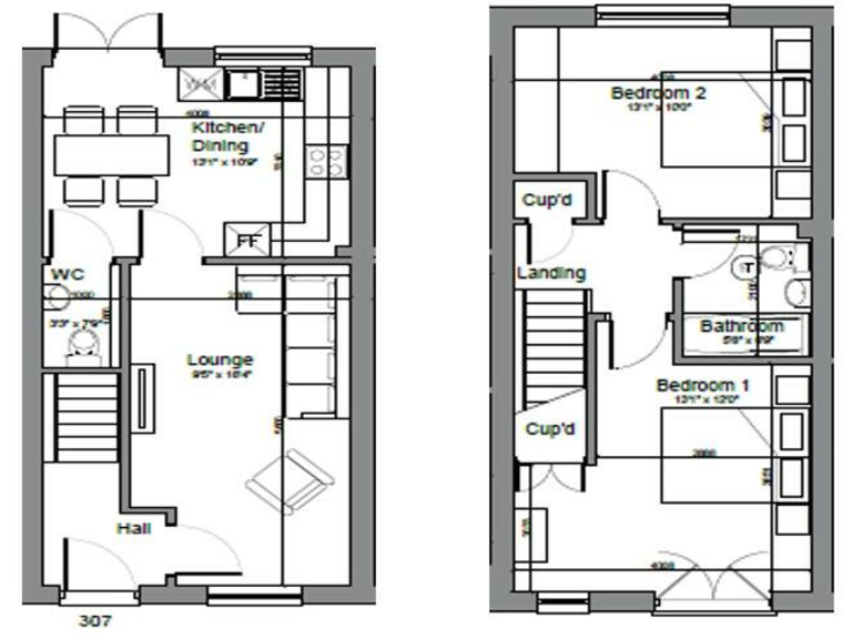
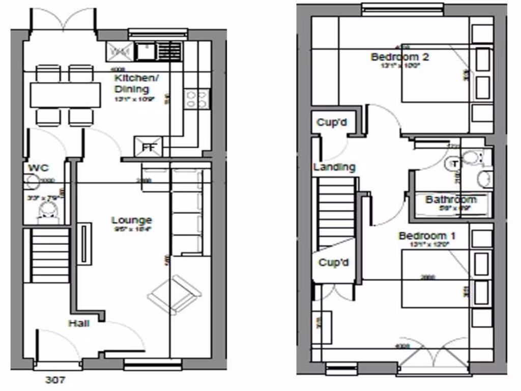
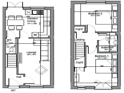
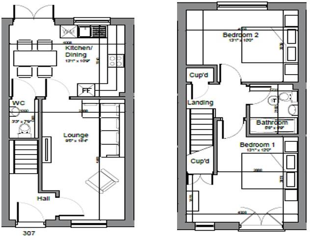
A freshly finished two-bedroom terraced house in Lumley Fields, ready for immediate move-in. The layout is practical: lounge, kitchen-diner with French doors to the private garden, downstairs WC, and two first-floor bedrooms — the master benefits from a Juliet balcony overlooking the public green opposite. Carpets and contemporary finishes are included, and the property has an EPC B rating.

This freehold home suits first-time buyers or couples seeking low-maintenance, modern living. Off-street block-paved parking for one car and an additional nearby space around the public square add convenience. UPVC double glazing and insulated cavity walls (as built) combine with electric storage heaters as the main heating source.

Practical points to note: the property is compact (about 616 sq ft) and sits in an area classified with higher deprivation metrics, though local crime risk is very low and broadband and mobile signals are strong. The electric storage heating will typically mean different running costs compared with gas heating, so budget accordingly. Overall this is a neat, contemporary starter home with a pleasant unoverlooked aspect to the front.

Property Details

Brochure Descriptions

Image Descriptions

Floorplan Description

Rooms

Textual Property Features

Target Audience

AI Tags

Detected Visual Features

EPC Details

Nearby Schools

Nearest Bars And Restaurants

,,,,}

Nearest General Shops

,,}

Nearest Grocery shops

,,}

Nearest Supermarkets

,,}

Nearest Religious buildings

,,}

Nearest Medical buildings

,,,}

Nearest Leisure Facilities

,,,,}

Nearest Tourist attractions

,,}

Nearest Train stations

,,,,}

Nearest Bus stations and stops

,,,,}

Nearest Hotels

,,}

Tags

Local Market Stats

AirBnB Data

Similar Properties

Meta

High Res Images

Compatible Images

Low res Images

Thumbnails

Raw Images

High Res Floorplan Images

Compatible Floorplan Images

Low res Floorplan Images

FloorplanImages Thumbnail

Raw Floorplan Images