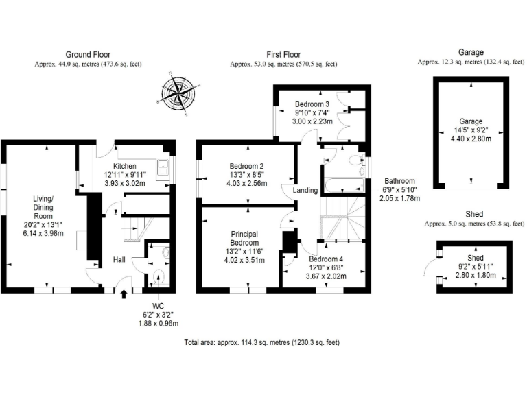
Sunny four-bedroom house with garage and gardens, ideal for family updates.
End-terrace corner plot with private front, side and rear gardens
Southeast-facing kitchen with direct garden access
Double-aspect living room with stone fireplace and large window
Four bedrooms but compact overall floor area (approx 1,023 sq ft)
Single bathroom + separate ground-floor WC only
Garage parking, detached shed and external drying area included
Dated interior finishes; likely requires cosmetic refurbishment
Located in a very deprived area; consider long-term resale/rental risk
Set on a corner plot in the Mayfield development, this four-bedroom end-terrace offers practical family living a short drive from central Edinburgh. The house benefits from a double-aspect, sun-filled living room with a stone fireplace and a southeast-facing kitchen that opens to private gardens — useful for everyday life and summer entertaining. Garage parking, a detached shed and side drying area add valuable outdoor storage and utility space.
Internally the layout is straightforward: entrance hall with ground-floor WC, living room, kitchen, and four bedrooms upstairs served by a single bathroom with an overhead shower. The main bedroom is sunny and there is built-in wardrobe space in one bedroom. The property has gas central heating and double glazing, helping with comfort and running costs.
The house is compact for a four-bedroom home (about 1,023 sq ft) and shows signs of dated mid-20th-century finishes — wood panelling in the living room and basic kitchen fittings — so cosmetic updating is likely. There is clear potential to reconfigure or modernise the interior to suit a growing family or to improve rental appeal, but buyers should budget for refurbishment.
Location is practical for commuters and families with local schools, shops, parks, leisure facilities and good bus links nearby. Note the wider area scores highly for economic disadvantage, which may influence long-term resale or rental prospects. For buyers seeking a family-friendly home with garden space and garage parking that can be improved over time, this property presents solid value at the asking price.
4 bedroom detached house for sale in 4 Burnbank, Straiton, Loanhead, EH20 9NB, EH20 — £380,000 • 4 bed • 2 bath • 1089 ft²
4 bedroom detached house for sale in 4 Ellis Street, Mortonhall, Edinburgh, EH17 8GD, EH17 — £450,000 • 4 bed • 2 bath • 1257 ft²
4 bedroom semi-detached house for sale in 219 Redford Road, Edinburgh EH13 9NH, EH13 — £425,000 • 4 bed • 2 bath • 1668 ft²
4 bedroom detached house for sale in 13 Bill Douglas Grove, Newcraighall, Edinburgh, EH21 8RS, EH21 — £380,000 • 4 bed • 2 bath • 1250 ft²
3 bedroom semi-detached house for sale in 4 Orchard Brae Gardens West, Edinburgh, EH4 2HL, EH4 — £400,000 • 3 bed • 2 bath • 1292 ft²
2 bedroom terraced house for sale in 11 Bevan Road, Mayfield, Dalkeith, EH22 5QE, EH22 — £140,000 • 2 bed • 1 bath • 552 ft²


































