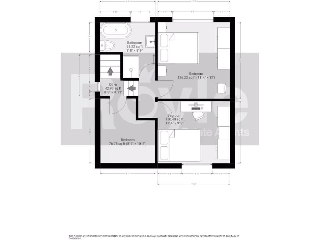
Turn-key three-bedroom family home with garden and generous parking.
Tastefully presented, turn-key ready throughout
Spacious open-plan kitchen, living and dining area with bi-fold doors
Separate lounge with feature log-burning stove
Three double bedrooms suitable for family use
One bathroom (as listed) — consider layout for busy households
Off-road parking for multiple vehicles; decent plot size
Low-maintenance private rear garden
Freehold; very low flood risk and cheap council tax
This three-bedroom semi-detached house sits in a sought-after rural village spot, close to shops, schools and coastal walks. The interior is presented turn-key, with a large open-plan kitchen, living and dining area that opens to a private, low-maintenance garden via bi-fold doors. A separate lounge features a feature log-burning stove, creating a cosy family hub.
The property is freehold and well suited to growing families seeking good local schools and countryside access, or buyers wanting a ready-to-move-in home. Off-road parking accommodates multiple vehicles and the plot is a decent size for outdoor use without excessive upkeep. Broadband is fast and mobile signal excellent, supporting remote working and modern living needs.
Practical points to note: the listing records one bathroom, so families may need to consider the single-suite layout. Crime and area deprivation are both around average for the district. Early internal viewing is recommended to confirm the exact room arrangement and fixtures.
3 bedroom semi-detached house for sale in No. 8, Fordstone Avenue, Preesall, Lancs FY6 0EB, FY6 — £189,950 • 3 bed • 1 bath • 1052 ft²
3 bedroom semi-detached house for sale in Nicksons Lane, Preesall, FY6 — £230,000 • 3 bed • 1 bath • 1387 ft²
3 bedroom detached house for sale in Little Tongues Lane, Preesall, Poulton-Le-Fylde, FY6 — £540,000 • 3 bed • 4 bath • 1417 ft²
3 bedroom semi-detached house for sale in 2, Sandy Lane, Preesall, Poulton Le Fylde, FY6 — £149,500 • 3 bed • 2 bath • 770 ft²
3 bedroom terraced house for sale in No. 11, The Crescent, Preesall, Lancs FY6 0EE, FY6 — £164,950 • 3 bed • 1 bath • 882 ft²
3 bedroom semi-detached bungalow for sale in Sandicroft Place, Preesall, Poulton-Le-Fylde, FY6 — £225,000 • 3 bed • 1 bath • 1034 ft²


















































































































