Spacious five‑floor property ideal for conversion or commercial reuse close to amenities.
Prominent Grade II listed city‑centre building with cathedral views
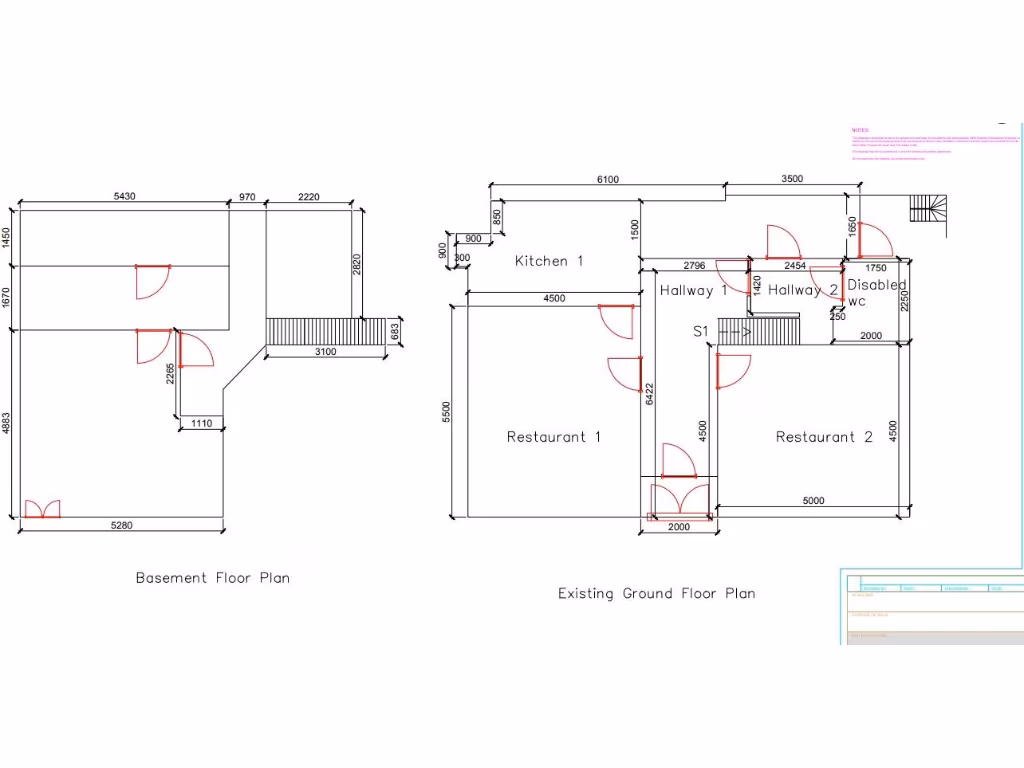
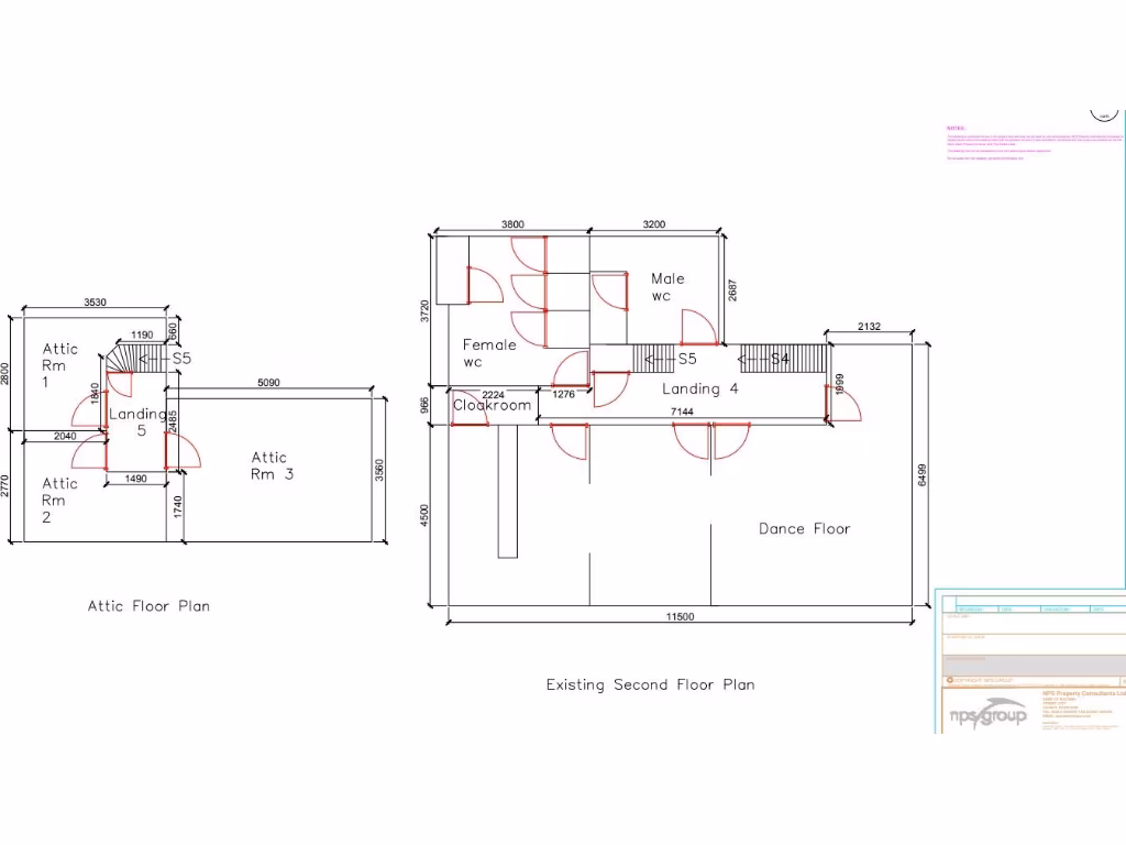
A rare city-centre investment opportunity: a vacant Grade II listed five‑floor building (Erpingham House) extending to around 3,677 sq ft with fine views of Norwich Cathedral. The building most recently traded as a restaurant (Use Class E) and sits within a conservation area close to city amenities and transport links. Its size and central location create flexible income or conversion potential, subject to consents.
For investors or developers the principal attractions are scale, prominence and mixed-use potential — upper floors may convert to residential if planning and listed‑building consents are granted. The property includes a basement, attic rooms and a small rear yard; Valuation Office rateable information is available, and recent structural and measured survey reports are included in the legal pack.
Buyers should note material constraints: listed status will complicate alterations and likely increase costs, and any change of use requires planning and listed‑building consent. The property is offered freehold by online livestream auction (10:00am, 10 December 2025) and sale is subject to an administration fee and buyer’s premium payable on exchange. The building is vacant and was first time to market since 1969 — inspection of the legal pack and surveys is essential before bidding.
This opportunity suits experienced investors or developers who can manage listed‑building controls and short‑term voids, and who value long‑term central Norwich exposure. Consider the high-crime local statistic and potential remediation or security costs when modelling returns.
Office for sale in 64-66 Westwick Street, Norwich, Norfolk NR2 4SZ, NR2 — £650,000 • 1 bed • 1 bath • 9568 ft²
Restaurant for sale in 30-32 Colegate, Norwich, Norfolk, NR3 1BG, NR3 — £180,000 • 1 bed • 1 bath • 2615 ft²
Block of apartments for sale in 14 Willow Lane, Norwich, Norfolk NR2 1EU, NR2 — £300,000 • 1 bed • 1 bath • 1371 ft²
Mixed use property for sale in 15 Chapel Field East, Norwich, NR2 — £275,000 • 1 bed • 1 bath • 3560 ft²
2 bedroom apartment for sale in 4D Stracey Road, Norwich, Norfolk NR1 1EZ, NR1 — £175,000 • 2 bed • 2 bath • 815 ft²
Commercial property for sale in St. John Ambulance, 59 King Street, Norwich, NR1 — £325,000 • 1 bed • 1 bath • 2759 ft²


































































































