Extended Edwardian house with studio, garden and excellent village location for families.
- Four bedrooms and three bathrooms, including top-floor principal en-suite
- Open-plan kitchen/diner with bi-fold doors to southwest-facing garden
- Detached timber garden studio plus adjacent storage shed
- Bay-fronted living room with feature fireplace and vaulted study
- Within Burhill Primary catchment and short walk to Walton-on-Thames station
- Double glazing (post-2002), mains gas heating, solid brick with insulation
- Limited current off-street parking; dropped kerb and former driveway could return
- Council Tax Band E (above average)
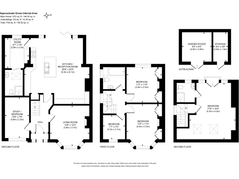
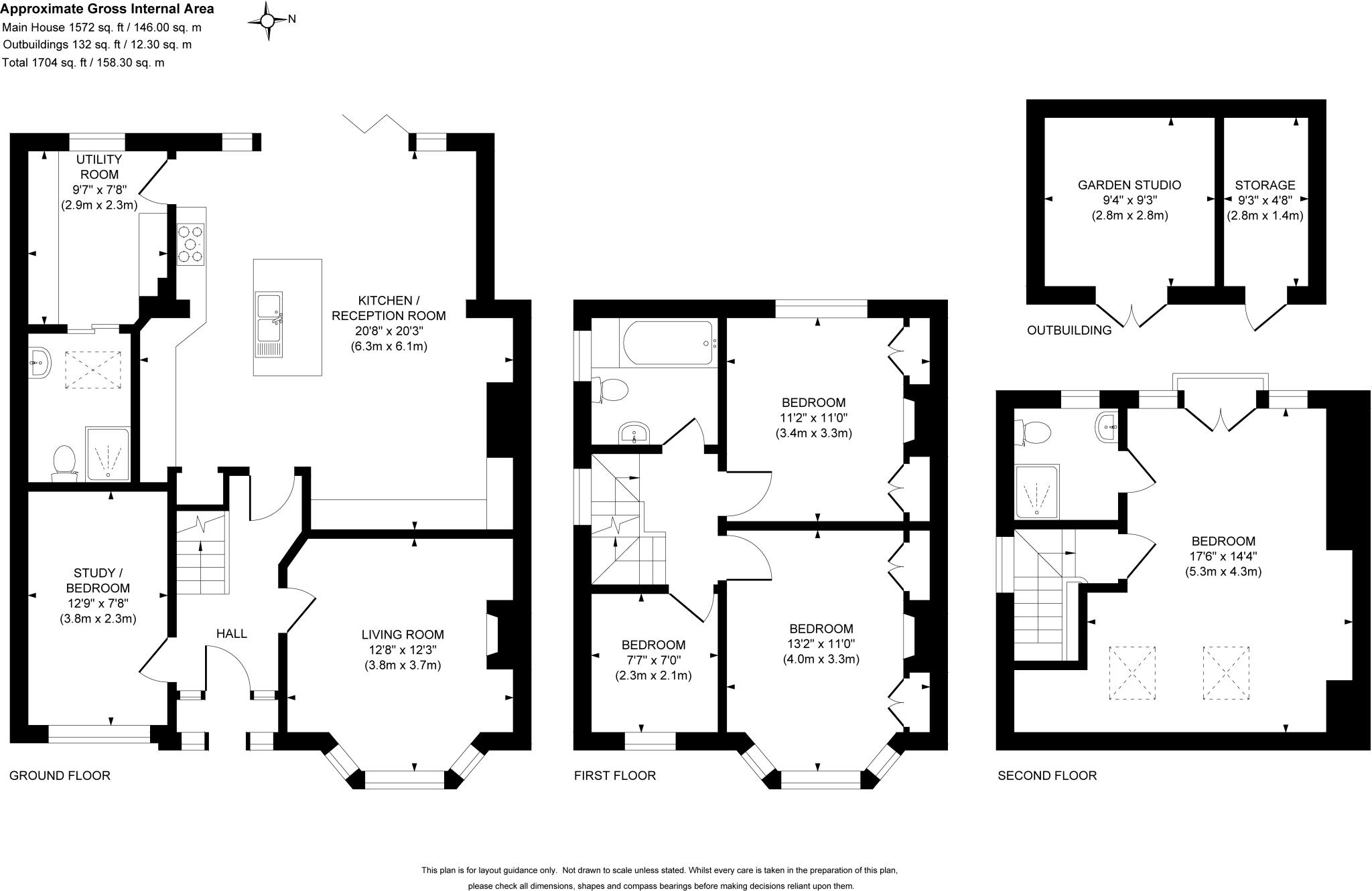
A spacious four-bedroom family home in the heart of Hersham Village, this Edwardian semi-detached property combines period character with contemporary living. The extended layout provides a large open-plan kitchen/dining/family room with bi-fold doors to a sunny southwest garden, plus a separate bay-fronted living room, vaulted study/family room and a bright top-floor principal suite with Juliette balcony.
The landscaped rear garden is a major asset: lawn, a large timber deck, patio and a quality detached studio ideal for home working, hobbies or teenage space. Practical features include a downstairs shower/cloakroom, utility room, double glazing (fitted post-2002), mains gas central heating and solid-brick walls with external insulation.
Location is convenient for everyday life — Hersham Village shops and supermarkets are close by, Burhill Primary School lies within catchment and Walton-on-Thames mainline station is a short walk. The property has been substantially extended and presents as well-maintained throughout, ready for family occupation with scope to personalise further.
Notable drawbacks: on-street or garden-edge parking is limited at present though a previously dropped kerb and former driveway at the rear could be reinstated. Council Tax is Band E, above average for the area. The overall plot and house footprint are medium-sized rather than estate-scale, so buyers seeking large gardens or extensive off-street parking should note this.
4 bedroom semi-detached house for sale in Burwood Road, Hersham, Walton-on-Thames, Surrey, KT12 — £825,000 • 4 bed • 3 bath • 1615 ft²
4 bedroom semi-detached house for sale in Burwood Road, Hersham, Walton-on-Thames, Surrey, KT12 — £899,950 • 4 bed • 2 bath • 1432 ft²
4 bedroom semi-detached house for sale in Burwood Close, Hersham, KT12 — £685,000 • 4 bed • 1 bath • 1063 ft²
2 bedroom semi-detached house for sale in Albany Road, Hersham, Walton-On-Thames, KT12 — £570,000 • 2 bed • 2 bath • 848 ft²
4 bedroom end of terrace house for sale in Trenchard Close, Hersham, Walton-on-Thames, Surrey, KT12 — £795,000 • 4 bed • 3 bath • 1374 ft²
4 bedroom detached house for sale in Rydens Road, Walton On Thames, Surrey, KT12 — £725,000 • 4 bed • 1 bath • 1387 ft²


















































































