Compact, modern two-bedroom cottage with loft potential near Woodford Central Line..
Freehold two-bedroom semi-detached cottage, approx. 607 sq ft
Open-plan kitchen/living area with modern wooden flooring
Walking distance to Woodford Central Line station
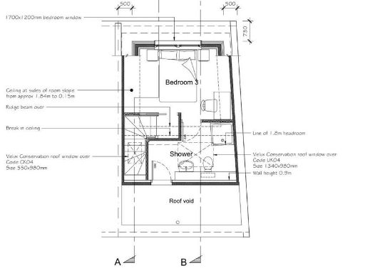
Approved loft conversion plans for extra bedroom and shower/WC
Decked rear garden; very small overall plot
Single first-floor bathroom only
Built c.1976–82; cavity walls partially insulated (assumed)
Double glazing present; installation date unknown
Set on The Square in Woodford Green, this freehold two-bedroom semi-detached cottage offers a compact, well-presented home ideal for first-time buyers or young couples. The open-plan living and kitchen area feels contemporary and bright, with large windows and modern wooden flooring creating an inviting social space.
Practical benefits include a decked rear garden for outdoor evenings, double glazing, mains gas central heating and excellent transport links — Woodford Central Line station is within walking distance, making commutes straightforward. Approved plans for a loft conversion provide clear potential to add a third bedroom and shower/WC, increasing living space and long-term value.
Be aware this is a small property (approximately 607 sq ft) on a very small plot, with a single family bathroom and modest room sizes. The home was built in the late 1970s–early 1980s and the cavity walls are partially insulated (assumed); the double glazing install date is unknown. These points limit immediate expansion at ground level and mean some buyers may want to budget for further insulation or updates.
Overall, this cottage-style home gives an affordable entry into a desirable, well-served neighbourhood with good schools, local shops, and green spaces nearby. The approved loft plans are a practical, permitted route to create more accommodation for a growing household or rental income potential.
2 bedroom cottage for sale in Ray Lodge Road, Woodford Green, Essex, IG8 — £500,000 • 2 bed • 1 bath • 643 ft²
2 bedroom terraced house for sale in West Grove, Woodford Green, IG8 — £550,000 • 2 bed • 1 bath • 729 ft²
2 bedroom semi-detached house for sale in Jacklin Green, Woodford Green, IG8 — £550,000 • 2 bed • 1 bath • 695 ft²
2 bedroom cottage for sale in Ray Lodge Road, Woodford Green, Essex, IG8 — £330,500 • 2 bed • 1 bath • 643 ft²
3 bedroom semi-detached house for sale in St. Barnabas Road, Woodford Green, IG8 — £650,000 • 3 bed • 1 bath • 1207 ft²
4 bedroom terraced house for sale in West Grove, Woodford Green, IG8 — £700,000 • 4 bed • 2 bath • 1550 ft²










































































