Chain-free home near Woodford Central Line and top-rated schools.
Two double bedrooms, approximately 643 sq ft
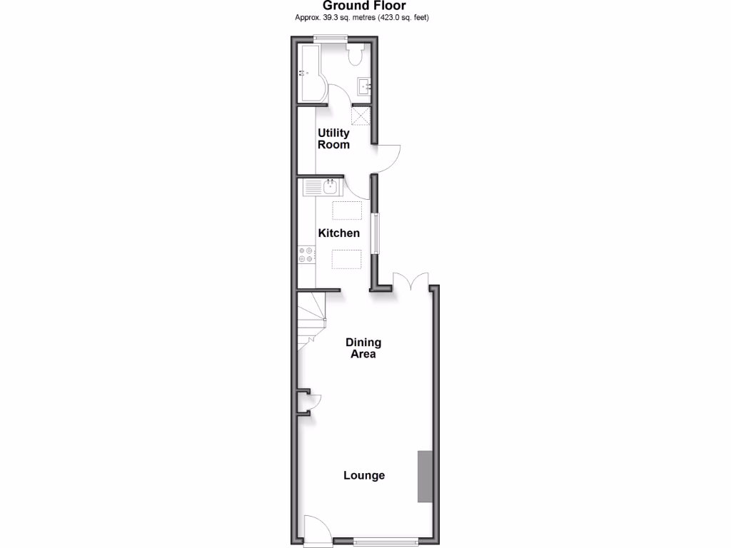
A well-located Victorian mid-terrace cottage offering two double bedrooms and 643 sq ft of living space. The house is chain free and sits within easy walking distance of Woodford Central Line, making it appealing for commuters who also want strong local schools. A newly fitted kitchen and an open-plan lounge/diner give the ground floor a bright, modern feel.
The rear garden is large for the plot and includes a powered outbuilding currently used as a home office — a practical asset for remote working or hobby use. On-street resident permit parking is available; the plot itself is small but the garden extends the usable outdoor space.
Buyers should note the property’s age and construction: solid brick walls were built before 1900 and are assumed to have no added insulation, so some thermal upgrades may be needed. The area records above-average local crime statistics, which is a factual consideration for buyers. Overall, this freehold cottage suits small families or commuters seeking a character home near excellent schools and fast transport links, but it will reward buyers willing to invest in energy and security improvements.
2 bedroom terraced house for sale in Woodford Green, Woodford Green, Essex, IG8 — £500,000 • 2 bed • 1 bath • 647 ft²
2 bedroom house for sale in Ray Lodge Road, Woodford Green, IG8 — £500,000 • 2 bed • 1 bath • 887 ft²
2 bedroom house for sale in Brunel Road, Woodford Green, IG8 — £500,000 • 2 bed • 1 bath • 716 ft²
2 bedroom town house for sale in Hawthorns, Woodford Green, IG8 — £635,000 • 2 bed • 1 bath • 1049 ft²
3 bedroom semi-detached house for sale in Danbury Way, Woodford Green, Essex, IG8 — £800,000 • 3 bed • 2 bath • 1410 ft²
3 bedroom terraced house for sale in West Grove, Woodford Green, IG8 — £700,000 • 3 bed • 1 bath • 1249 ft²






















































