Large Grade II home with approved remodelling and private walled garden in sought North Devon square.
Grade II listed thatched cottage with historic character and gallery feature
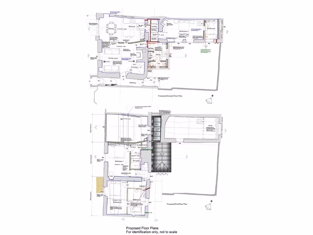
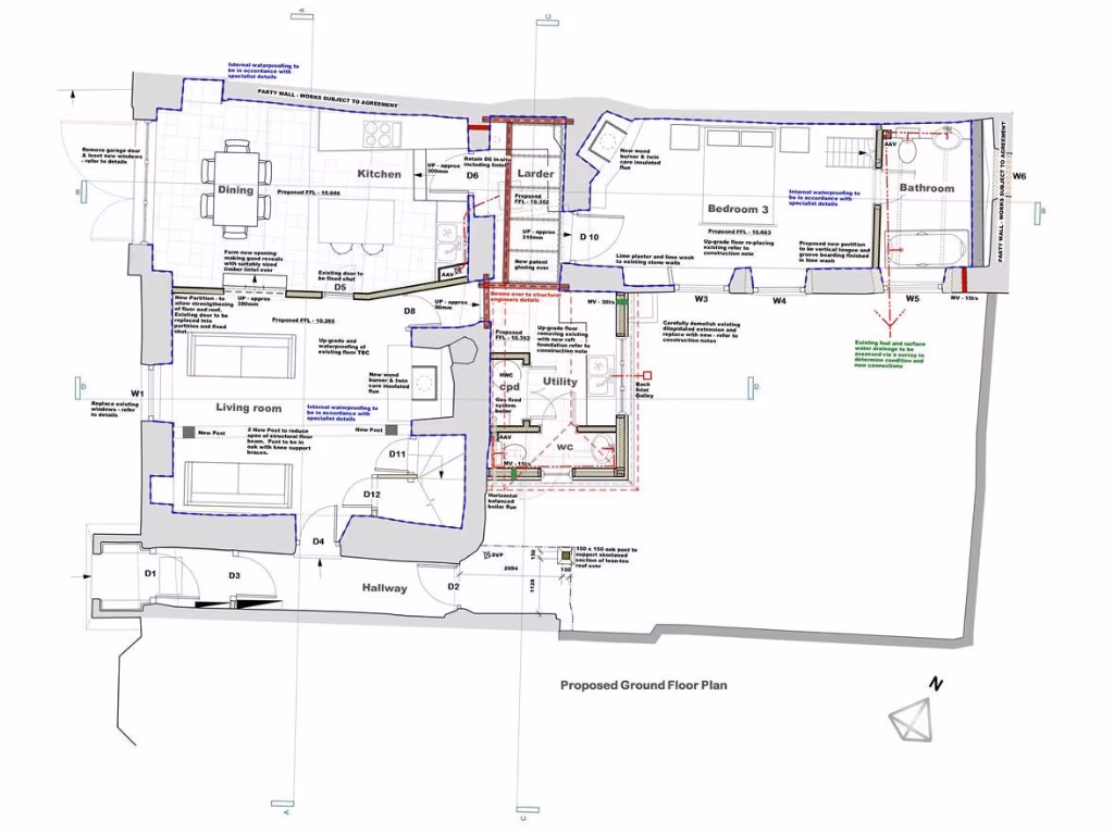
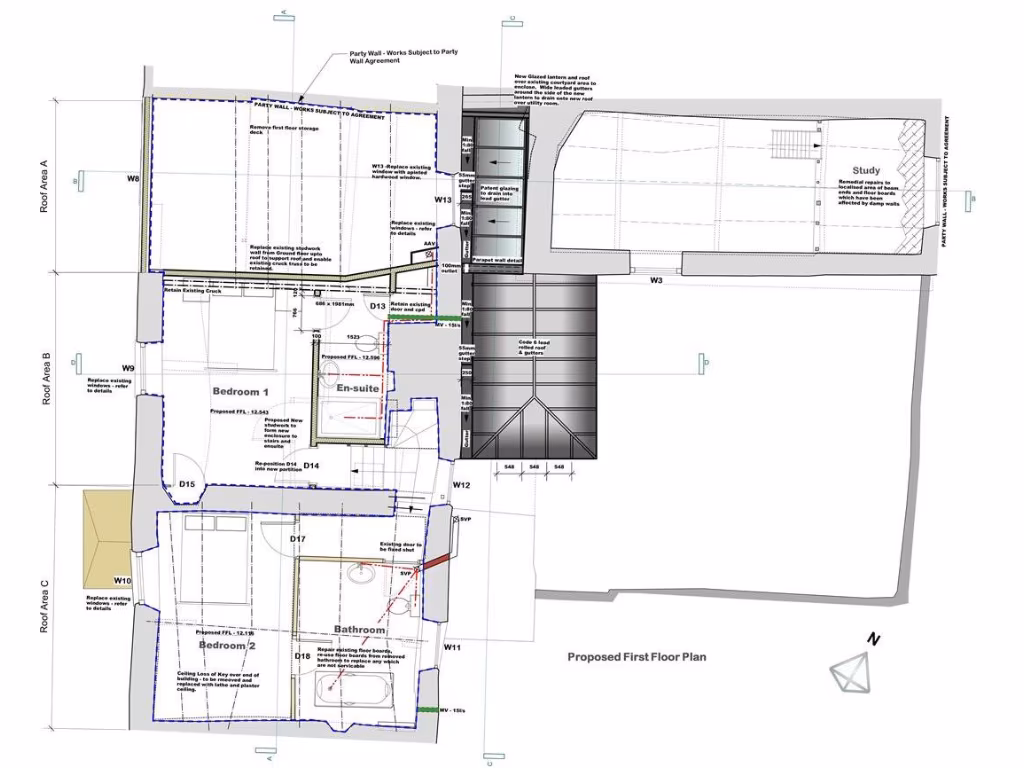
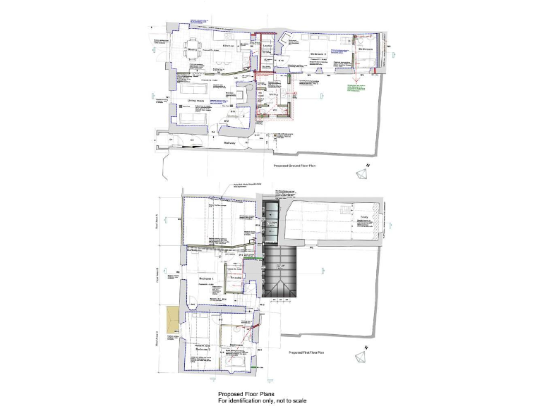
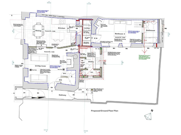
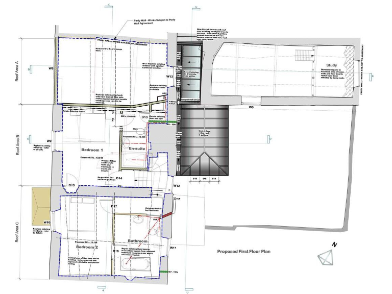
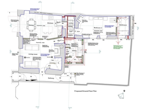
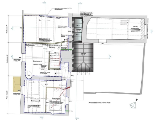
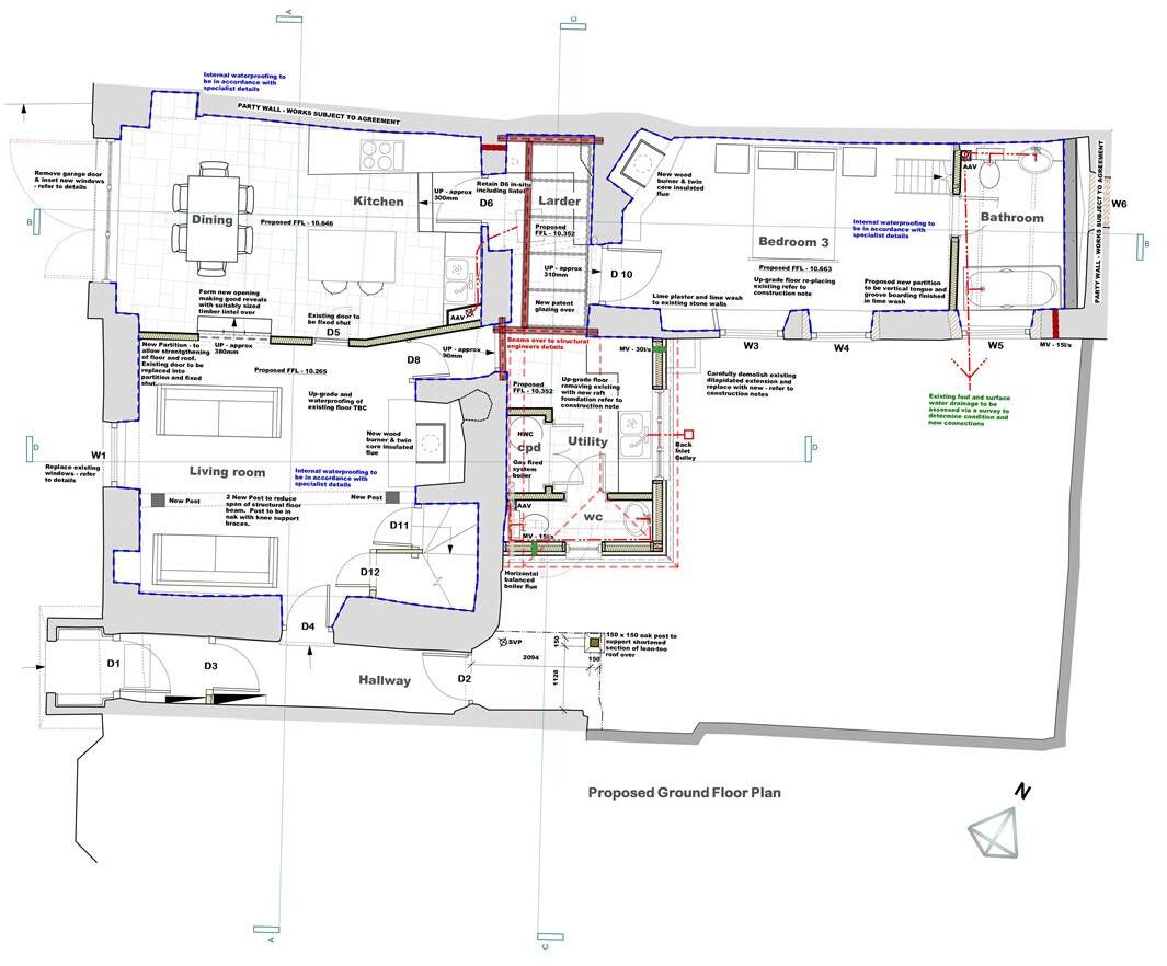
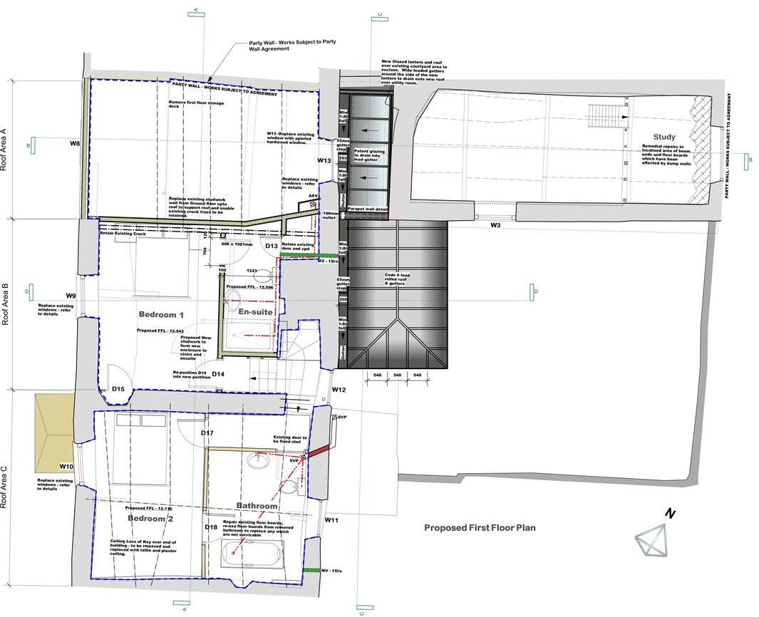
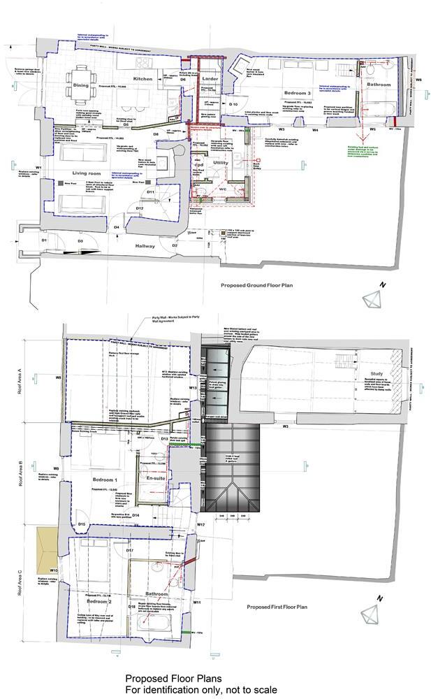
Planning permission and listed consent granted for major remodelling (Refs 73180/73181)
Consent for garage/shippon conversion to ancillary accommodation (Ref 66029)
Large overall internal area (approx. 2,013 sq ft) but requires full renovation
Enclosed rear walled garden; small plot and on-street parking only
EPC Band G, current heating by wood logs/room heaters — upgrade likely
Thatched roof and uninsulated granite walls mean ongoing maintenance and costs
Mains services connected; listed status restricts some alterations
A rare Grade II listed thatched house set directly on the historic village Square of Chittlehampton, offered as a large, character-filled shell for complete renovation. Consent has been granted for significant internal remodelling, extension and conversion of outbuildings to ancillary accommodation, so the next owner can follow approved plans to create three en‑suite bedrooms, open-plan living and substantial reception space. The enclosed rear walled garden provides privacy and a useful external area despite the modest plot size.
This property will suit a buyer seeking a sensitive restoration project rather than a move-in ready home: the cottage requires full completion of renovation works, internal finishes and upgrading, and it carries the constraints and responsibilities of listed status. Thatched roof maintenance, the need to upgrade heating from existing room heaters/wood fuel, and likely thermal improvements to uninsulated stone walls are factors to budget for. EPC is G and initial heating is by wood logs/room heaters.
Practical positives include mains services already connected, very low local crime, good nearby primary schools and easy access to South Molton and Barnstaple. The location offers strong lifestyle appeal — historic church, village amenities and fast access to Exmoor, Dartmoor and North Devon coast. The sale is freehold with an affordable Council Tax Band C.
Land for sale in Chittlehampton, EX37 — £185,000 • 3 bed • 2 bath • 2013 ft²
3 bedroom semi-detached house for sale in Kewsland, Bishops Tawton, Barnstaple, EX32 — £350,000 • 3 bed • 1 bath • 1552 ft²
3 bedroom semi-detached house for sale in Kewsland, Bishops Tawton, Barnstaple, EX32 — £250,000 • 3 bed • 1 bath • 860 ft²
3 bedroom semi-detached house for sale in Hillside, Chittlehampton, EX37 — £345,000 • 3 bed • 2 bath • 1555 ft²
3 bedroom semi-detached house for sale in Hillside, Chittlehampton, EX37 — £395,000 • 3 bed • 2 bath • 1555 ft²
3 bedroom terraced house for sale in Goodleigh, Barnstaple, EX32 — £500,000 • 3 bed • 2 bath • 1282 ft²


















































































